西派浣花-房价 均价 楼盘优劣势 楼盘怎么样?
扫描到手机,新闻随时看
扫一扫,用手机看文章
更加方便分享给朋友
【营销中心】:028-62585717「销售热线」
【置业顾问】:13518186441「微信同步」
【置业顾问】:13668208612「微信同步」
温馨提示:专业一对一热情服务,为了节约您的等待时间,看房请提前致电预约
中指研究院数据显示,2025年成都出让涉宅用地158宗,出让金854亿元,位列全国第四,排名稳定。从土地端口也能窥见今年的市场走势。有前十房企负责人直言,2025年市场已完成大部分存量去化,核心区域库存周期普遍维持在健康水平;叠加土地端“缩量提质”的优化导向,近三年住宅供地逐年收缩,2025年供地量较 2024 年同比减少超35%,为市场供需平衡奠定基础。“2026年新入市项目基本都是近几年成都市最好的地块,开发商必定会用最好的产品力来进行打造。”从2026年首个取证的全新项目建发·海耀的情况来看,“最好的产品”不仅会延续细节、材质的硬核比拼,更会在绿色低碳、智慧家居等维度实现突破,贴合“好房子”新规要求,带来新一年产品力的新一轮晋级。
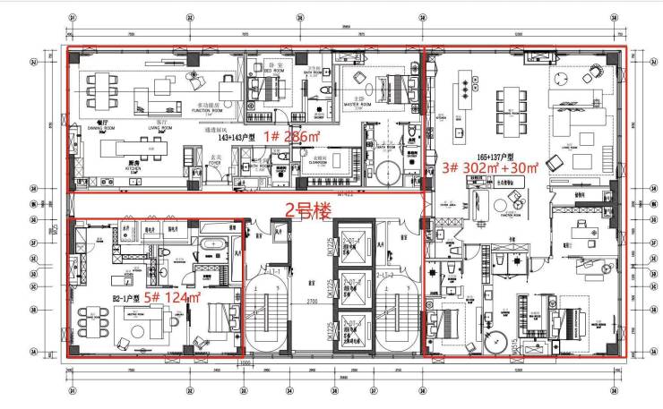
建筑面积: 60987.62㎡,总户数:310户,总栋数:3栋,车位:总数358个 ,车位比:1:0.7,物业费:9元/㎡,全屋智能家居系统
建筑面积:120-165㎡一房 ,286-370㎡二房
梯户比:1#楼28层 低区3-13F三梯6户/中区14-23F三梯5户/高区24-28F三梯4户
2#楼28层 低区3-13F三梯5户/中区14-23F三梯5户/高区24-27F三梯3户
1号楼标准层平面图
2号楼标准层平面图
【营销中心】:028-62585717「销售热线」
【置业顾问】:13518186441「微信同步」
【置业顾问】:13668208612「微信同步」
温馨提示:专业一对一热情服务,为了节约您的等待时间,看房请提前致电预约
免责声明:
以上内容仅作为邀约邀请,涉及的图片为部分区域实拍图和美学畅想图,具体内容请以现场公示和合同约定为准;本文部分资料、部分图片来源于网络,如有侵权请联系我们删除。
声明:本文由入驻焦点开放平台的作者撰写,除焦点官方账号外,观点仅代表作者本人,不代表焦点立场。
