恒基旭辉中心·TOD在售信息介绍 价格多少?项目周边配套怎么样?可以买吗?售楼部热线?
扫描到手机,新闻随时看
扫一扫,用手机看文章
更加方便分享给朋友
【营销中心】:028-62585717「销售热线」
【置业顾问】:13518186441「微信同步」
【置业顾问】:13668208612「微信同步」
中指院成都分院指出,截止今年6月末,成都一手住宅可售面积为1702.9万㎡,出清周期(按12个月计算)为13.5个月,与5月基本持平。当中“5+2”区域中青羊、锦江、成华、天府新区的去化周期降到8个月以内;新六区中龙泉驿、新都、双流、郫都去化相对较快,未超过15个月;远郊除新津、邛崃和彭州,其余区县超过了24个月。在产品需求面积段方面,上半年成都中心城区建面140-150㎡面积段成交占比提升幅度较大,100-150㎡面积段产品去化相对较快。当中总价200万-250万元、150万-200万元总价段成交占比最多,总价250万-300万元总价段成交占比同比也提升2.8个百分点,提升幅度最大。

在成都TOD开发浪潮中,作为成都市重点工程项目、首批16个官宣TOD项目之一的万盛TOD恒基旭辉中心奋勇争先,践行区域唯一官宣TOD的使命与担当,以前瞻视野与百亿级投资,从城市更新的角度,探索土地的全新开发模式。

万盛TOD恒基旭辉中心基于营城理念,以TOD交通枢纽为核心,精准导入酒店、办公、商业等多元业态,合理布局住宅、教育、医疗、公园等基础设施,构建人产城共生共融的城市综合大盘。

历经3年时光沉淀,万盛TOD恒基旭辉中心高颜值金街已开街,全龄名校教育集群已成型,约15000方城市中央公园全貌呈现,一期高端住区品质交付,约10万方购物中心MALL今年5月即将开业,一座集商圈、教育、公园、居住、交通于一体的约73万方全配套TOD大城强势兑现,成为成都「TOD模式」的成功开发样板。
TOD plus+模式、多元王牌价值赋能
旭辉中心成都首批TOD真“王炸”
王牌一·大手笔规划,成都TOD范本诞生
作为首批16个官宣TOD中,具有大盘运营和商业开发及运营能力的航母级综合体,以开发商、地铁方多方协作,先行设计,将住宅、商业、地铁、公园等群落重构为一个超级浓缩城市,前期地块问题一次性解决,空间布局更加合理,时间效率更高。
一个TOD大商圈、两百万人口支撑、五种黄金业态、六大实景呈现,七大商业布局、九大生活场景。旭辉造城,成都骄傲,百万方城市体,25万方旭辉商圈,全国第六座旭辉Cmall,落地万盛TOD。
成都特色137-TOD模式
旭辉中心是成都唯一一个严格按照成都市政府137开发理念的TOD项目,真正实现在100米、300米、700米,步行2-5分钟即可享受世界超一线生活方式!
2023年7月城西高颜值金街开街,焕新精致生活品位
旭辉秉承以招商先行的方针,招商建设同步进行,加速旭辉商圈的繁华进程;
随着商业街区的实景呈现,各大品牌商家也看到了旭辉的实力。麦当劳、肯德基、必胜客、奈雪的茶、、优衣库、幸福南海影院、周大福、海乐健身、KKV等200+国际知名品牌携手恒基旭辉中心。
现象级热销红盘,劲销霸榜全城
正是这样的王牌价值,让旭辉中心备受青睐。仅开盘前后线上关注度就超100万+,超10万人到访,三年来作为TOD销冠项目,累计热销30亿。

TOD全能大城 瑰丽式高奢酒店生活范本-CIFI7全新高定系列-揽境 震撼登场
十六大精装配置全面升级
精装提升亮点:整体工艺工法、用材用料、颜色搭配,提配为高奢酒店风,更大气,高级审美,高品质感
全新高奢酒店式奢居鉴赏
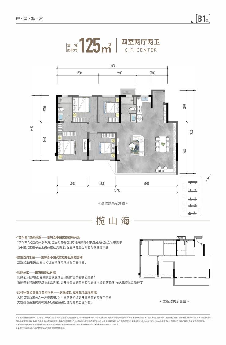
大成西唯此TOD大横厅125㎡高奢酒店式洋房
双实力品牌丨中国地产百强TOP10丨极致套四横厅丨国际一线大牌奢装 | 全屋智能系统
大成西唯此TOD极致横厅113㎡高奢酒店式高层
双实力品牌丨中国地产百强TOP10丨极致套四横厅丨国际一线大牌奢装 | 全屋智能系统
大成西唯此TOD绝版稀缺100㎡高奢酒店式高层
双实力品牌丨中国地产百强TOP10丨极致套四横厅丨国际一线大牌奢装 | 全屋智能系统
大成西唯此TOD臻藏稀缺114㎡高奢酒店式洋房
双实力品牌丨中国地产百强TOP10丨极致套三洋房丨国际一线大牌奢装 | 全屋智能系统
旭辉中心全新高端【心墅】,三大空间系统升级赋能生活升维
下叠——240㎡

城芯度假式花园庭院|约160㎡前后花园院落|约60㎡LDKG宽厅|主卧奢阔星级套房|L型厨房布局
上叠——169㎡

自定义多元空间进阶上叠|约43㎡X空间|约7.25㎡独立入户玄关|约32㎡星级尊崇主卧套房
3F大平层——187㎡

游艇级巨幕墅居大平层|约9.5米巨幕阳台,IMAX视野近赏大城繁华|LDKG宽境横厅|三套房居室系统,构筑每一位家人的尊崇舒适
【营销中心】:028-62585717「销售热线」
【置业顾问】:13518186441「微信同步」
【置业顾问】:13668208612「微信同步」
温馨提示:专业一对一热情服务,为了节约您的等待时间,看房请提前致电预约
免责声明:
以上内容仅作为邀约邀请,涉及的图片为部分区域实拍图和美学畅想图,具体内容请以现场公示和合同约定为准;本文部分资料、部分图片来源于网络,如有侵权请联系我们删除
声明:本文由入驻焦点开放平台的作者撰写,除焦点官方账号外,观点仅代表作者本人,不代表焦点立场。
