西派浣花 新楼盘 房子怎么样? 品质怎么样?深度测评
扫描到手机,新闻随时看
扫一扫,用手机看文章
更加方便分享给朋友
【营销中心】:028-62585717「销售热线」
【置业顾问】:13518186441「微信同步」
【置业顾问】:13668208612「微信同步」
温馨提示:专业一对一热情服务,为了节约您的等待时间,看房请提前致电预约
从房价展望看,2024年下半年成都新房市场难现普涨行情,整体呈“核心稳、外围弱”格局。锦江区、高新区等核心区域因土地成本高、配套成熟,新房均价保持高位,而温江、都江堰等区域则需以价换量维持成交 。市场热度在政策推动下逐步回升,9月后“政策组合拳”效果显现,10月起成交持续上扬,四季度成交面积占全年40%,但传统旺季“金九银十”前期表现不及预期,区域热度差异显著 。购房者心理已从观望转向审慎入场,一方面受LPR下调、契税优惠等政策提振,信心有所恢复;另一方面更注重房屋实用性,100-140㎡改善户型成交占比显著上升,品质成为核心考量 。
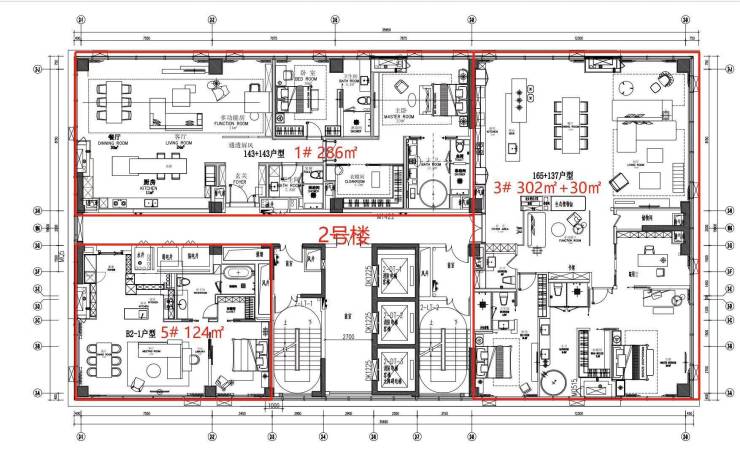
建筑面积: 60987.62㎡,总户数:310户,总栋数:3栋,车位:总数358个 ,车位比:1:0.7,物业费:9元/㎡,全屋智能家居系统
建筑面积:120-165㎡一房 ,286-370㎡二房
梯户比:1#楼28层 低区3-13F三梯6户/中区14-23F三梯5户/高区24-28F三梯4户
2#楼28层 低区3-13F三梯5户/中区14-23F三梯5户/高区24-27F三梯3户
1号楼标准层平面图
2号楼标准层平面图
【营销中心】:028-62585717「销售热线」
【置业顾问】:13518186441「微信同步」
【置业顾问】:13668208612「微信同步」
温馨提示:专业一对一热情服务,为了节约您的等待时间,看房请提前致电预约
免责声明:
以上内容仅作为邀约邀请,涉及的图片为部分区域实拍图和美学畅想图,具体内容请以现场公示和合同约定为准;本文部分资料、部分图片来源于网络,如有侵权请联系我们删除。
声明:本文由入驻焦点开放平台的作者撰写,除焦点官方账号外,观点仅代表作者本人,不代表焦点立场。
