成都必买项目推荐:黄龙溪谷塔希提-销售热线-黄龙溪谷塔希提户型分析-
扫描到手机,新闻随时看
扫一扫,用手机看文章
更加方便分享给朋友
 
【营销中心】:028-62585717「销售热线」
【置业顾问】:13518186441「微信同步」
【置业顾问】:13668208612「微信同步」
成都二手房挂牌量已突破29万套,天府新区更是持续下跌大半年,有购房者坦言:“看了一年的房,就没有哪片区域真的坚挺。”然而,市场的短期波动往往掩盖了长期趋势的重大变化。就在楼市一片悲观之际,房地产市场的运行从来不是线性发展,而是周期性的波动过程。当前的市场调整,实际上是价值的重新夯实。市场调整也在倒逼开发商提升产品品质。
 
产品亮点:
1、270度景观面
2、叠拼使用面积430-870平
3、近370平首层空间
4、面宽12米,巨幕LDK
5、超40平双主卧套房
 
 
产品户型
叠墅【二叠墅】总高:4F(地上2f、地下2f)
(户型图皆为先一层,后二层)
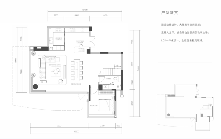
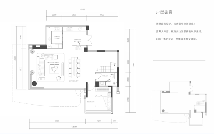
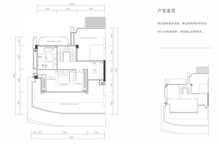
下叠·364㎡·四室两厅四卫
 
 
上叠·365㎡·五室两厅五卫
 
 
 
下叠·246㎡·四室两厅四卫
 
 
中叠·279㎡·四室两厅五卫
 
 
上叠·267㎡·四室两厅四卫
 
 
洋房:
 
面积:175平/190平
 
 
区域介绍
项目位于天府新区、黄龙溪古镇旁,是早期在黄龙溪板块开发的项目之一,携手知名建筑、景观、生态治理团队,打造中国西南生态大盘典范。
提及成都的未来一定在国际城南,而提及城南几块为少数人精心准备的土地,本项目则在此名单之列,它独具创意地完美融合自然与生活,演绎着何为成都高端墅居,刷新着对终极置业的想象。
🌲东方的塔希提 世界的桃花源🌲
塔希提岛:世界上最浪漫的岛屿,被称为“最接近天堂的地方”。
12载谨献一座塔希提,为天府创造一座岛,在溪谷,像塔希提一样生活。
 
【营销中心】:028-62585717「销售热线」
【置业顾问】:13518186441「微信同步」
【置业顾问】:13668208612「微信同步」
温馨提示:专业一对一热情服务,为了节约您的等待时间,看房请提前致电预约
免责声明:
以上内容仅作为邀约邀请,涉及的图片为部分区域实拍图和美学畅想图,具体内容请以现场公示和合同约定为准;本文部分资料、部分图片来源于网络,如有侵权请联系我们删除
声明:本文由入驻焦点开放平台的作者撰写,除焦点官方账号外,观点仅代表作者本人,不代表焦点立场。
 
  
  
 
 
  
  
  
  
  
  
  