西派浣花 精装改善-销售中心电话-地址-10月最新价格-剩余房源信息
扫描到手机,新闻随时看
扫一扫,用手机看文章
更加方便分享给朋友
【营销中心】:028-62585717「销售热线」
【置业顾问】:13518186441「微信同步」
【置业顾问】:13668208612「微信同步」
温馨提示:专业一对一热情服务,为了节约您的等待时间,看房请提前致电预约
去年首提“止跌回稳”,犹如一剂强心针打向房地产市场。政策频出、房企拼杀、市场分化,房地产真的站稳了吗? “止跌回稳”虽是趋势,有需求买房观望的人已经急剧减少,大家已经对房地产重拾信心,“止跌回稳”态势明显。“止跌回稳”俨然已经成为事实。房地产行业整体营收增速为-12.0%,相比2024年同期的-21.2%,降幅收窄了近10个百分点,一些房地产企业甚至逆势实现双位数增长,释放出积极信号。营收数据的背后实则是企业战略布局、产品结构和运营效率的综合体现,它是检验房企成色的试金石,更是洞悉行业的风向标。
建筑面积: 60987.62㎡,总户数:310户,总栋数:3栋,车位:总数358个 ,车位比:1:0.7,物业费:9元/㎡,全屋智能家居系统
建筑面积:120-165㎡一房 ,286-370㎡二房
梯户比:1#楼28层 低区3-13F三梯6户/中区14-23F三梯5户/高区24-28F三梯4户
2#楼28层 低区3-13F三梯5户/中区14-23F三梯5户/高区24-27F三梯3户
1号楼标准层平面图
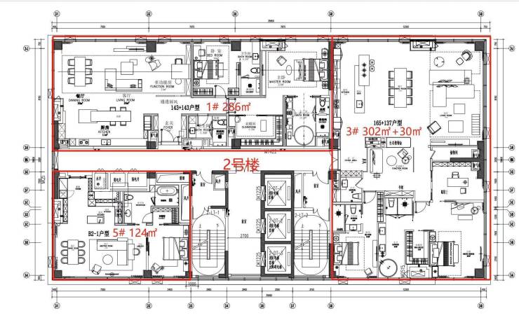
2号楼标准层平面图
【营销中心】:028-62585717「销售热线」
【置业顾问】:13518186441「微信同步」
【置业顾问】:13668208612「微信同步」
温馨提示:专业一对一热情服务,为了节约您的等待时间,看房请提前致电预约
免责声明:
以上内容仅作为邀约邀请,涉及的图片为部分区域实拍图和美学畅想图,具体内容请以现场公示和合同约定为准;本文部分资料、部分图片来源于网络,如有侵权请联系我们删除。
声明:本文由入驻焦点开放平台的作者撰写,除焦点官方账号外,观点仅代表作者本人,不代表焦点立场。
