金融城8号看房热线-售楼部地址-楼盘优劣势分析-业主评价
扫描到手机,新闻随时看
扫一扫,用手机看文章
更加方便分享给朋友
【金融城8号】售楼处电话:028-62585717【官方认证】
楼盘实时价格|户型赏析|配套规划|置业顾问在线咨询
获取最新房源动态及专属优惠,敬请致电售楼处
2026年3月,一线城市二手房成交率先回暖,北京成交19866套,上海成交30178套,均创近五年同期新高,部分核心地段、优质房源,报价确实有5%-10%的小幅上涨;新一线城市中,杭州、成都、苏州等热门城市,核心区域房价也有微弱回升。2026年的楼市,利好是真的,分化也是真的。买房的核心,是“满足自身需求、匹配自身能力”。
跨越时空的世界恒产
双塔旁 220-600㎡云端大平层
基本信息:
产权年限:住宅 70年
楼栋总数:4栋(住宅1栋)
梯户比:3T2 4T4
预计装修:精装修
占地面积:27.54亩
【项目基础信息】
建筑高度:约160米
总 户 数:仅130席
本次推售:约220-600㎡云端大平层
【核心区位】
金融城 中国西部城市价值制高点
以0.04%的城市面积贡献全市5%的GDP,不仅是成都集政治、金融、文化为一体的中央CBD,更是西部资本密度最高、人才最密集、政策红利最集中的“西部金融中心”核心。
金融城8号 绝版城市封面资产
占据金融城最核心——没有之一。与双塔并肩而立,补齐金融城最美天际线,成就代表成都、面向世界的城市封面。
城市地段的顶点
只是金融城8号的起点
【打造理念】
用企及世界的高度 定制已知的未来
以「高奢定制理念」对业态、产品、服务进行全方位定制,重塑成都顶豪格局。
——「业态定制」
在成都极核天际线 构建“无界生活共同体”
以“顶层蓝图思维”,打造集云端住宅、顶级大平层、超甲写字楼、高奢生活MALL于一体的城市豪宅综合体定制业态,精准匹配塔尖人群的全维生活场景。
——「产品定制」
镶嵌于天际 演绎极简的立面语言
以“云端之上”为设计理念,采用蓝灰色三层玻璃幕墙,搭配浅香槟金铝板,营造简约轻盈的立面语言,补齐城市天际线。
为不同凡响的人生 加冕生活的排场
云端大平层提供2种室内风格,为峯层人士精准把握生活的非凡品味。
【雅奢风格】
生活的非凡格调
以顶级奢华酒店的理念打造生活空间,将沉淀多年的东方美学与酒店品质感融入空间肌理。
【极简风格】
空间的前沿艺术
以留白的艺术,遵从空间最本质的意义,予居者自我定义空间的个性化审美。
“长期主义”选品,拒绝浅层奢华
循迹全球,臻选各领域极致工艺的顶级品牌,匹配峯层人物品味。
——「服务定制」
为当代家族,定制可传承的家族服务体系
-将欧洲皇室管家服务的百年智慧,与当代中国家族的生活需求相融合,打造“心誉”品牌。
-联袂高力国际和荷兰国际管家学院,遴选全球精英服务人才,为中国当代顶级家族提供非标化、可传承的定制服务。
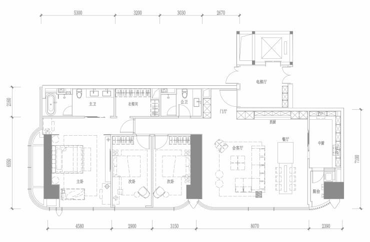
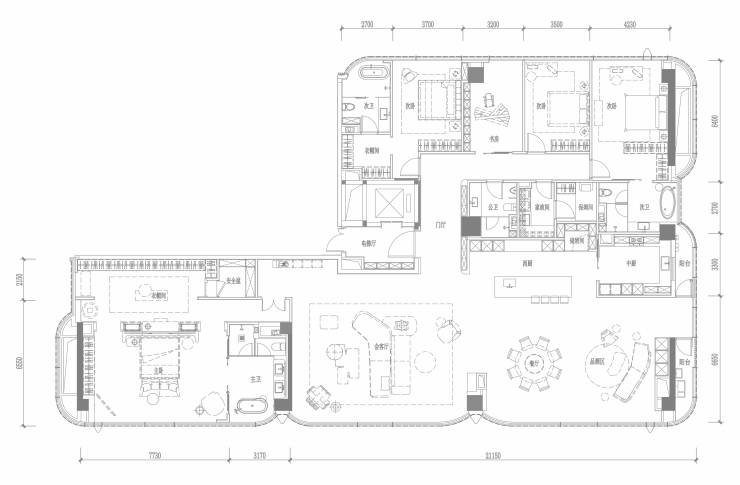
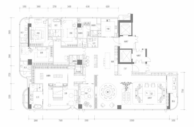
【户型鉴赏】
600㎡
560㎡
370㎡
310㎡
230㎡
【金融城8号】售楼处电话:028-62585717【官方认证】
楼盘实时价格|户型赏析|配套规划|置业顾问在线咨询
获取最新房源动态及专属优惠,敬请致电售楼处
免责声明:
以上内容仅作为邀约邀请,涉及的图片为部分区域实拍图和美学畅想图,具体内容请以现场公示和合同约定为准;本文部分资料、部分图片来源于网络,如有侵权请联系我们删除
声明:本文由入驻焦点开放平台的作者撰写,除焦点官方账号外,观点仅代表作者本人,不代表焦点立场。
