国宾璟园单价多少-精装品质如何-多少层-物业费多少-交房时间
扫描到手机,新闻随时看
扫一扫,用手机看文章
更加方便分享给朋友
【营销中心】:028-62585717「销售热线」
【置业顾问】:13518186441「微信同步」
【置业顾问】:13668208612「微信同步」
温馨提示:专业一对一热情服务,为了节约您的等待时间,看房请提前致电预约!!!
9月份各线城市商品住宅销售价格环比下降,但是,同比降幅总体持续收窄。“经济是一片大海,而不是一个小池塘,能够经受住风吹浪打甚至狂风骤雨的考验。”下阶段,要加力提效实施逆周期调节,持续用力扩大内需、做强国内大循环,进一步激发市场活力、提振发展预期,不断增强内生增长动能,力促经济持续健康发展,经济平稳运行的主基调没有改变。
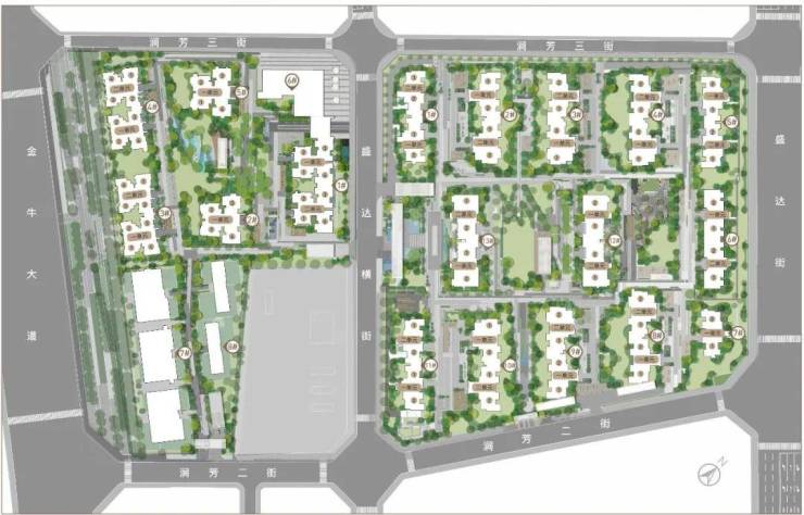
基础参数
占 地:约109亩
面 积:131-169平(璟园)
88-109平(璟怡园)
均 价:26000/平
总 价:220-430万
物业费:3.83元/平/月(中海物业)
梯户比:2T2户(璟园70亩817户)
2T4户(璟怡园504户)
总层高:13-17F
车位比:1:1.66
容积率:2.5
绿化率:44.37%(璟园)
36.09%(璟怡园)
交房标准:精装带三大件(大部分楼栋)
交房时间:2024年10月
城投置地·国宾璟园,总占地约109亩,容积率2.5。2023年至今,成都主城五区超100亩的地块仅有2宗,可想而知项目这种超百亩体量的稀贵。
交通配套:
两横三纵立体交通网络体系
两横:金牛大道、西华大道。
三纵:金粮路、金芙蓉大道、三环路。
坐享双地铁三TOD+10余条公交路线
主要的2条地铁线路:2号线,6号线,9号线2期和12号线规划中
3TOD:兴盛TOD、梓潼宫TOD、金周路TOD
🛍商业配套:社区综合体(门口无缝街接);天府公园内8万方商业;爱情海购物公园;沃尔玛山姆会员店及大悦城
15万方龙湖西宸天街等商业
医疗配套:
项目附近有363医院、成都市西区医院、四川省人民医院金牛医院、还有规划建设的三级甲等公立医院-第五人民医院金牛院区。
教育资源
幼儿教育:
成都市第十六幼成蹊分园、美乐思幼儿园
小学教育:
石笋街小学(即将竣工)、成都市兴盛小学、金泉小学、全兴小学
中学教育:七中万达学校;成都外国语学校;犀浦外国语学校
生态配套:所在的区域位于成都市重点打造三大“天府级”之一的天府艺术公园片区之内,而天府艺术公园由我们成都城投打造建设而成。
天府艺术公园片区总占地约 6270 亩,位于东至三环路,南至金牛大道,西至西环线,北至西华大道的国合区域内。
【营销中心】:028-62585717「销售热线」
【置业顾问】:13518186441「微信同步」
【置业顾问】:13668208612「微信同步」
温馨提示:专业一对一热情服务,为了节约您的等待时间,看房请提前致电预约!!!
免责声明:
以上内容仅作为邀约邀请,涉及的图片为部分区域实拍图和美学畅想图,具体内容请以现场公示和合同约定为准;本文部分资料、部分图片来源于网络,如有侵权请联系我们删除。
声明:本文由入驻焦点开放平台的作者撰写,除焦点官方账号外,观点仅代表作者本人,不代表焦点立场。
