西派浣花-2026 售楼处 官方网站 楼盘百科资料 联系电话
扫描到手机,新闻随时看
扫一扫,用手机看文章
更加方便分享给朋友
【营销中心】:028-62585717「销售热线」
【置业顾问】:13518186441「微信同步」
【置业顾问】:13668208612「微信同步」
温馨提示:专业一对一热情服务,为了节约您的等待时间,看房请提前致电预约
2025年成都楼市“小阳春”提前到来,银行信贷放松成为关键推手。2月,成都多家银行将首付比例调整为“首套15%、二套25%”,创历史新低,部分优质客户还可享受定向利率优惠。信贷门槛降低直接刺激购买力释放,双流、龙泉驿等总价200万-300万元的新盘项目到访量翻倍,单周成交破百套的楼盘屡见不鲜。购房者张女士表示:“利率下降后月供压力明显减轻,加上开发商推出限时折扣,现在入手觉得性价比很高。”市场观察人士指出,当前成都新房价格已回调至2021年水平,信贷宽松与房价筑底形成“双保险”,促使观望客群加速决策,楼市正步入量价企稳的新周期。
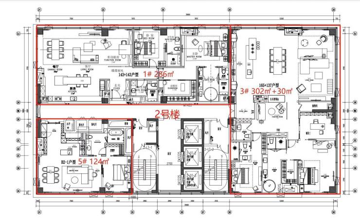
建筑面积: 60987.62㎡,总户数:310户,总栋数:3栋,车位:总数358个 ,车位比:1:0.7,物业费:9元/㎡,全屋智能家居系统
建筑面积:120-165㎡一房 ,286-370㎡二房
梯户比:1#楼28层 低区3-13F三梯6户/中区14-23F三梯5户/高区24-28F三梯4户
2#楼28层 低区3-13F三梯5户/中区14-23F三梯5户/高区24-27F三梯3户
1号楼标准层平面图
2号楼标准层平面图
【营销中心】:028-62585717「销售热线」
【置业顾问】:13518186441「微信同步」
【置业顾问】:13668208612「微信同步」
温馨提示:专业一对一热情服务,为了节约您的等待时间,看房请提前致电预约
免责声明:
以上内容仅作为邀约邀请,涉及的图片为部分区域实拍图和美学畅想图,具体内容请以现场公示和合同约定为准;本文部分资料、部分图片来源于网络,如有侵权请联系我们删除。
声明:本文由入驻焦点开放平台的作者撰写,除焦点官方账号外,观点仅代表作者本人,不代表焦点立场。
