西派御府楼盘分析-周边配套-户型图分析-总价多少-优惠多少

搜狐焦点内江站 2025-11-17 11:06:00
用手机看
扫描到手机,新闻随时看

扫一扫,用手机看文章
更加方便分享给朋友

西派御府 【营销中心】:028-62585717「销售热线」 【置业顾问】:13518186441「微信同步」 【置业顾问】:13668208612「微信同步」

西派御府

【营销中心】:028-62585717「销售热线」

【置业顾问】:13518186441「微信同步」

【置业顾问】:13668208612「微信同步」

当下低迷市场和溃败的信心所笼罩,没有心思对这一轮房地产调整后的行业走向,进行预判和猜想。常识告诉我们,没有永远下行的市场,即使美国,日本房价当年跌跌不休,如今也迎来持续多年的上涨。而在中国,相对理论中枢,当下中国房地产的确“超跌”了,未来理应有一个反弹的空间。

【物业类别】:纯住宅 【占地】:约67亩 【容积率】:2.5 【楼栋数】:12栋 【总户数】:649户

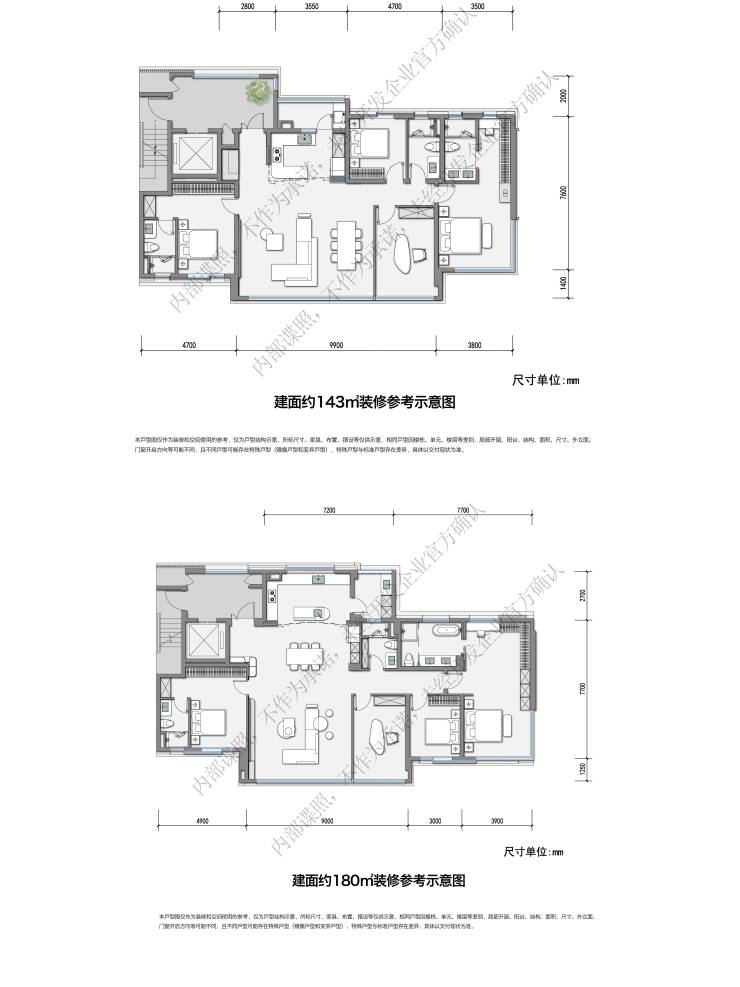
【梯户比】:2梯2户纯板式 【楼层情况】:7-17层小高层·洋房 独立入户 【产品】:约143/180/255㎡ 精装四房

【公摊】:新规得房100%以上 【层高】:待定 【物业公司】: 中国铁建物业(暂定) 【物业费】:待定

【交房时间】:待定 【布局】:东南-西北 朝向

【报价】首开活动等,展厅了解介绍。

配套:

交通:金牛区三环内茶花新城,开车约20分钟到达天府广场,约500米27号线花照壁北站,约800米7号线茶店子站,多线换乘(2号,6号)

商业:步行到达龙湖西宸天街商圈。周边:金牛凯德广场商圈、华侨城商圈(山姆沃尔玛),天府艺术街,居然之家,欢乐谷

教育:成都最高的指标到校区域“金5”区,诸多名校茶店子小学 七中81附属学校,详情可以展厅了解。

生态:毗邻新金牛公园,1km即达天府艺术公园。区域公园众多:金牛体育中心、成都市新桥公园、合计约3150亩的城市公园集群。

文化:八大美学生活馆:天府美术馆 当代艺术馆 金牛图书馆 金牛文化馆等。

医疗:约300米省人民医院金牛分院,区域配套诸多三甲,私立医院(安琪儿)。

1,中铁建15年西派,金牛区第一座西派。 该区域新规产品

2,国际一线西派御用大师颜政 塔瓦猜作品,打造法国南部蔚蓝海岸风情园林。

3,会所配备高端项目必备之一:室内恒温泳池配高温池。金牛区第一座双层叠水水景园林。

4,项目首层大门&负一楼落客区,尊崇仪式双车马院入户。

6,主力180户型,入门143户型,高改255户型,大户型占比近70%。面积段改善,圈层纯粹,产品升级。

6,会所近10米层高西派书吧,超大尺度会所空间革新高端产品格局。

7,建面约143户型全明设计和收纳体系,所有房间均能采光,5面宽朝南。

8,建面约180户型小家化卧室系统+客餐厅全南向设计,全明卫设计。

9,超13入户光厅,仪式感和居家空间,产品升级。

10,255户型高改珍藏产品即将面世,更加期待。

总结下项目的几个核心买点:

1、目前主城区在售,位置最好的项目:西2.5环,距离二环高架不到2公里,离市中心最近的项目

2、目前主城区在售,配套最齐全的项目:主城区城市界面最好的板块,老成都中的新城市,公园、地铁、商业、学校、医院均在1公里范围内步行可达

3、目前主城区在售,改善品质最纯粹的项目:西派豪宅的金字招牌,叠加全新一代的产品规划,同时大户型占比70%,豪宅品牌豪宅户型豪宅圈层。

【营销中心】:028-62585717「销售热线」

【置业顾问】:13518186441「微信同步」

【置业顾问】:13668208612「微信同步」

温馨提示:专业一对一热情服务,为了节约您的等待时间,看房请提前致电预约!!!

免责声明:

以上内容仅作为邀约邀请,涉及的图片为部分区域实拍图和美学畅想图,具体内容请以现场公示和合同约定为准;本文部分资料、部分图片来源于网络,如有侵权请联系我们删除

声明:本文由入驻焦点开放平台的作者撰写,除焦点官方账号外,观点仅代表作者本人,不代表焦点立场。