黄龙溪谷塔希提配套成熟-面积段-总价多少-团购优惠-销售中心电话

搜狐焦点内江站 2025-10-12 10:09:00
用手机看
扫描到手机,新闻随时看

扫一扫,用手机看文章
更加方便分享给朋友

黄龙溪谷塔希提 【营销中心】:028-62585717「销售热线」 【置业顾问】:13518186441「微信同步」 【置业顾问】:13668208612「微信同步」

黄龙溪谷塔希提

【营销中心】:028-62585717「销售热线」

【置业顾问】:13518186441「微信同步」

【置业顾问】:13668208612「微信同步」

市场已经两级分化,呈现好房子供不应求,差产品无人问津的状态。在产品同质化严重的市场环境下,产品力成为决定去化速度的关键因素。一方面,产品既要有高标准化也要有差异化定位,另一方面智能服务应用与服务体系配套也是赢得市场的关键细节。市场的意识形态已经从注重房子的金融属性过度到重视房子的居住属性,再次证明好产品才能最终赢得市场认可。特别是在客户更为审慎的市场中,产品能否切中真实需求、体现差异化价值,直接影响销售流速和价格承受力

⭐区域介绍⭐

项目位于天府新区、黄龙溪古镇旁,是早期在黄龙溪板块开发的项目之一,携手知名建筑、景观、生态治理团队,打造中国西南生态大盘典范。

提及成都的未来一定在国际城南,而提及城南几块为少数人精心准备的土地,本项目则在此名单之列,它独具创意地完美融合自然与生活,演绎着何为成都高端墅居,刷新着对终极置业的想象。

🌲东方的塔希提 世界的桃花源🌲

塔希提岛:世界上最浪漫的岛屿,被称为“最接近天堂的地方”。

12载谨献一座塔希提,为天府创造一座岛,在溪谷,像塔希提一样生活。

四期地块介绍

中国天府·隐奢谧境·岛屿墅作

首开楼栋: 二叠 31#、32#、33# 三叠 34#、35# 平墅 59#、60#、61#

价值点:

三面湖山景观环绕:坡地高处俯瞰视野

浅丘坡地地势,平原上非常少有,建筑层层退台,楼层退台,拥有绝佳山湖景观视野

低容低密:232亩容积率1.17(市场同类举例:2.0容积率且高低配、楼间距近没有景观,私密性差)限墅令下最具别墅感的低密度墅区!

外立面:选用比普通材质贵3-4倍的HPC➕木纹铝板➕干挂石材➕系统玻璃门窗配合简洁明快色彩🟰野奢气息自然的松弛感,市场少有高端质感!

三条景观峡谷:引入溪谷湖山景色,更多自然感受

酒店式入户大堂:超具仪式感归家动线,双首层入户大堂,五星级物业服务,市面唯一!

首推产品,平墅、三叠拼、二叠拼

产品亮点:

1、270度景观面

2、叠拼使用面积430-870平

3、近370平首层空间

4、面宽12米,巨幕LDK

5、超40平双主卧套房

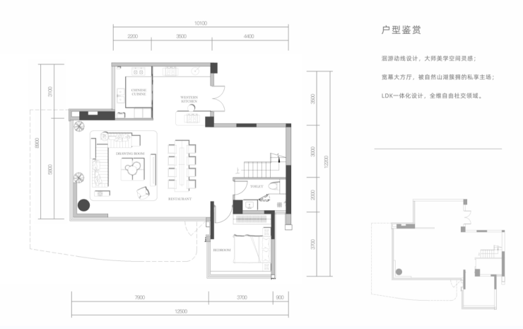
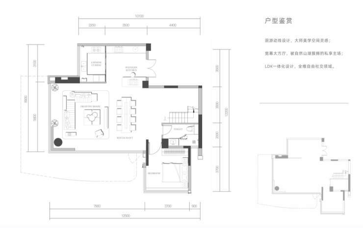
产品户型

叠墅【二叠墅】总高:4F(地上2f、地下2f)

(户型图皆为先一层,后二层)

下叠·364㎡·四室两厅四卫

非花园赠送:190平

花园赠送:190平

层高:1-2F: 3.6米;多功能厅:3.3米

物业费:6.87元/平/月

亮点:270度双面景观、首层使用面积约370平、客厅挑高空间感足、预留私家电梯井、一线景观视野

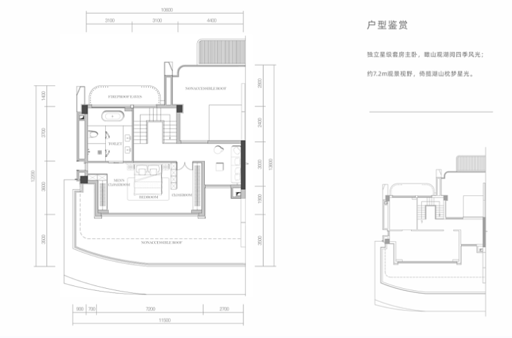
上叠·365㎡·五室两厅五卫

非花园赠送:210平

露台赠送:190平

层高:3F: 3.6米;4F: 3.3米;多功能厅:3.3米

亮点:四层墅居,带花园和露台、客厅挑高空间感足、270度双面景观、预留私家电梯井、单个露台面积120平、一线景观视野

叠墅【三叠墅】总高:7F

下叠、中叠

非花园赠送面积:100-170平

花园面积:50-150平

层高:1F-3F:3.5米;4F3.3米

梯户比:2梯2户(1梯1户)

物业费:6.87元/平/月

亮点:层层退台视野俱佳、客厅270度景观、户户有院子、面宽12.5米、首层使用面积180-370平、赠送地下多功能厅、预留私家电梯井

下叠·246㎡·四室两厅四卫

中叠·279㎡·四室两厅五卫

上叠·267㎡·四室两厅四卫

非花园赠送:130平

层高:3.3米

梯户比:2梯2户(1梯1户)

亮点:三层墅居、层层退台视野俱佳、客厅挑高空间感足、露台赠送大、预留私家电梯井

【洋房】总高:9F

面积:175平/190平

阳台面积:3.25米宽尺阳台:15平/21平

层高:1F:3.6米;2-9F:3.15米

花园:无

物业费:4.12元/平/月

亮点:一梯两户、四房三卫、双主卧套房、270度景观面

端户·190㎡·四室两厅三卫

中户·175㎡·三室两厅三卫

🌲藏品级观湖独栋🌲

【湖畔观湖墅邸 全国争藏】

建面约199-292㎡藏品级观湖墅邸,是城市最后少数的、难得的别墅产品,具有极高居住与收藏价值;在这可拥一方自然世界,享自在原野生活,臻稀观湖独栋。

【营销中心】:028-62585717「销售热线」

【置业顾问】:13518186441「微信同步」

【置业顾问】:13668208612「微信同步」

温馨提示:专业一对一热情服务,为了节约您的等待时间,看房请提前致电预约

免责声明:

以上内容仅作为邀约邀请,涉及的图片为部分区域实拍图和美学畅想图,具体内容请以现场公示和合同约定为准;本文部分资料、部分图片来源于网络,如有侵权请联系我们删除。

声明:本文由入驻焦点开放平台的作者撰写,除焦点官方账号外,观点仅代表作者本人,不代表焦点立场。