成都 西派浣花 房价 楼盘户型,周边配套,交通地图 地铁 学校
扫描到手机,新闻随时看
扫一扫,用手机看文章
更加方便分享给朋友
【营销中心】:028-62585717「销售热线」
【置业顾问】:13518186441「微信同步」
【置业顾问】:13668208612「微信同步」
温馨提示:专业一对一热情服务,为了节约您的等待时间,看房请提前致电预约
2025年,无疑是成都楼市重要转折年。除了新房、二手成交量继续稳居全国第一,新房市场也从曾经的普改市场,逐渐升级到了顶豪市场。2025年,成都新房成交91858套,套均面积131.27m²,千万级住宅销量再创新高。过去一年,成都两次刷新历史地价纪录。2025年3月,成都地价被招商成功顶到31700元/而短短16天后,建发横空出世,将成都地价“天花板”拉到了41200元/㎡。毫无疑问,这两次记录的刷新,开始让成都头部资产价值与一线和部分新一线城市之间的差距开始逐渐缩小。成都的头部资产价值,正在与城市地位进行对标。与此同时,在2025年,这些热土上的头部资产开始相继入市,催生了一个个热门豪宅,也成功得到了市场的检验
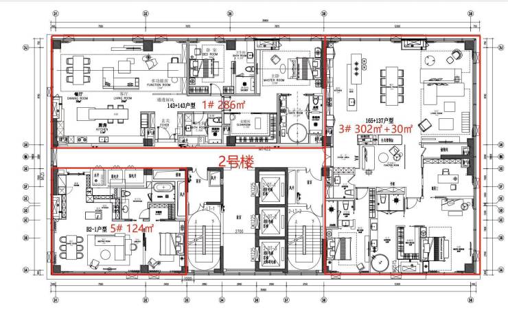
建筑面积: 60987.62㎡,总户数:310户,总栋数:3栋,车位:总数358个 ,车位比:1:0.7,物业费:9元/㎡,全屋智能家居系统
建筑面积:120-165㎡一房 ,286-370㎡二房
梯户比:1#楼28层 低区3-13F三梯6户/中区14-23F三梯5户/高区24-28F三梯4户
2#楼28层 低区3-13F三梯5户/中区14-23F三梯5户/高区24-27F三梯3户
1号楼标准层平面图
2号楼标准层平面图
【营销中心】:028-62585717「销售热线」
【置业顾问】:13518186441「微信同步」
【置业顾问】:13668208612「微信同步」
温馨提示:专业一对一热情服务,为了节约您的等待时间,看房请提前致电预约
免责声明:
以上内容仅作为邀约邀请,涉及的图片为部分区域实拍图和美学畅想图,具体内容请以现场公示和合同约定为准;本文部分资料、部分图片来源于网络,如有侵权请联系我们删除。
声明:本文由入驻焦点开放平台的作者撰写,除焦点官方账号外,观点仅代表作者本人,不代表焦点立场。
