成都 海德one99 营销中心地址位置 公交 地铁 交通 周边配套
扫描到手机,新闻随时看
扫一扫,用手机看文章
更加方便分享给朋友
【营销中心】:028-62585717「销售热线」
【置业顾问】:13518186441「微信同步」
【置业顾问】:13668208612「微信同步」
温馨提示:专业一对一热情服务,为了节约您的等待时间,看房请提前致电预约
在各项政策支持下,当前房地产市场总体稳定,但也有一些城市房地产市场在止跌回稳过程中出现波动,房地产开发投资延续下降态势。对于这些现象,要客观分析、正确看待。一方面,一些城市库存还比较高,消化库存、市场出清需要时间;另一方面,房地产发展潜力和空间巨大,但转化为当前发展动力和信心也需要一个过程。综合各种因素看,我国房地产业正处于发展阶段变化的重要节点,新旧模式转换需要时间,市场行为逻辑转变也需要时间。要深刻把握房地产业发展规律,正确认清当前形势,保持战略定力,积极主动作为,以更有力更精准的举措,加强对房地产市场的宏观调控,持续改善和稳定房地产市场预期,尽可能缩短调整时间,熨平市场波动,推动房地产市场平稳健康高质量发展。
占地:56.7亩
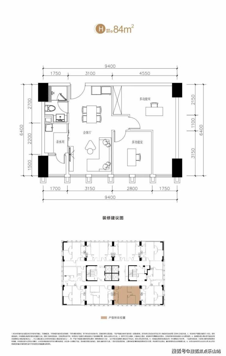
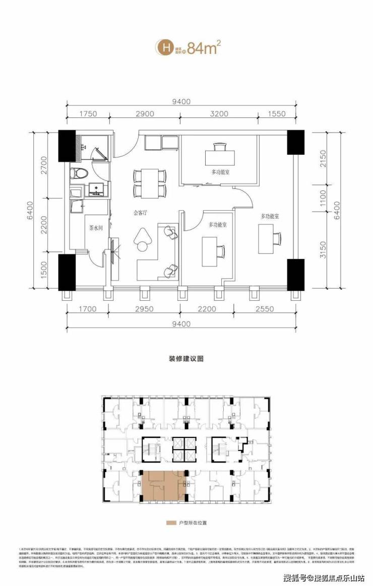
户型:标间(43—52㎡)/套一(62—67㎡)/套二(67—87㎡)/套三(84—120㎡)
公摊:25—30%
交付:精装
总户数:2457户
单价:8400—9000元/㎡
总层高:23F—32F
层高:3米
绿化率:20%
梯户比:6T24/4T12
开发商:碧桂园
物业费:2.4元/㎡
物业公司:碧桂园物业
交房时间:2023年11月
付款方式:按揭、全款、支持首付分期、全款分期

六大购买理由:
1、零门槛买入新一线城市——双流区主中心
2、近享千亿产业园发展红利——成都芯谷
3、便捷的城市级轨交站点——彭镇TOD
4、城市级商业地标,第四大商业街——海德广场
5、标间/套一/套二/套三全面积段产品,满足所有需求
6、总价38万起,清水价买超高性价比类住宅
温馨提示:专业一对一热情服务,为了节约您的等待时间,看房请提前致电预约
免责声明:
以上内容仅作为邀约邀请,涉及的图片为部分区域实拍图和美学畅想图,具体内容请以现场公示和合同约定为准;本文部分资料、部分图片来源于网络,如有侵权请联系我们删除
声明:本文由入驻焦点开放平台的作者撰写,除焦点官方账号外,观点仅代表作者本人,不代表焦点立场。
