远大海湾云锦 楼盘均价 现场优惠 户型面积区间
扫描到手机,新闻随时看
扫一扫,用手机看文章
更加方便分享给朋友
【营销中心】:028-62585717「销售热线」
【置业顾问】:13518186441「微信同步」
【置业顾问】:13668208612「微信同步」
2025年成都新房市场以“改善主导、分化提质”为核心主线,全年成交规模稳居全国前列。成交结构持续优化,套均面积达130㎡以上,改善型产品占比超七成,千万级豪宅与高得房率新规产品成为市场热点,金融城、二八板块等核心区域项目热销,部分红盘实现“开盘即罄”。价格层面呈现“核心坚挺、外围回调”格局,全城均价稳中有调,高新、锦江等核心区域保持价值韧性,远郊区域则面临去化压力。供应端“提质缩量”趋势明确,央企国企主导优质地块开发,土地出让金同比增幅显著。政策端多轮优化为市场托底,全年市场在分化中完成品质升级,为2026年聚焦核心资产、提升产品力的发展方向奠定基础。
开发商:四川远大生物科技有限公司
占地面积:100785.63平方米
建筑面积:762349.19平方米
容积率:4.98
绿地率:30%
停车位:5919(1:2.16)
车位大小:2.6*5.5
总户数:2736户
楼栋总数:20栋住宅,3栋商业(自持)
物业公司:成都远大创新物业管理有限责任公司物业费:5.5元/平方米/月
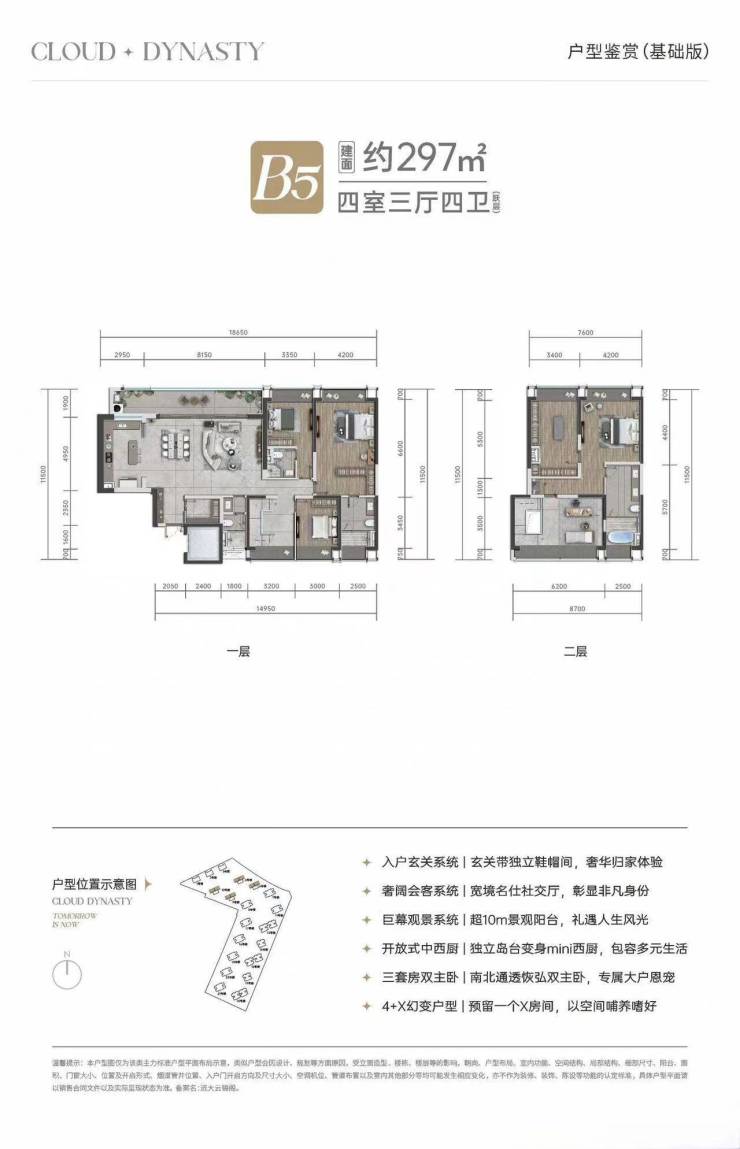
一期户型图
二期户型图
【营销中心】:028-62585717「销售热线」
【置业顾问】:13518186441「微信同步」
【置业顾问】:13668208612「微信同步」
温馨提示:专业一对一热情服务,为了节约您的等待时间,看房请提前致电预约
免责声明:
以上内容仅作为邀约邀请,涉及的图片为部分区域实拍图和美学畅想图,具体内容请以现场公示和合同约定为准;本文部分资料、部分图片来源于网络,如有侵权请联系我们删除
声明:本文由入驻焦点开放平台的作者撰写,除焦点官方账号外,观点仅代表作者本人,不代表焦点立场。
