西派浣花 楼盘房价 价格 楼盘户型 周边配套
扫描到手机,新闻随时看
扫一扫,用手机看文章
更加方便分享给朋友
【营销中心】:028-62585717「销售热线」
【置业顾问】:13518186441「微信同步」
【置业顾问】:13668208612「微信同步」
温馨提示:专业一对一热情服务,为了节约您的等待时间,看房请提前致电预约
2025年12月成都新房市场预计延续11月的下行态势,全城11月新房均价15947元/平,环比下跌0.54%,多数区域如青羊、温江等跌幅明显,12月大概率保持温和下行趋势。对购房者而言,龙泉驿区的多项补贴政策极具吸引力,成为本月核心利好。首套购房者可获3万元一次性货币补贴,人才购房补贴力度更大,博士可达8万元,本科也有4万元。二孩、三孩家庭购房还能分别拿到4万、8万元补贴,购买新房车位也能享3%金额补贴。这些补贴均以货币形式发放,虽需按就高不重复原则申领,但能直接降低购房成本,尤其适合刚需和改善型购房者,政策有效期截至12月31日,本月购房正当时。
建筑面积: 60987.62㎡,总户数:310户,总栋数:3栋,车位:总数358个 ,车位比:1:0.7,物业费:9元/㎡,全屋智能家居系统
建筑面积:120-165㎡一房 ,286-370㎡二房
梯户比:1#楼28层 低区3-13F三梯6户/中区14-23F三梯5户/高区24-28F三梯4户
2#楼28层 低区3-13F三梯5户/中区14-23F三梯5户/高区24-27F三梯3户
1号楼标准层平面图
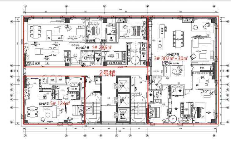
2号楼标准层平面图
【营销中心】:028-62585717「销售热线」
【置业顾问】:13518186441「微信同步」
【置业顾问】:13668208612「微信同步」
温馨提示:专业一对一热情服务,为了节约您的等待时间,看房请提前致电预约
免责声明:
以上内容仅作为邀约邀请,涉及的图片为部分区域实拍图和美学畅想图,具体内容请以现场公示和合同约定为准;本文部分资料、部分图片来源于网络,如有侵权请联系我们删除。
声明:本文由入驻焦点开放平台的作者撰写,除焦点官方账号外,观点仅代表作者本人,不代表焦点立场。
