海德one99 10月黄金周优惠政策-买房攻略-高得房率-最低价格多少

搜狐焦点内江站 2025-10-08 09:11:00
用手机看
扫描到手机,新闻随时看

扫一扫,用手机看文章
更加方便分享给朋友

海德one99 【营销中心】:028-62585717「销售热线」 【置业顾问】:13518186441「微信同步」 【置业顾问】:13668208612「微信同步」 温馨提示:专业一对一热情服务,为了节约您的等待时间,看房请提前致电预约

海德one99

【营销中心】:028-62585717「销售热线」

【置业顾问】:13518186441「微信同步」

【置业顾问】:13668208612「微信同步」

温馨提示:专业一对一热情服务,为了节约您的等待时间,看房请提前致电预约

房企对于开发效率的追求并没有停止。加快开发节奏,缩短预售周期,在当前是一个普遍现象。现在房企很卷,卷产品,卷展示,卷交付。其实还有一种卷,那就是卷速度上。地产已过去了追求规模的阶段,尤其是随着大部分房企投资缩水,滚动开发基本已不复存在了。但这并不意味着房企不再注重开发效率,相反的,这两年地产项目开发提效趋势非常明显。近几年房企从投资布局,到产品规划上呈现出了高度一致性:向核心城市核心地段集中,向改善及豪宅产品发力。

编辑

占地:56.7亩

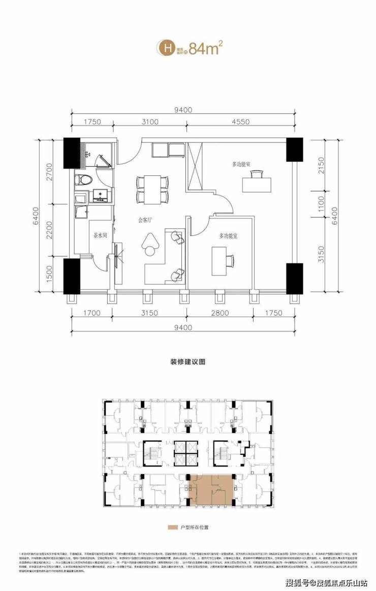
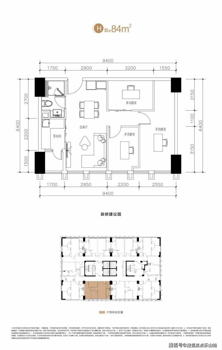
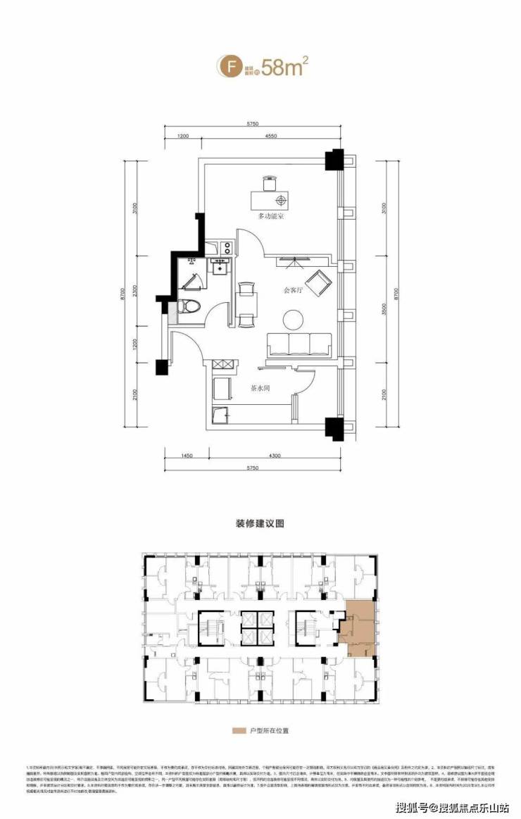
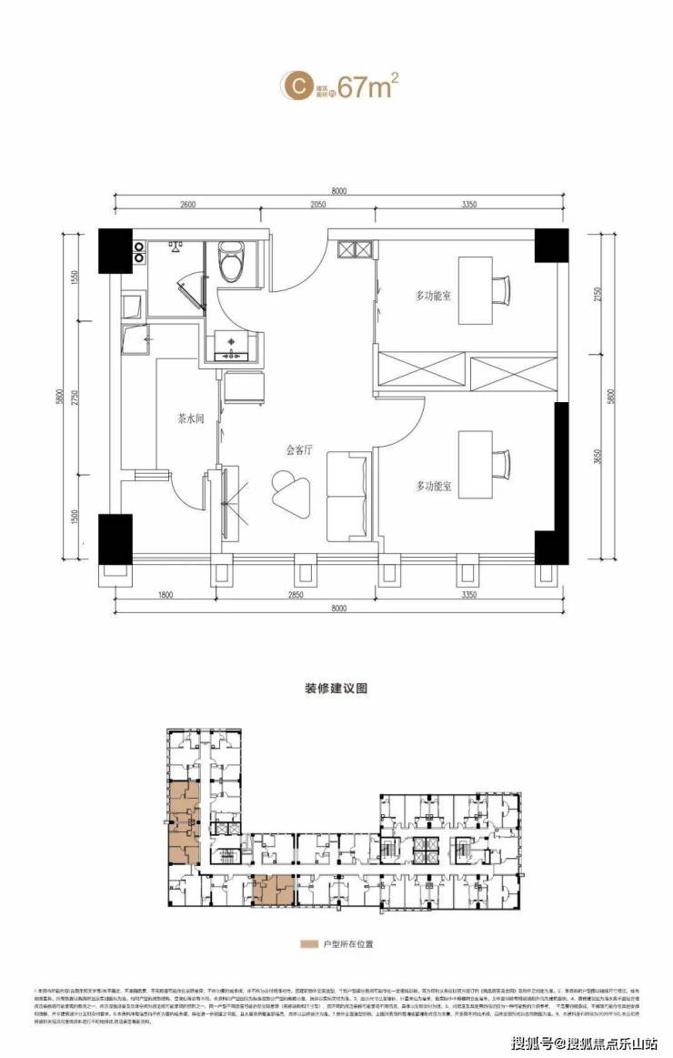
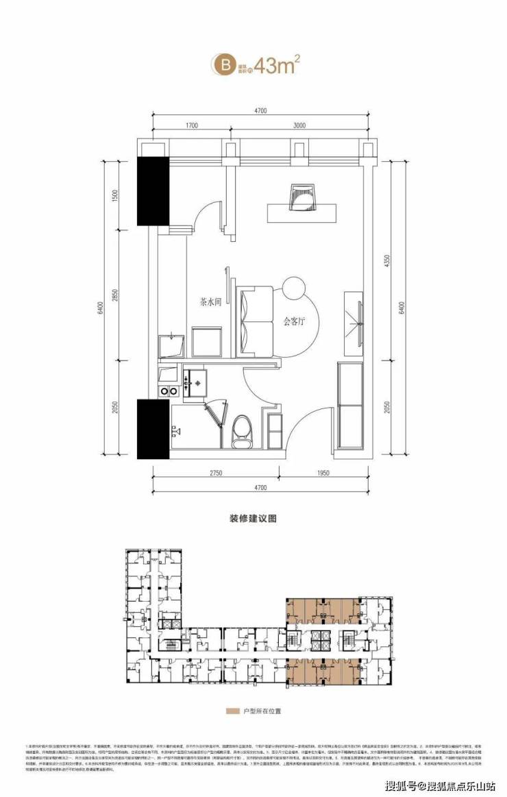
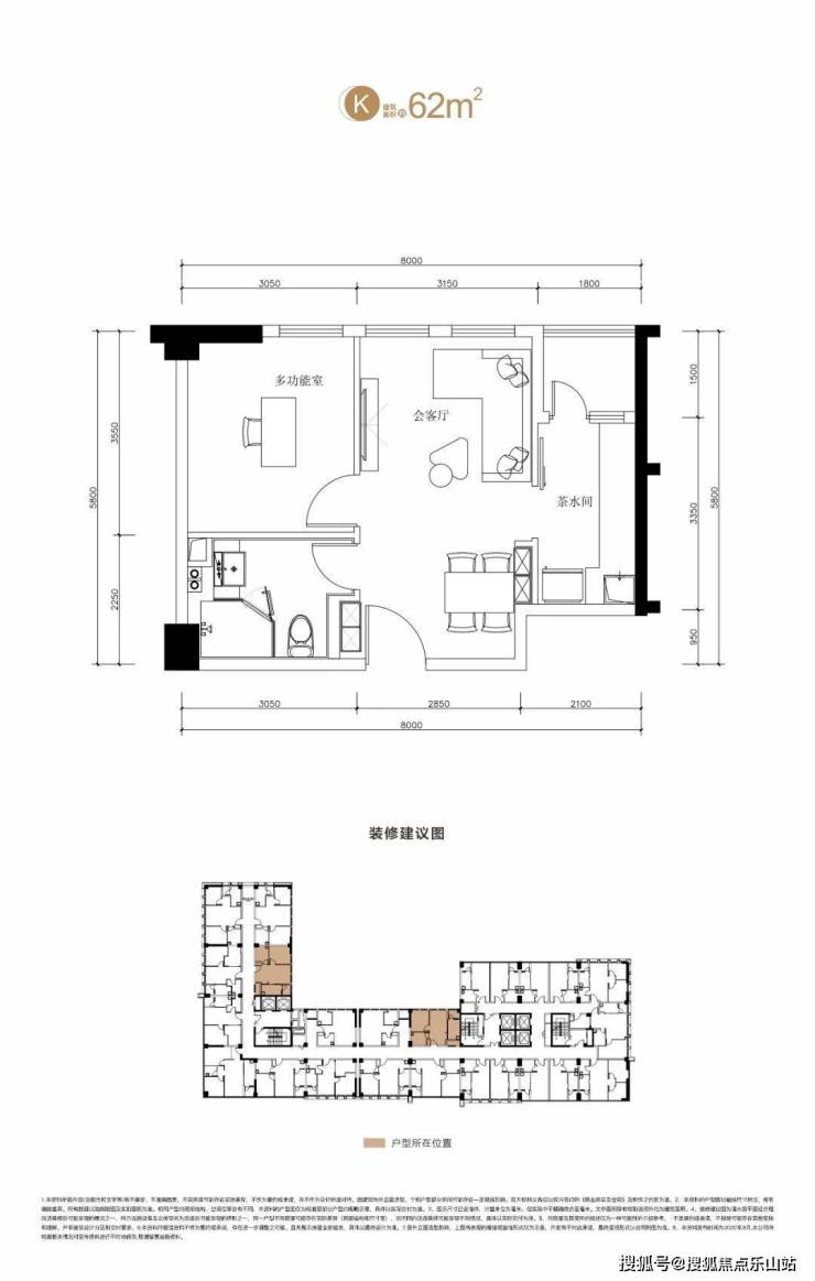
户型:标间(43—52㎡)/套一(62—67㎡)/套二(67—87㎡)/套三(84—120㎡)

公摊:25—30%

交付:精装

总户数:2457户

单价:8400—9000元/㎡

总层高:23F—32F

层高:3米

绿化率:20%

梯户比:6T24/4T12

开发商:碧桂园

物业费:2.4元/㎡

物业公司:碧桂园物业

交房时间:2023年11月

付款方式:按揭、全款、支持首付分期、全款分期

六大购买理由:

1、零门槛买入新一线城市——双流区主中心

2、近享千亿产业园发展红利——成都芯谷

3、便捷的城市级轨交站点——彭镇TOD

4、城市级商业地标,第四大商业街——海德广场

5、标间/套一/套二/套三全面积段产品,满足所有需求

6、总价38万起,清水价买超高性价比类住宅

【营销中心】:028-62585717「销售热线」

【置业顾问】:13518186441「微信同步」

【置业顾问】:13668208612「微信同步」

温馨提示:专业一对一热情服务,为了节约您的等待时间,看房请提前致电预约

免责声明:

以上内容仅作为邀约邀请,涉及的图片为部分区域实拍图和美学畅想图,具体内容请以现场公示和合同约定为准;本文部分资料、部分图片来源于网络,如有侵权请联系我们删除

声明:本文由入驻焦点开放平台的作者撰写,除焦点官方账号外,观点仅代表作者本人,不代表焦点立场。