西派浣花 楼盘在售信息 项目详情 价格区间 营销销售中心电话
扫描到手机,新闻随时看
扫一扫,用手机看文章
更加方便分享给朋友
【营销中心】:028-62585717「销售热线」
【置业顾问】:13518186441「微信同步」
【置业顾问】:13668208612「微信同步」
温馨提示:专业一对一热情服务,为了节约您的等待时间,看房请提前致电预约
和以往不同,这一轮回暖不是“一刀切”的普涨,而是实实在在的结构性好转。新房市场虽然整体仍有压力,但供应端已经在主动优化,1月成都新房入市量同比减少37.8%,缩量提质的趋势十分明显。核心城区的优质房源、次新房依旧抢手,而远郊非核心板块则保持平稳,市场不再盲目扩张,而是回归居住本身,这正是楼市走向健康的关键。支撑市场好转的,还有持续落地的稳楼市政策,每一条都精准戳中市场痛点。全国层面,高层明确房地产是国民经济基础产业,“稳楼市”成为核心导向,过去严苛的“三道红线”转向差异化监管,房企融资环境逐步宽松,保交房、化债工作稳步推进,行业风险持续降低。各地因城施策,公积金放宽、存量房盘活、购房补贴等利好不断,让市场环境越来越宽松。成都的政策更是接地气、有实效。自2022年调控以来,成都楼市已连续调整4年。
建筑面积: 60987.62㎡,总户数:310户,总栋数:3栋,车位:总数358个 ,车位比:1:0.7,物业费:9元/㎡,全屋智能家居系统
建筑面积:120-165㎡一房 ,286-370㎡二房
梯户比:1#楼28层 低区3-13F三梯6户/中区14-23F三梯5户/高区24-28F三梯4户
2#楼28层 低区3-13F三梯5户/中区14-23F三梯5户/高区24-27F三梯3户
1号楼标准层平面图
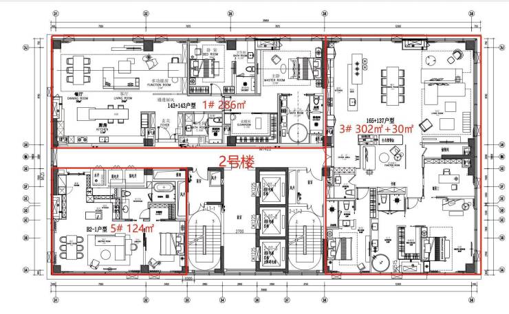
2号楼标准层平面图
【营销中心】:028-62585717「销售热线」
【置业顾问】:13518186441「微信同步」
【置业顾问】:13668208612「微信同步」
温馨提示:专业一对一热情服务,为了节约您的等待时间,看房请提前致电预约
免责声明:
以上内容仅作为邀约邀请,涉及的图片为部分区域实拍图和美学畅想图,具体内容请以现场公示和合同约定为准;本文部分资料、部分图片来源于网络,如有侵权请联系我们删除
声明:本文由入驻焦点开放平台的作者撰写,除焦点官方账号外,观点仅代表作者本人,不代表焦点立场。
