西派浣花 现在可以买吗?性价比怎么样?
扫描到手机,新闻随时看
扫一扫,用手机看文章
更加方便分享给朋友
【营销中心】:028-62585717「销售热线」
【置业顾问】:13518186441「微信同步」
【置业顾问】:13668208612「微信同步」
温馨提示:专业一对一热情服务,为了节约您的等待时间,看房请提前致电预约
成都楼市的冠军新闻又又又又刷屏了。连说四个“又”,因为这是成都楼市蝉联全国销冠的第四年。从套数上看——成都共成交新房9.18万套,二手房23.4万套,总量32.6万套。第二名上海以32.4万套紧随其后,第三、第四的武汉和北京分别成交21.32万套和20.9万套,悬殊很大。从面积方面看——成都以3107万㎡绝对领先,第二名上海的成交面积是2942万㎡,第三名北京成交面积为2022万㎡。得一次冠军可能是巧合,得两次冠军就已经说明实力。蝉联四次是什么含金量?在网上发一万条帖子弯酸成都的空气、嘲讽成都的经济,抵不过成都楼市的年终答卷。成都确实会营销,但“吸引人来是青铜,把人留下才是王者”。全中国最能吸引人生根的城市,就是成都!太多人质疑成都,为什么成都的有钱人那么多?为什么在成都什么房子都卖得掉?今天柳叶刀就来条理清晰地给大家深度剖析,成都贵房子卖给了谁、便宜房子卖给了谁,为什么这些人都愿意在成都买房、在成都安家?
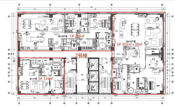
建筑面积: 60987.62㎡,总户数:310户,总栋数:3栋,车位:总数358个 ,车位比:1:0.7,物业费:9元/㎡,全屋智能家居系统
建筑面积:120-165㎡一房 ,286-370㎡二房
梯户比:1#楼28层 低区3-13F三梯6户/中区14-23F三梯5户/高区24-28F三梯4户
2#楼28层 低区3-13F三梯5户/中区14-23F三梯5户/高区24-27F三梯3户
1号楼标准层平面图
2号楼标准层平面图
【营销中心】:028-62585717「销售热线」
【置业顾问】:13518186441「微信同步」
【置业顾问】:13668208612「微信同步」
温馨提示:专业一对一热情服务,为了节约您的等待时间,看房请提前致电预约
免责声明:
以上内容仅作为邀约邀请,涉及的图片为部分区域实拍图和美学畅想图,具体内容请以现场公示和合同约定为准;本文部分资料、部分图片来源于网络,如有侵权请联系我们删除。
声明:本文由入驻焦点开放平台的作者撰写,除焦点官方账号外,观点仅代表作者本人,不代表焦点立场。
