国贸·蓉上优劣势分析-楼盘踩盘分析-楼盘地址-6月剩余房源价格表
扫描到手机,新闻随时看
扫一扫,用手机看文章
更加方便分享给朋友
【营销中心】:028-62585717「销售热线」
【置业顾问】:13518186441「微信同步」
【置业顾问】:13668208612「微信同步」
温馨提示:专业一对一热情服务,为了节约您的等待时间,看房请提前致电预约!!!
从房地产市场自身运行规律来看,楼市也该慢慢企稳了。回顾过去十多年的房地产市场发展历程,楼市经历了持续大涨的牛市周期,也在过去几年经历了快速的下跌调整。从2020年算起,楼市也已经下行调整了4-5年了,很多地方的房价从高点下跌了40%以上,甚至50%以上。可以说,在如此短的时间内,这样的下跌幅度也算是很大的。房价在短时间下跌幅度这么大,也相当程度上的释放房地产市场的风险。
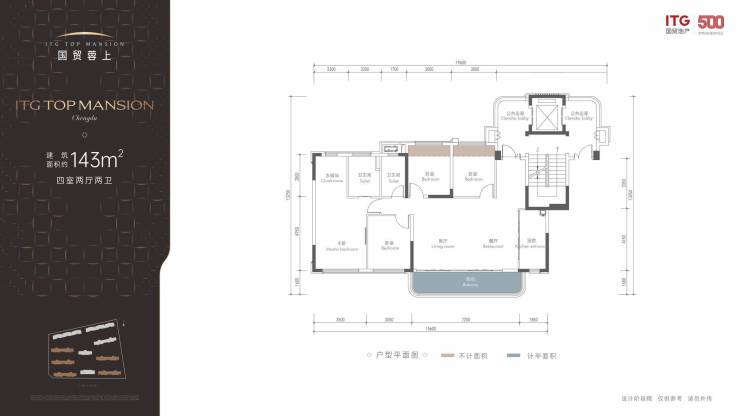
基础信息:开发商公司:成都悦蓉筑城有限公司;占地面积:42亩;容积率:1.7低密《纯洋房》;绿化率:35%
总高:7-11层;层高:3米(普通)3.3米(楼王);梯户比:1梯2户;可售套数:344套;产权年限:70年;
物业公司:国贸服务;物业费:4.2/㎡;车位比:1 :1.7;交房时间:预计2025年6月30日
交通配套
坐拥三横三纵的五轨立体交通网络体系
三横:中环路、二环路、三环路
三纵:佳灵路、创业路、高朋大道
五轨:3/5/7/8/10号线5条在营地铁线包围,是整个成都地铁覆盖最密集区域。
商业配套
以项目为圆心,成都三大城市级商圈——IFS—太古里—春熙路商圈、新南商圈以及金融城商圈,还有五大区域级商圈——红牌楼商圈、大悦城商圈、玉林生活圈、双楠生活圈、磨子桥商圈。
医疗配套
项目周边武侯区人民医院(二级甲等)、西南儿童医院、成都双楠医院(二级甲等)、四川省骨科医院(三级甲等),以及享誉盛名的华西医院
教育资源
武侯区第七幼儿园、美亚蒙特梭利幼儿园、金苹果美宇幼儿园、成都华兴小学、北二外成都附属小学、北二外成都附属中学
成都市第七幼儿园,是武侯区公办高标准、高品质幼儿园之一,于 2017年9月开园一共有9个班,提供270个学位。
北二外有着“外交家摇篮”的美称。从师资方面,北二外附中是武侯区教育局“两自一包”(教师自聘、管理自主、经费包干)管理模式试点学校。为了保证学生中、高考成绩整体优秀,实行数学老师当班主任,并只教一个班,强化学生数学学科能力提升。
【营销中心】:028-62585717「销售热线」
【置业顾问】:13518186441「微信同步」
【置业顾问】:13668208612「微信同步」
温馨提示:专业一对一热情服务,为了节约您的等待时间,看房请提前致电预约!!!
免责声明:
以上内容仅作为邀约邀请,涉及的图片为部分区域实拍图和美学畅想图,具体内容请以现场公示和合同约定为准;本文部分资料、部分图片来源于网络,如有侵权请联系我们删除
基础信息:开发商公司:成都悦蓉筑城有限公司;占地面积:42亩;容积率:1.7低密《纯洋房》;绿化率:35%
总高:7-11层;层高:3米(普通)3.3米(楼王);梯户比:1梯2户;可售套数:344套;产权年限:70年;
物业公司:国贸服务;物业费:4.2/㎡;车位比:1 :1.7;交房时间:预计2025年6月30日
交通配套
坐拥三横三纵的五轨立体交通网络体系
三横:中环路、二环路、三环路
三纵:佳灵路、创业路、高朋大道
五轨:3/5/7/8/10号线5条在营地铁线包围,是整个成都地铁覆盖最密集区域。
商业配套
以项目为圆心,成都三大城市级商圈——IFS—太古里—春熙路商圈、新南商圈以及金融城商圈,还有五大区域级商圈——红牌楼商圈、大悦城商圈、玉林生活圈、双楠生活圈、磨子桥商圈。
医疗配套
项目周边武侯区人民医院(二级甲等)、西南儿童医院、成都双楠医院(二级甲等)、四川省骨科医院(三级甲等),以及享誉盛名的华西医院
教育资源
武侯区第七幼儿园、美亚蒙特梭利幼儿园、金苹果美宇幼儿园、成都华兴小学、北二外成都附属小学、北二外成都附属中学
成都市第七幼儿园,是武侯区公办高标准、高品质幼儿园之一,于 2017年9月开园一共有9个班,提供270个学位。
北二外有着“外交家摇篮”的美称。从师资方面,北二外附中是武侯区教育局“两自一包”(教师自聘、管理自主、经费包干)管理模式试点学校。为了保证学生中、高考成绩整体优秀,实行数学老师当班主任,并只教一个班,强化学生数学学科能力提升。
【营销中心】:028-62585717「销售热线」
【置业顾问】:13518186441「微信同步」
【置业顾问】:13668208612「微信同步」
温馨提示:专业一对一热情服务,为了节约您的等待时间,看房请提前致电预约!!!
免责声明:
以上内容仅作为邀约邀请,涉及的图片为部分区域实拍图和美学畅想图,具体内容请以现场公示和合同约定为准;本文部分资料、部分图片来源于网络,如有侵权请联系我们删除
声明:本文由入驻焦点开放平台的作者撰写,除焦点官方账号外,观点仅代表作者本人,不代表焦点立场。
