西派浣花 项目在售户型图 位置 样板间参观预约 售楼中心电话
扫描到手机,新闻随时看
扫一扫,用手机看文章
更加方便分享给朋友
【营销中心】:028-62585717「销售热线」
【置业顾问】:13518186441「微信同步」
【置业顾问】:13668208612「微信同步」
温馨提示:专业一对一热情服务,为了节约您的等待时间,看房请提前致电预约
这一次,成都是真当上榜一大哥了。 25年刚结束,「顶压前行」环境下的楼市还在持续崛起。 从市场维度来看,成都在全国走出了一波独立行情——去年全市住房成交量保持较高规模,一、二手房全年成交32.08万套、3403万㎡,能与上海、广州、杭州等一线城市一较高下。产品端口上,依旧是革新的主战场。住宅创新力度大、场景丰富度高、建筑立面进化,卷出了新高度,也卷出了不少爆款产品。 在市场和产品两手抓两手硬、同时「提量提质」的趋势中,我们有理由相信今年的楼市,还会继续领先一步,做大做强。 回归初心,落位在产品这个本行上,老编辑其实对25年的住宅产品做了不少分析解读。而今天要分享的,就是和产品有着高联结的规划总图——它是住宅项目叙事的开端,也对后期的场域气质起到了主导性的作用。
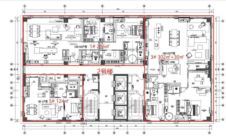
建筑面积: 60987.62㎡,总户数:310户,总栋数:3栋,车位:总数358个 ,车位比:1:0.7,物业费:9元/㎡,全屋智能家居系统
建筑面积:120-165㎡一房 ,286-370㎡二房
梯户比:1#楼28层 低区3-13F三梯6户/中区14-23F三梯5户/高区24-28F三梯4户
2#楼28层 低区3-13F三梯5户/中区14-23F三梯5户/高区24-27F三梯3户
1号楼标准层平面图
2号楼标准层平面图
【营销中心】:028-62585717「销售热线」
【置业顾问】:13518186441「微信同步」
【置业顾问】:13668208612「微信同步」
温馨提示:专业一对一热情服务,为了节约您的等待时间,看房请提前致电预约
免责声明:
以上内容仅作为邀约邀请,涉及的图片为部分区域实拍图和美学畅想图,具体内容请以现场公示和合同约定为准;本文部分资料、部分图片来源于网络,如有侵权请联系我们删除。
声明:本文由入驻焦点开放平台的作者撰写,除焦点官方账号外,观点仅代表作者本人,不代表焦点立场。
