成都 西派浣花 楼盘优缺点 值得买吗?房子怎么样?
扫描到手机,新闻随时看
扫一扫,用手机看文章
更加方便分享给朋友
【营销中心】:028-62585717「销售热线」
【置业顾问】:13518186441「微信同步」
【置业顾问】:13668208612「微信同步」
温馨提示:专业一对一热情服务,为了节约您的等待时间,看房请提前致电预约
关于2025年的成都楼市,有两个重点数据:1、成都以1181万㎡、90083套数据,位列销售面积全国第一,销售套数全国第一;2、成都总价1000万以上的新房成交1371套,2000万以上新房全年成交150套,均创新高。这两个数据,一个代表着成都购买力的广度,一个代表成都购买力的深度。但在成都购买力全国第一的数据背后,高总价的成交只占极少数,真正卖得好的房子却是150万-500万以内的房子。据统计,去年,总价150万-500万区间的房源,供应约45762套,占比约56.74%;销售约51502套,占比约57.47%。
建筑面积: 60987.62㎡,总户数:310户,总栋数:3栋,车位:总数358个 ,车位比:1:0.7,物业费:9元/㎡,全屋智能家居系统
建筑面积:120-165㎡一房 ,286-370㎡二房
梯户比:1#楼28层 低区3-13F三梯6户/中区14-23F三梯5户/高区24-28F三梯4户
2#楼28层 低区3-13F三梯5户/中区14-23F三梯5户/高区24-27F三梯3户
1号楼标准层平面图
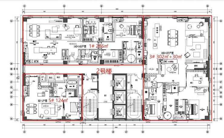
2号楼标准层平面图
【营销中心】:028-62585717「销售热线」
【置业顾问】:13518186441「微信同步」
【置业顾问】:13668208612「微信同步」
温馨提示:专业一对一热情服务,为了节约您的等待时间,看房请提前致电预约
免责声明:
以上内容仅作为邀约邀请,涉及的图片为部分区域实拍图和美学畅想图,具体内容请以现场公示和合同约定为准;本文部分资料、部分图片来源于网络,如有侵权请联系我们删除。
声明:本文由入驻焦点开放平台的作者撰写,除焦点官方账号外,观点仅代表作者本人,不代表焦点立场。
