国宾璟园 楼盘信息详情 营销中心电话 项目在售详情介绍 项目资料信息介绍
扫描到手机,新闻随时看
扫一扫,用手机看文章
更加方便分享给朋友
【营销中心】:028-62585717「销售热线」
【置业顾问】:13518186441「微信同步」
【置业顾问】:13668208612「微信同步」
温馨提示:专业一对一热情服务,为了节约您的等待时间,看房请提前致电预约!!!
新房市场:7月成交量逆势增长,价格结束“七连涨”但结构分化新政对新房市场的拉动作用主要体现在成交量回升,但价格受供应结构影响呈现“整体企稳、局部上涨”态势。成交量:7月成都新房成交6千多套,环比增长23.6%(传统淡季逆势增长),主要因公积金松绑(二套房首付比例降至20%)、“卖旧买新”置换需求释放等因素推动。价格走势:国家统计局数据显示,6月成都新建商品住宅价格结束“七连涨”,环比下降0.3%;但新政后,主城核心区(如锦江区)因土地稀缺性加剧(楼面价突破4万/㎡),新房价格呈现补涨趋势,8月锦江区新房均价首次突破5万元/㎡,而成华区等近郊区域因前期价格基数低,呈现“量价齐升”(1-6月成交4567套,同比增幅36.2%)。
基础参数
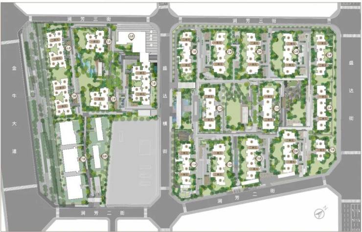
占 地:约109亩
面 积:131-169平(璟园)
88-109平(璟怡园)
均 价:26000/平
总 价:220-430万
物业费:3.83元/平/月(中海物业)
梯户比:2T2户(璟园70亩817户)
2T4户(璟怡园504户)
总层高:13-17F
车位比:1:1.66
容积率:2.5
绿化率:44.37%(璟园)
36.09%(璟怡园)
交房标准:精装带三大件(大部分楼栋)
交房时间:2024年10月
城投置地·国宾璟园,总占地约109亩,容积率2.5。2023年至今,成都主城五区超100亩的地块仅有2宗,可想而知项目这种超百亩体量的稀贵。
交通配套:
两横三纵立体交通网络体系
两横:金牛大道、西华大道。
三纵:金粮路、金芙蓉大道、三环路。
坐享双地铁三TOD+10余条公交路线
主要的2条地铁线路:2号线,6号线,9号线2期和12号线规划中
3TOD:兴盛TOD、梓潼宫TOD、金周路TOD
🛍商业配套:社区综合体(门口无缝街接);天府公园内8万方商业;爱情海购物公园;沃尔玛山姆会员店及大悦城
15万方龙湖西宸天街等商业
医疗配套:
项目附近有363医院、成都市西区医院、四川省人民医院金牛医院、还有规划建设的三级甲等公立医院-第五人民医院金牛院区。
教育资源
幼儿教育:
成都市第十六幼成蹊分园、美乐思幼儿园
小学教育:
石笋街小学(即将竣工)、成都市兴盛小学、金泉小学、全兴小学
中学教育:七中万达学校;成都外国语学校;犀浦外国语学校
生态配套:所在的区域位于成都市重点打造三大“天府级”之一的天府艺术公园片区之内,而天府艺术公园由我们成都城投打造建设而成。
天府艺术公园片区总占地约 6270 亩,位于东至三环路,南至金牛大道,西至西环线,北至西华大道的国合区域内。
【营销中心】:028-62585717「销售热线」
【置业顾问】:13518186441「微信同步」
【置业顾问】:13668208612「微信同步」
温馨提示:专业一对一热情服务,为了节约您的等待时间,看房请提前致电预约!!!
免责声明:
以上内容仅作为邀约邀请,涉及的图片为部分区域实拍图和美学畅想图,具体内容请以现场公示和合同约定为准;本文部分资料、部分图片来源于网络,如有侵权请联系我们删除。
声明:本文由入驻焦点开放平台的作者撰写,除焦点官方账号外,观点仅代表作者本人,不代表焦点立场。
