空港发展·云玺观宸 新房价值高吗?可以下手买吗?
扫描到手机,新闻随时看
扫一扫,用手机看文章
更加方便分享给朋友
【营销中心】:028-62585717「销售热线」
【置业顾问】:13518186441「微信同步」
【置业顾问】:13668208612「微信同步」
虽然2025年成都楼市最直观的行业体感是“规模收缩”,但放在全国市场来看,成都仍然是一个生机勃勃的高能级市场。我们从房联备案口径全年成交数据的TOP10榜单中,看到了一个不一样的成都楼市。由于我们选取的维度为备案口径数据,或许会跟其他口径数据有些出入,但这一数据却更真实、具备参考性。2025年市场规模的缩减,是不争的事实。中指研究院数据显示,2025成都商品住宅成交面积为1181万㎡,同比下降18.3%。成交规模缩减背后的关键原因在于供应量的下滑。中指研究院数据显示,2025成都商品住宅供应面积为1037万㎡,同比下降20.5%。但规模收缩的表象下成都市场仍然暗藏澎湃活力,去年销售TOP10的榜单就是这样的集中体现。在这份榜单中,中国金茂、华发、成都嘉禾兴都是首次登榜,新上榜的企业纷纷将成都视为战略深耕的重要阵地,一直在榜单上的房企保利、华润置地、招商蛇口、中国铁建等,也更愿意在这座城市创造新的增长机会。
空港发展“云玺系”首发 城市湖居奢藏
一湖七园生态高地 领潮怡心享湖时代
5/19/22号线三轨环绕,双机场中心点
超宽楼间距 纯品质改善 无界景观视野
建面约141-199㎡套四、套五 T1、T2纯板式宽幕洋房
中国·成都·国际怡心湖

成立于2008年。17年来始终以“引导航空经济产业发展壮大,推动航空经济之都建设升级”为使命要求,以“产业投资、载体建设、资产运营”为主 要抓手,形成“一个核心、九大支柱”的“1+9”业务布局体系。按照区委区政府安排部署,聚焦开展工程建设、地产经营、城市运营、口岸经济、公共交通服务、医疗健康等业务,致力于成为高品质、专业化的城市综合运营商。
空港置业|世界空港的人居理想
以“匠心营城,幸福生活”为宗旨,专注品质住宅开发,打造“云”系五大产品线,总开发16个项目、总投资约234亿。依托国企实力保障安全交付,前瞻布局教育商业交通配套,助力购房者安享当下与未来城市红利,超1300家庭信赖之选。
▋空港发展-云玺观宸-迭新怡心湖奢享生活
项目定位空港发展集团峯级产品系——云玺系,占位怡心湖高端居住区,将打造成为城南具有代表性的高端城市度假型社区。
▋项目基础信息:
占地面积:约79亩
建筑面积:约10.6万㎡
容积率:2.0
建筑密度:<20%
绿地率:35%
梯户比:1T1、2T2
车位数:1276个
楼栋数:22栋 11-17层
总户数:675户
产品面积段:建面约141、168、199㎡
(意境图,以最终交付效果为准)
▋ 天府怡心 城南宜业宜居改善高地
成都向南,国际城南稳居GDP榜首,是繁华与活力的黄金地带。然而,金融城与天府CBD的高门槛让许多人望而却步。城南产业与人居板块分隔明显:金融城、大源、新川以产业为主;麓湖、锦江生态带以人居为主;而怡心湖则兼具产业、湖景资源与城市配套,满足职住平衡与改善需求,成为城南宜居新高地。
天府大道剑南大道双轴驱动:天府大道串联金融城与天府CBD,剑南大道贯穿锦城湖、大源、怡心湖,塑造高端居住属性。怡心湖位居城南黄金三角,衔接高新区与天府新区,双机场、高铁站环绕,资源聚核,是双流未来十年重点打造的核心板块。
天府怡心湖 产城湖3.0模式:较锦城湖产业规划更合理,较兴隆湖生活配套更完善。湖居生活与都市繁华完美融合,产业蓬勃、出行便捷,新兴业态蓄势待发,尽享新一代湖居生活。
以滨海湾为蓝本 高起点蓝图 :以“六位一体”打造产城融合新典范,汇聚高新、天新、双流三区红利,跃升区域发展与人居价值。从区域规划看,怡心湖由欧洲知名建筑公司阿特金斯设计,串联怡心湖与公兴湖,形成峡谷式生态建筑系统,规划ABCD四大定位鲜明区域:
其“3+3+N”产业体系中,包含了N项完善的生活服务:教育、医疗、餐饮、购物、娱乐、文化、休闲、度假、健身、体育、居住等元素。将城市繁华与自然生活完美结合。
项目位于片区功能齐全、近湖区的住宅核芯地段,择居云玺观宸,畅享高能级资源与完备配套

“7”字规划之首 享醇熟星级配套
▍交通-多维路网 通达全城
项目距双流机场约10km,距天府机场约45km,板块上承华府城市生活功能区,下启天府国际生物城和新津,西接双流航空港,东连天府新区、东部新区天府航空港。周边拥有着庞大而便捷的立体交通网络,机场轨道相互串联交替,“四横三纵三地铁”的立体交通路网可快捷通达全城和两机场。
三横:牧华路、双兴大道、正公路;
四纵:剑南大道、华府大道、物联大道、京昆高速 ;
三地铁:5号线(已通车)、19号线(已通车)、22号线(规划来源于《成都市城市轨道交通第五期建设规划(2024-2029年)》)
▍商业-高阶商圈 万象繁华
项目3km内众享醇熟商圈,紧邻商业邻里中心(规划中),湖区内万科梦想城、西南首家日航酒店、银泰INpark、蔚蓝湖滨艺术中心、湖滨商业街、全球十大酒店管理集团旗下阿丽拉+凯悦尚萃双国际五星级酒店等配套,以及建设中的空港怡心城,未来商业体量或将超80万方。
【云熙公园】
总占地面积约12.8万㎡,功能涉及综合绿道、运动空间、休闲广场、综合商业等,景观规划以数字云 x 商业、未来公园 x 未来社区为理念,展现公园城市与公园社区“互联、互通、无界”的生态融合。公园定位区域核心景观廊道,预计2024年6月呈现。
【A区湿地公园】
公园总占地面积约17万㎡,以“休闲漫步区”、“湖畔运动区”、“水岸乐活区”、“艺术地形区”四个区域进行组成,并有怡飞大道划分为南北两区,北区规划休闲运动、户外营地为主要功能;南区以亲子乐园、艺术景观为主要功能,南北区通过环湖步道及栈桥相连接。
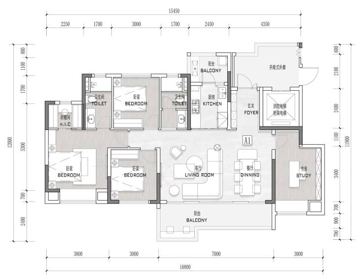
约16.8米面宽,四开间朝南
约11㎡独立入户光厅
超大方正生活阳台
约32㎡大平层级横方厅
L型阳台,约6㎡户外客厅
独立采光化妆+衣帽间
166㎡户型:
约17.35米极致南向面宽
约12㎡独立入户光厅
约21㎡超大甲板阳台
约39㎡LDKB大平层级横厅,南北通透
独立藏宝阁式衣帽间
中岛社交U型厨房
X灵动空间
199㎡户型(T1):
超尺度边厅带来270°环幕视野
光厅入户+入户花园
约17.5米L型阳台
1T1户私享门
五房三套房+总统套主卧
板块天花板户型,全城稀缺
项目推广名:空港发展·云玺观宸
项目备案名:云玺观宸苑
【营销中心】:028-62585717「销售热线」
【置业顾问】:13518186441「微信同步」
【置业顾问】:13668208612「微信同步」
本广告为要约邀请,仅作为宣传示意,不作为开发商的任何承诺。一切图文资料、规划设计均以政府最终批准文件、双方签订的买卖合同及实际交付为准。本项目周边已规划及/或已建成及/或规划中及/或建设中的公共设施及规划用地,均以政府有关部门最终核准及审批文件为准。本资料对项目周边学校等教育资源的介绍旨在提供相关信息,并不意味着本公司对就学安排作出承诺,教育资源的名称、办学性质、办学规模、学位设置、开学(班)时间、招生条件、收费标准及招生区域等存在调整的可能,就学招生政策应以教育主管部门及学校颁布的政策规定为准。部分图文资料来源于网络,如有侵权请联系删除。
开发商:成都翰云置业有限公司
资料收集日期截止2025年2月,开发商保留修改的权利,敬请留意最新资料。
声明:本文由入驻焦点开放平台的作者撰写,除焦点官方账号外,观点仅代表作者本人,不代表焦点立场。
