西派浣花交房时间-精装标准-8月优惠总价多少-销售中心电话
扫描到手机,新闻随时看
扫一扫,用手机看文章
更加方便分享给朋友
【营销中心】:028-62585717「销售热线」
【置业顾问】:13518186441「微信同步」
【置业顾问】:13668208612「微信同步」
温馨提示:专业一对一热情服务,为了节约您的等待时间,看房请提前致电预约
房价还会继续单边下跌吗?最近几年,房价的跌跌不休把很多人都吓坏了,看待房地产市场的观点也是发生了大逆转,过去很多人认为房价“只涨不跌”,现在又有很多人认为房价下跌是无底洞。房子本子也是商品,其价格也是由供求关系决定。所以任何绝对的“看涨”或是“看跌”都是不正确的,理应根据市场的变化来判断行情的走势。房地产市场的发展经验来看,在整体市场不济的情况下,大城市的房价也进行了激烈的下跌调整。但随着政策利好的落地及市场的逐渐回稳,这些大城市的房价有望快速地稳住,结束过去一段时间房价单边下跌的行情。
建筑面积: 60987.62㎡,总户数:310户,总栋数:3栋,车位:总数358个 ,车位比:1:0.7,物业费:9元/㎡,全屋智能家居系统
建筑面积:120-165㎡一房 ,286-370㎡二房
梯户比:1#楼28层 低区3-13F三梯6户/中区14-23F三梯5户/高区24-28F三梯4户
2#楼28层 低区3-13F三梯5户/中区14-23F三梯5户/高区24-27F三梯3户
1号楼标准层平面图
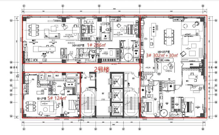
2号楼标准层平面图
【营销中心】:028-62585717「销售热线」
【置业顾问】:13518186441「微信同步」
【置业顾问】:13668208612「微信同步」
温馨提示:专业一对一热情服务,为了节约您的等待时间,看房请提前致电预约
免责声明:
以上内容仅作为邀约邀请,涉及的图片为部分区域实拍图和美学畅想图,具体内容请以现场公示和合同约定为准;本文部分资料、部分图片来源于网络,如有侵权请联系我们删除。
声明:本文由入驻焦点开放平台的作者撰写,除焦点官方账号外,观点仅代表作者本人,不代表焦点立场。
