幸福桥TOD·幸福拾光区域交通-项目基础资料-户型-配套服务-低密舒居-

搜狐焦点内江站 2026-03-06 10:30:00
用手机看
扫描到手机,新闻随时看

扫一扫,用手机看文章
更加方便分享给朋友

幸福桥TOD·幸福拾光 【营销中心】:028-62585717「销售热线」 【置业顾问】:13518186441「微信同步」 【置业顾问】:13668208612「微信同步」

幸福桥TOD·幸福拾光

【营销中心】:028-62585717「销售热线」

【置业顾问】:13518186441「微信同步」

【置业顾问】:13668208612「微信同步」

成都的政策更是接地气、有实效。自2022年调控以来,成都楼市已连续调整4年。市场好转的,还有持续落地的稳楼市政策,高层明确房地产是国民经济基础产业,“稳楼市”成为核心导向,过去严苛的“三道红线”转向差异化监管,房企融资环境逐步宽松,保交房、化债工作稳步推进,行业风险持续降低。各地因城施策,公积金放宽、存量房盘活、购房补贴等利好不断,让市场环境越来越宽松。

交通:5号线幸福桥站,地铁27号线

商业:汇融广场、龙湖锦宸天街、

大都会、福地广场

教育:机关三幼、第十六幼儿园(蜀道园区)

人民北路小学天北校区、成都实验小学

公园:凤凰山露天音乐公园、凤凰山体育公园

医疗:三甲医院西部战区总医院,

金牛区中医医院(在建)

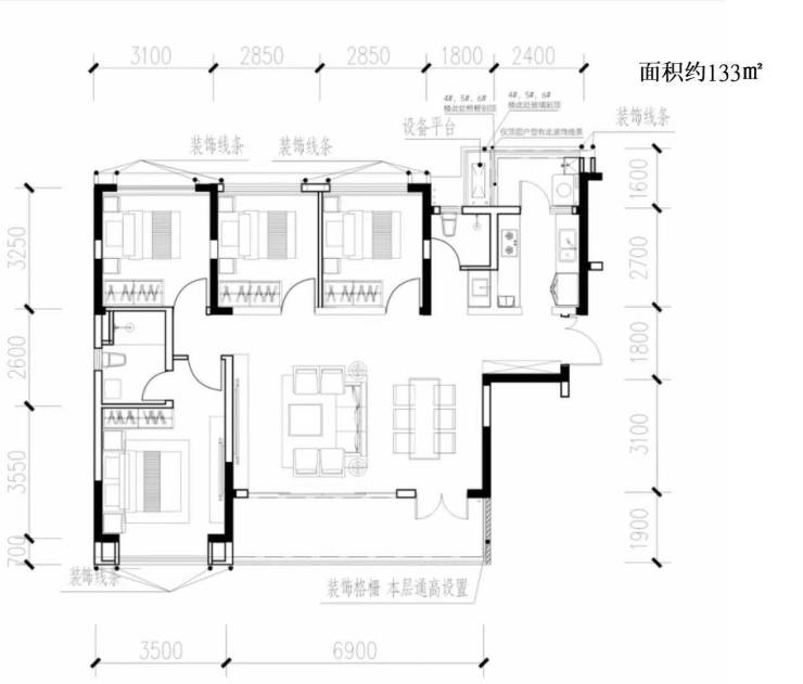
•总占地700亩 /二期占地64亩/三期占地74亩

•项目区位:金牛区北部新城-地铁5#幸福桥站

•总层高:二期12-17F(一楼4.5米架空层无住宅)三期9-17F

•容积率:2.0

•绿化率:二期52% 三期35%

•梯户比:二期2T2 三期 1T2户2T3户

•物业费:3.8元

•停车位:二期1:1.6三期1:1.2

•交房时间:二期2024.8月三期2025.10月

•总户数:二期624户三期503户

•交付标准:清水洋房型:

幸福桥TOD·幸福拾光

【营销中心】:028-62585717「销售热线」

【置业顾问】:13518186441「微信同步」

【置业顾问】:13668208612「微信同步」

免责声明:

以上内容仅作为邀约邀请,涉及的图片为部分区域实拍图和美学畅想图,具体内容请以现场公示和合同约定为准;本文部分资料、部分图片来源于网络,如有侵权请联系我们删除

声明:本文由入驻焦点开放平台的作者撰写,除焦点官方账号外,观点仅代表作者本人,不代表焦点立场。