成都 海德 ONE99 售楼部电话(已认证)户型面积价格区间+最新优惠 项目介绍
扫描到手机,新闻随时看
扫一扫,用手机看文章
更加方便分享给朋友
海德 ONE99【营销中心】028-62585717
楼盘实时价格|户型赏析|配套规划|置业顾问在线咨询
获取最新房源动态及专属优惠,敬请致电
温馨提示:一对一专属接待,看房请提前预约,减少等候时间
项目基础信息
・精装现房|双流芯谷・彭镇 TOD・总价 38 万起
占地:56.7 亩
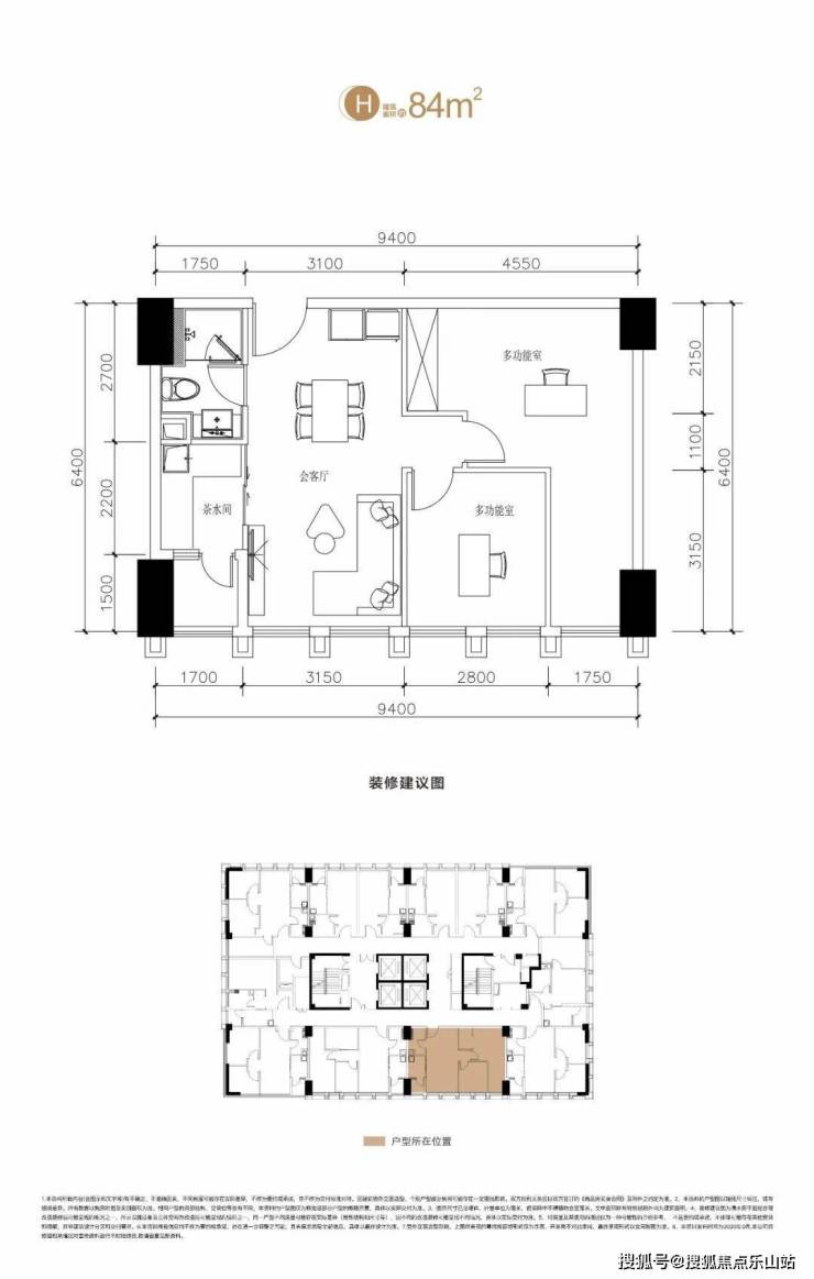
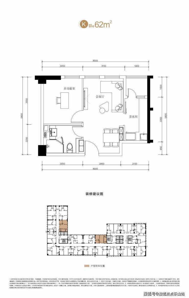
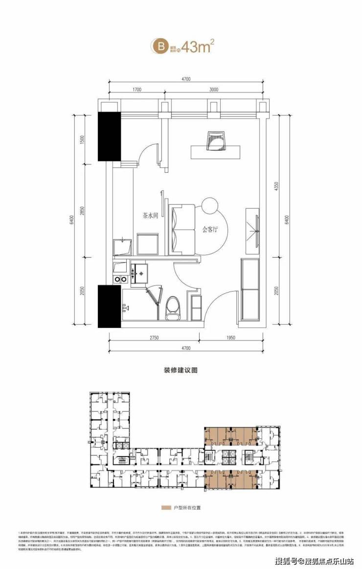
户型:标间 43–52㎡/ 套一 62–67㎡/ 套二 67–87㎡/ 套三 84–120㎡
公摊:25–30%
交付标准:精装
总户数:2457 户
单价:8400–9000 元 /㎡
总层高:23F–32F
层高:3 米
绿化率:20%
梯户比:6T24/4T12
开发商:碧桂园
物业费:2.4 元 /㎡
物业公司:碧桂园物业
交房时间:2023 年 11 月(现房)
付款方式:按揭 / 全款 / 支持首付分期 / 全款分期

户型图。
六大购买理由
零门槛入驻新一线,双流主中心核心地段
近享千亿级成都芯谷产业发展红利
近彭镇 TOD,城市轨交出行便捷
坐拥海德广场,城市级商业地标 + 第四大商业街
标间至套三全面积段覆盖,自住投资皆宜
总价 38 万起,清水价入手高性价比类住宅精装现房
海德 ONE99【营销中心】028-62585717
楼盘实时价格|户型赏析|配套规划|置业顾问在线咨询
获取最新房源动态及专属优惠,敬请致电
免责声明:以上内容仅为要约邀请,图片含实景与效果示意,具体以现场公示及商品房买卖合同为准。部分资料源自网络,如有侵权请联系删除
声明:本文由入驻焦点开放平台的作者撰写,除焦点官方账号外,观点仅代表作者本人,不代表焦点立场。
