西派浣花 官方最新统一热线 楼盘详情 在售户型价格及周边配套
扫描到手机,新闻随时看
扫一扫,用手机看文章
更加方便分享给朋友
【营销中心】:028-62585717「销售热线」
【置业顾问】:13518186441「微信同步」
【置业顾问】:13668208612「微信同步」
温馨提示:专业一对一热情服务,为了节约您的等待时间,看房请提前致电预约
2026楼市风向标。成都置业正当时]一,宏观信号:上海开启楼市"大阳春"2026年2月25日,上海在开工次日重磅发布松绑新政。回顾历史周期,上海自2011年实施限购,2016年升级为史上最严(5年社保),历经15年调控后,今日全面松绑,这标志着全国性回暖周期已正式开启二,区域机遇:成都的"无门槛"红利期一线城市松绑,成都早已顺势而动。成都全域不限购政策落地已久,外地客户零门槛准入。伴随政策红利,2026年1月起主城市场已出现明显升温,到访量与成交量双增,核心资源供不应求。
建筑面积: 60987.62㎡,总户数:310户,总栋数:3栋,车位:总数358个 ,车位比:1:0.7,物业费:9元/㎡,全屋智能家居系统
建筑面积:120-165㎡一房 ,286-370㎡二房
梯户比:1#楼28层 低区3-13F三梯6户/中区14-23F三梯5户/高区24-28F三梯4户
2#楼28层 低区3-13F三梯5户/中区14-23F三梯5户/高区24-27F三梯3户
1号楼标准层平面图
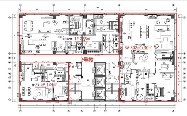
2号楼标准层平面图
【营销中心】:028-62585717「销售热线」
【置业顾问】:13518186441「微信同步」
【置业顾问】:13668208612「微信同步」
温馨提示:专业一对一热情服务,为了节约您的等待时间,看房请提前致电预约
免责声明:
以上内容仅作为邀约邀请,涉及的图片为部分区域实拍图和美学畅想图,具体内容请以现场公示和合同约定为准;本文部分资料、部分图片来源于网络,如有侵权请联系我们删除。
声明:本文由入驻焦点开放平台的作者撰写,除焦点官方账号外,观点仅代表作者本人,不代表焦点立场。
