蔚蓝卡地亚花园城 10月楼盘最新资料介绍 房价 价格 现场优惠 最低首付 售楼处销售中心电话
扫描到手机,新闻随时看
扫一扫,用手机看文章
更加方便分享给朋友
【营销中心】:028-62585717「销售热线」
【置业顾问】:13518186441「微信同步」
【置业顾问】:13668208612「微信同步」
温馨提示:专业一对一热情服务,为了节约您的等待时间,看房请提前致电预约
在现在及未来很长一段时间内,因为5+2区域产品供应结构性原因,高改和塔尖项目的增加,导致开盘、销售节奏将完全不同。高总价项目以小批次如数十套取证为主,分批次少量供应;而取证后,花费一月甚至数月来蓄客,“慢慢卖”成为了常态。“超级节点”之后,房企们又开始蓄力冲刺四季度。据不完全统计,本月5+2区域有近20个项目即将入市,全新项目有14个,并且,有多个项目都是300-500万改善的产品,为市场改善主力客群带来更加丰富的选择。10月15日,成都市发布《成都商业性个人住房贷款转住房公积金个人住房贷款管理办法(修订)》,提出取消“本市缴存”限制,符合条件的异地缴存人也可申请办理“商转公”贷款业务,再次为购房者提供了购房便利。

交通:天府新区双地铁项目,门口地铁1号线武汉路站点B5/B3出口直达。地铁19号线-红莲村南站,毗邻距离城市候机楼,可办理登机/行李托运,通往全球各地。
教育:花园城项目内有金苹果IB国际幼儿园、项目一街之隔天府七小、天府七中/七中附小。坐拥0-18岁全龄段精英教育。
医疗:华西天府医院,地铁3个站,美国匹兹堡私立医院
配套+环境:花园城占地面积1200多亩,含100亩湖区,两条自持商业街(国际餐厅、DT儿童欢乐世界、711、购物商场(规划)以及鲜生超市(规划);两座凯悦集团超五星级酒店,自持超甲级写字楼。
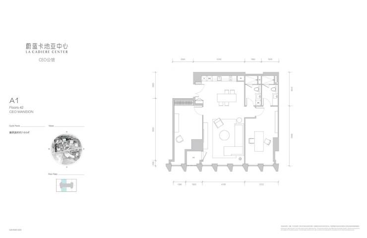
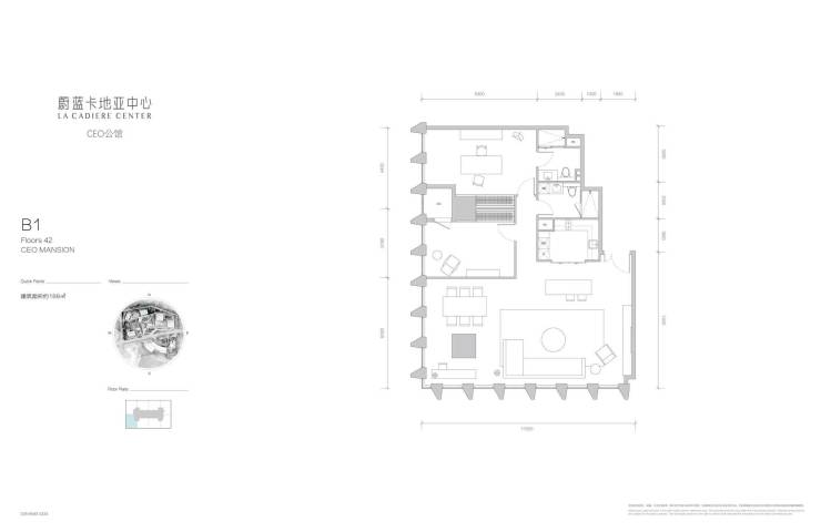
CEO公馆亮点:顶级服务式大堂:大堂挑高8.8米,大堂拥有图书馆(方所运营)、健身房(泰诺健)、影音厅、瑜伽室、咖啡厅、派对房。两栋公寓同时拥有室内恒温+自然采光泳池。24小时礼宾服务,尽力满足业主所有需求。提供代租代管,2座五星级酒店24小时送餐服务,以及上门家政、维保、高速网络等服务。公寓1楼为大堂、2楼开始为住区。国际化精装,斯麦格,美诺,杜拉维特等豪宅配套品牌。全球顶级地标建筑设计师团队,新加坡SCDA,PLD, ACOM等。
面积:140平米、180平米到1200平米均有,楼层:30-42楼,价格信息:一房一价,单价3.3-5万 总价400-700万
物业费:前3年8元/平米,后面10元/平米。
【营销中心】:028-62585717「销售热线」
【置业顾问】:13518186441「微信同步」
【置业顾问】:13668208612「微信同步」
温馨提示:专业一对一热情服务,为了节约您的等待时间,看房请提前致电预约
免责声明:
以上内容仅作为邀约邀请,涉及的图片为部分区域实拍图和美学畅想图,具体内容请以现场公示和合同约定为准;本文部分资料、部分图片来源于网络,如有侵权请联系我们删除。
声明:本文由入驻焦点开放平台的作者撰写,除焦点官方账号外,观点仅代表作者本人,不代表焦点立场。
