中铁城·颐湖题院楼盘分析-周边配套-户型图分析-总价多少-优惠多少
扫描到手机,新闻随时看
扫一扫,用手机看文章
更加方便分享给朋友
【营销中心】:028-62585717「销售热线」
【置业顾问】:13518186441「微信同步」
【置业顾问】:13668208612「微信同步」
当下低迷市场和溃败的信心所笼罩,没有心思对这一轮房地产调整后的行业走向,进行预判和猜想。常识告诉我们,没有永远下行的市场,即使美国,日本房价当年跌跌不休,如今也迎来持续多年的上涨。而在中国,相对理论中枢,当下中国房地产的确“超跌”了,未来理应有一个反弹的空间。

多维交通畅达全城
地铁4号线、17号线、S19号线(规划中)接驳全城;
近揽成温邛快速路、距成蒲高铁温江站直线距离约800米,聚合成约半小时直达主城核心资源。
📍超8万方商业配套,荟萃万千繁华生活
项目自身规划超8万方商业配套;
近享温江奥特莱斯、伊藤洋华堂、珠江国际等大型商超环伺,满足日常购物所需。
📍优质医疗资源,守护健康生活
金马医院,温江区人民医院、成都市第五人民医院、更有八一康复中心、华西分院等医疗资源,护航健康无忧。
📍全龄优质教育,铺就非凡未来
项目自身配建迪恩捷双语幼儿园、世纪晨风幼儿园;周边在建科技园高中(引进温江三中)、蓉台大道幼儿园。
与成都七中、温江二中、成都实验外国语学校附属小学、嘉祥外国语学校温江校区、西南财经大学、成都中医院大学等名校相邻。
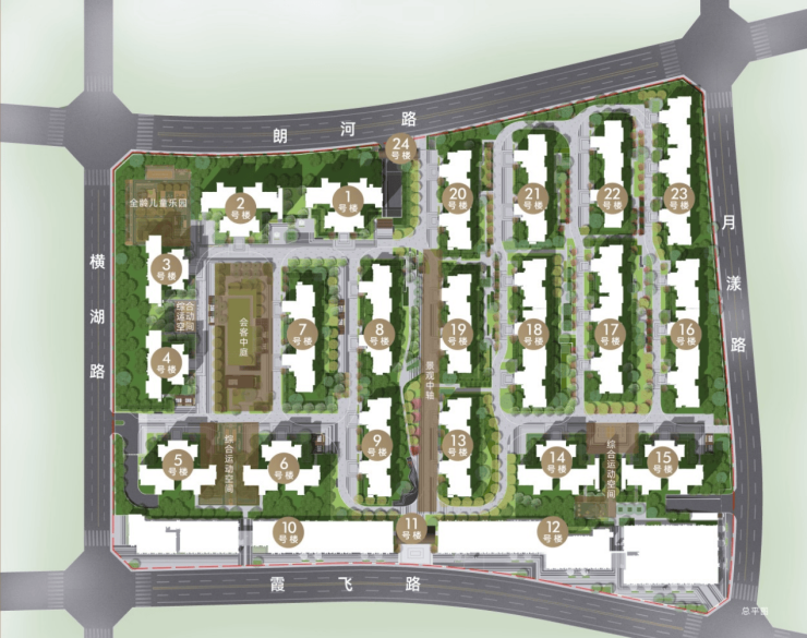
中铁城·颐湖题院
8栋高层半围合布局,开阔视野;
12栋洋房错落分布,前后观园景;
项目自带底商,休闲购物一站式体验。
📍三重归家场域,出入尊崇礼仪
【营销中心】:028-62585717「销售热线」
【置业顾问】:13518186441「微信同步」
【置业顾问】:13668208612「微信同步」
温馨提示:专业一对一热情服务,为了节约您的等待时间,看房请提前致电预约
免责声明:
以上内容仅作为邀约邀请,涉及的图片为部分区域实拍图和美学畅想图,具体内容请以现场公示和合同约定为准;本文部分资料、部分图片来源于网络,如有侵权请联系我们删除
声明:本文由入驻焦点开放平台的作者撰写,除焦点官方账号外,观点仅代表作者本人,不代表焦点立场。
