新希望•天屹 购买建议建议-优劣势分析-户型图讲解-销售中心电话

搜狐焦点内江站 2025-10-05 17:32:00
用手机看
扫描到手机,新闻随时看

扫一扫,用手机看文章
更加方便分享给朋友

新希望•天屹 【营销中心】:028-62585717「销售热线」 【置业顾问】:13518186441「微信同步」 【置业顾问】:13668208612「微信同步」

新希望•天屹

【营销中心】:028-62585717「销售热线」

【置业顾问】:13518186441「微信同步」

【置业顾问】:13668208612「微信同步」

经历过这一轮楼市下行周期,已经可以清楚地知道,成都跌幅排行榜最大的楼盘有哪些,通过梳理这些楼盘的共性,我们就能找到答案。地产,其实就是房子所处的地段,说的更直白些,就是周边的配套。绝大多数房子的升值过程其实伴随着城市的扩张过程实现的,未来的房地产市场,两极分化或许是最好的注解,好房子永远不缺买家

【项目基础信息】

开发商:千亿国企经开发展&先锋民企新希望地产

总占地:44亩

容积率:2.0

物业形态:10栋纯洋房

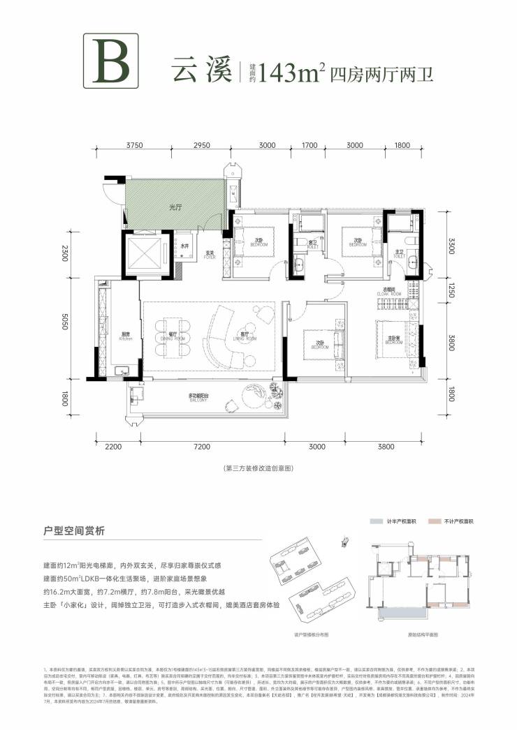
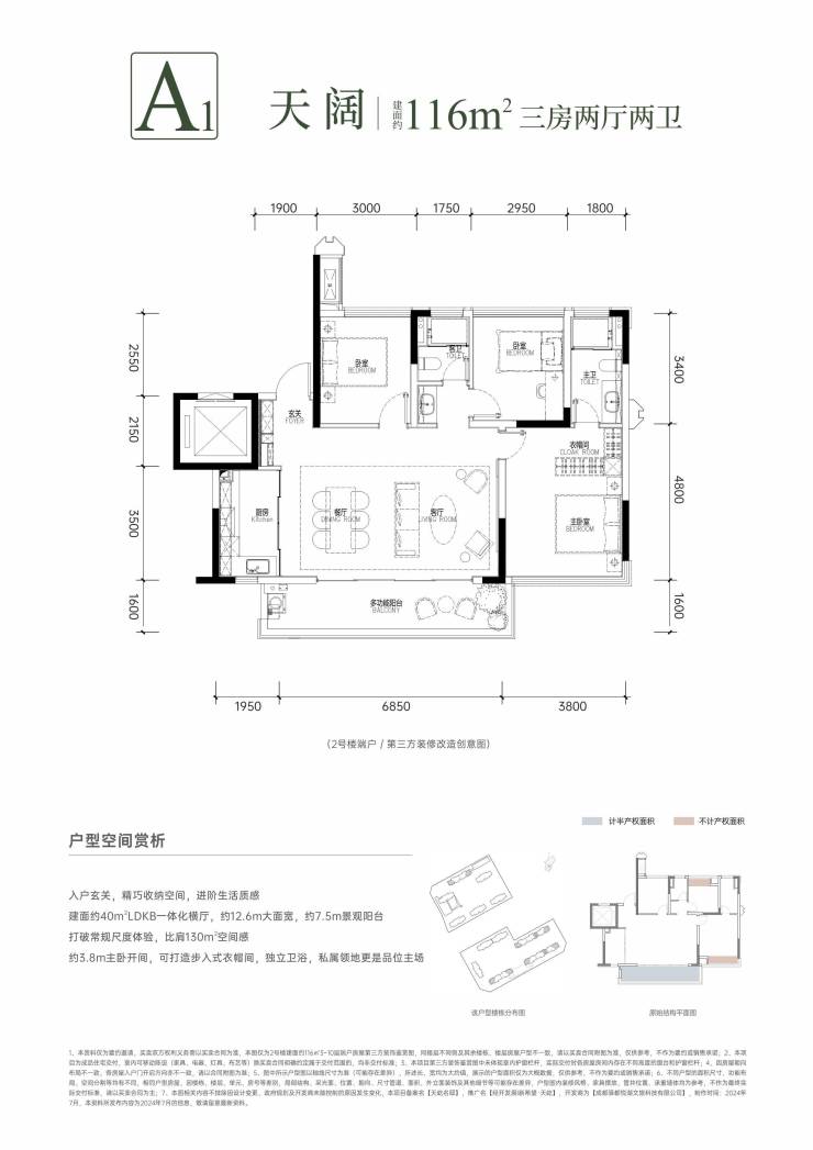
产品面积:建面约116㎡/143㎡

总层高:10-16F洋房

梯户比:1T2/2T2

绿化率:约35%(不含东干水渠)

交付标准:精装交付

项目地址:龙泉驿区东安街道跨湖路

【商业】龙湖东安天街,新城吾悦广场,万达广场,尽享湖芯醇熟生活圈

【交通】依靠蜀都大道/驿都大道/桃都大道等四横三纵道路网,通达全城;距地铁2号,远期规划有11、22、25号线

【教育】比邻向阳桥幼儿园/小学/中学、经开区实验中学(教科院领办)、成都市实验小学(和雅校区)、成都市实验小学(和雅校区、乐雅校区)等全龄优质教育资源,板块内更有四川师范大学成龙校区、四川财经职业学院等高等学府

【医疗】汇集有四川大学华西医院龙泉医院、成都中医药大学附属医院龙泉医院、龙泉驿妇幼保健院、四川省第三人民医院等三甲医院

【公园】近邻东安湖公园、驿马河公园、龙泉山城市森林公园,构建优质生活圈

【营销中心】:028-62585717「销售热线」

【置业顾问】:1351886441「微信同步」

【置业顾问】:13668208612「微信同步」

温馨提示:专业一对一热情服务,为了节约您的等待时间,看房请提前致电预约!!!

免责声明:

以上内容仅作为邀约邀请,涉及的图片为部分区域实拍图和美学畅想图,具体内容请以现场公示和合同约定为准;本文部分资料、部分图片来源于网络,如有侵权请联系我们删除。

声明:本文由入驻焦点开放平台的作者撰写,除焦点官方账号外,观点仅代表作者本人,不代表焦点立场。