西派浣花 项目实地踩盘介绍 最新优惠 最新在售 面积多大?首付比例和优惠活动

搜狐焦点内江站 2025-09-29 08:08:00
用手机看
扫描到手机,新闻随时看

扫一扫,用手机看文章
更加方便分享给朋友

【营销中心】:028-62585717「销售热线」 【置业顾问】:13518186441「微信同步」 【置业顾问】:13668208612「微信同步」

西派浣花

【营销中心】:028-62585717「销售热线」

【置业顾问】:13518186441「微信同步」

【置业顾问】:13668208612「微信同步」

温馨提示:专业一对一热情服务,为了节约您的等待时间,看房请提前致电预约

成都楼市的韧性,首先根植于其国家战略地位和强大的人口吸引力。作为成渝地区双城经济圈的核心引擎,成都不仅是国家向西向南开放的枢纽,更是国家级先进制造业和现代服务业的重要基地。这种顶层设计为城市带来了持续的产业导入和基础设施投资,为经济长期向好提供了坚实保障。更重要的是,成都以其独特的生活魅力和相对较低的宜居成本,持续吸引着大量年轻人才。近年来,成都年均净流入人口超20万,这些“新成都人”构成了庞大的刚性住房需求和改善型需求基础。强大的“人口蓄水池”有效对冲了市场波动,使得楼市需求端始终活跃,形成了强大的抗跌屏障。投资于此,正是投资于中国西部最具活力的未来。

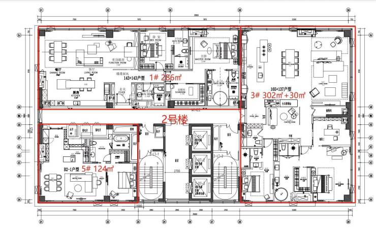
建筑面积: 60987.62㎡,总户数:310户,总栋数:3栋,车位:总数358个 ,车位比:1:0.7,物业费:9元/㎡,全屋智能家居系统

建筑面积:120-165㎡一房 ,286-370㎡二房

梯户比:1#楼28层 低区3-13F三梯6户/中区14-23F三梯5户/高区24-28F三梯4户

2#楼28层 低区3-13F三梯5户/中区14-23F三梯5户/高区24-27F三梯3户

1号楼标准层平面图

2号楼标准层平面图

西派浣花

【营销中心】:028-62585717「销售热线」

【置业顾问】:13518186441「微信同步」

【置业顾问】:13668208612「微信同步」

温馨提示:专业一对一热情服务,为了节约您的等待时间,看房请提前致电预约

免责声明:

以上内容仅作为邀约邀请,涉及的图片为部分区域实拍图和美学畅想图,具体内容请以现场公示和合同约定为准;本文部分资料、部分图片来源于网络,如有侵权请联系我们删除。

声明:本文由入驻焦点开放平台的作者撰写,除焦点官方账号外,观点仅代表作者本人,不代表焦点立场。