点将台79号户型图分析-得房率高不高-销售中心电话-楼盘地址
扫描到手机,新闻随时看
扫一扫,用手机看文章
更加方便分享给朋友
【营销中心】:028-62585717「销售热线」
【置业顾问】:13518186441「微信同步」
【置业顾问】:13668208612「微信同步」
温馨提示:专业一对一热情服务,为了节约您的等待时间,看房请提前致电预约
进入了存量市场阶段,那么城市更新工作无疑在房地产的发展之中是重中之重。未来房地产的发展不再是满足快增长的住房需求,而是要提升大家的居住品质,要更加关注存量房产的保值升值。房地产市场进入存量发展阶段之后,整体的房地产市场供求基本上也是平衡的。进入存量市场阶段后,城市更新也会成为房地产发展一个核心内容。
产品力爆棚:
【地暖中央空调新风、全屋智能、烘干一体洗衣机、嵌入式双开门冰箱、洗碗机、3M净水器,国际一线厨具橱柜、24小时1v1星级管家服务、24小时安防服务】在望江名门、D10之后全新升级区域地标级顶豪作品。
自带2000平会所实体均已呈现:恒温泳池、干蒸区、星级酒店同款健身房、咖啡吧、红酒吧、书吧、茶室、娱乐室等】
🔺面积区间:128-140㎡(2房),260-270-280㎡(3.5房),540-1100㎡ 高端定制型户型
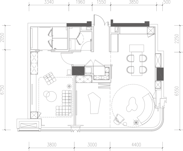
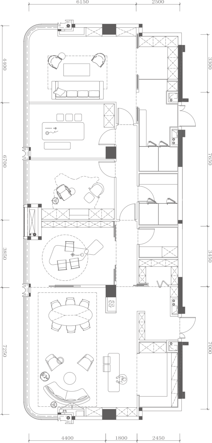
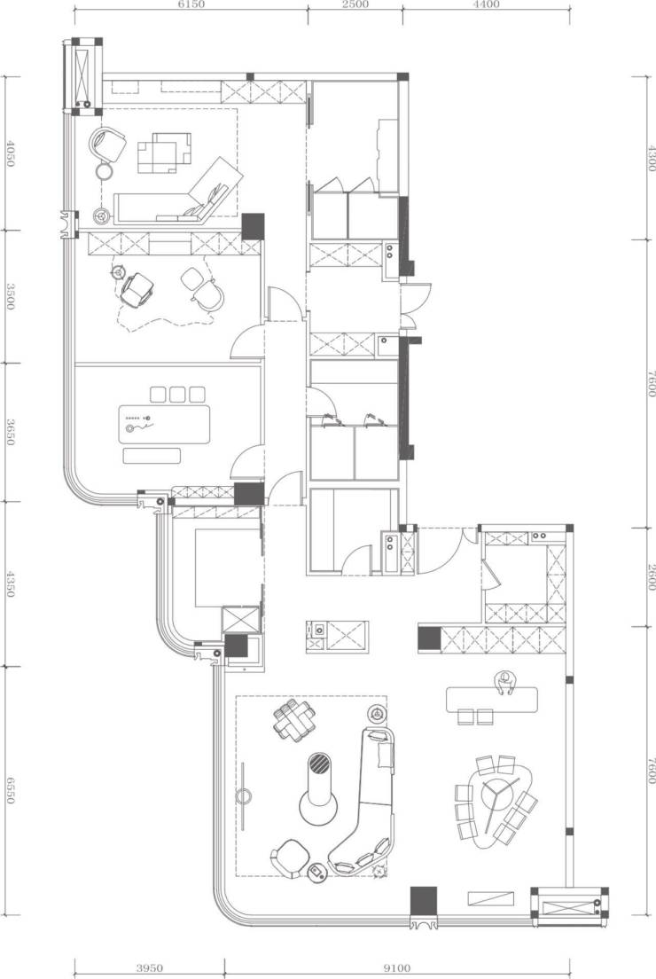
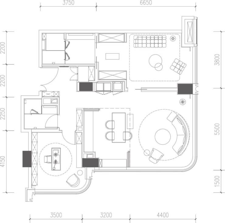
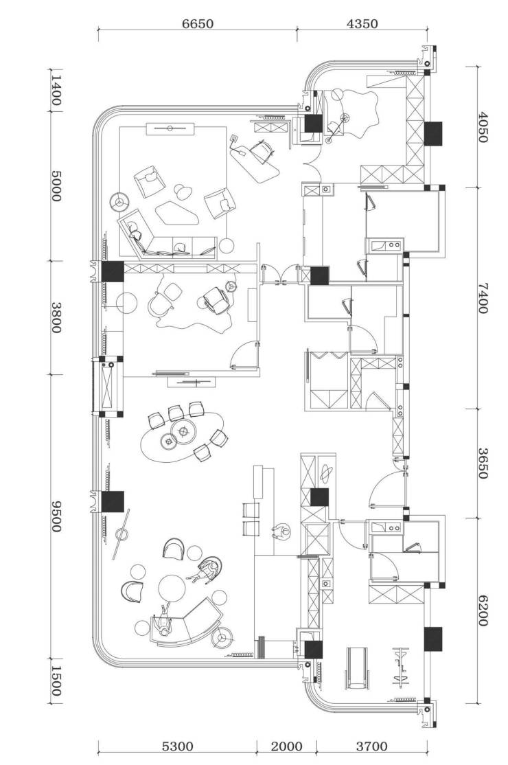
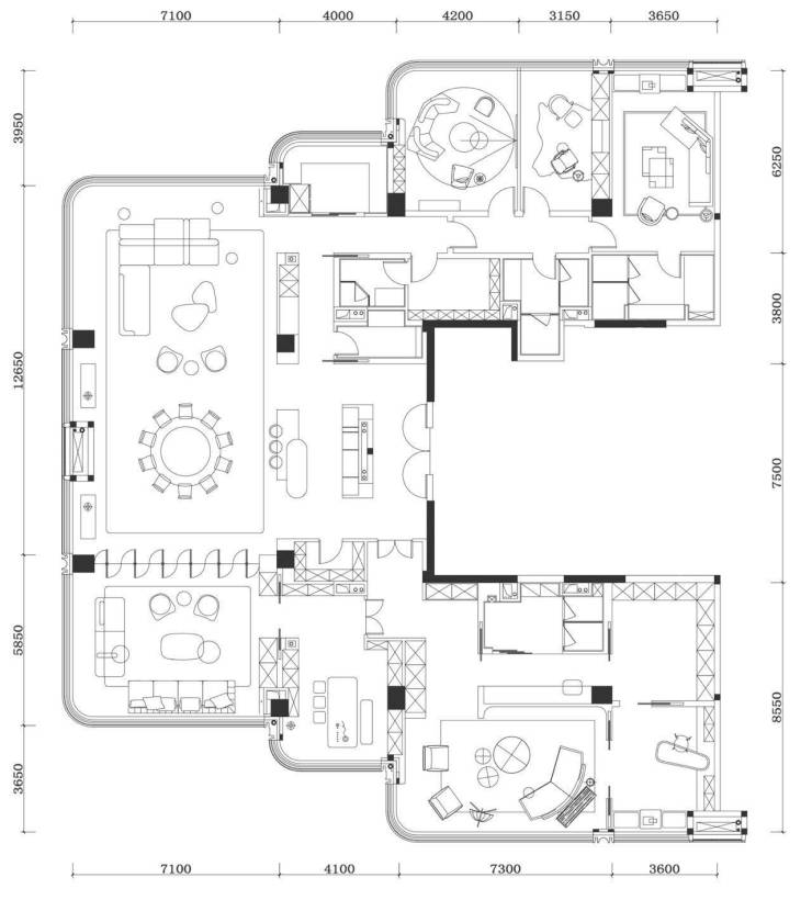
户型图:
128平(3~15楼)5梯8户、正南正北朝向

140平(3~15楼)5梯8户
260平(16楼~22楼)5梯4户

270平(16楼~22楼)5梯4户
280平(16楼~22楼)5梯4户
540平(23~24楼)5梯2户
【营销中心】:028-62585717「销售热线」
【置业顾问】:13518186441「微信同步」
【置业顾问】:13668208612「微信同步」
温馨提示:专业一对一热情服务,为了节约您的等待时间,看房请提前致电预约
免责声明:
以上内容仅作为邀约邀请,涉及的图片为部分区域实拍图和美学畅想图,具体内容请以现场公示和合同约定为准;本文部分资料、部分图片来源于网络,如有侵权请联系我们删除
声明:本文由入驻焦点开放平台的作者撰写,除焦点官方账号外,观点仅代表作者本人,不代表焦点立场。
