西派浣花 楼盘详情 楼盘动态 售楼处电话 销售中心地址
扫描到手机,新闻随时看
扫一扫,用手机看文章
更加方便分享给朋友
【营销中心】:028-62585717「销售热线」
【置业顾问】:13518186441「微信同步」
【置业顾问】:13668208612「微信同步」
温馨提示:专业一对一热情服务,为了节约您的等待时间,看房请提前致电预约
成都楼市,正站在一个全新的历史路口。2026年,是“十五五”的开局之年,城市发展将步入新阶段,与此同时,楼市的逻辑也发生根本性转变。当高增长时代成为背影,产品力、影响力、结构性的机会,成为决定未来的关键变量。2025年,成都以全国唯一新房成交量破千万方的韧性,证明了自己的主场实力。然而,成交量背后是“高质缩量”的周期性调整。过去一年,我们看到——各圈层板块间市场分化加剧,价格呈 “核心领涨、近郊趋弱、远郊补跌” 格局。5+2 区韧性凸显,而远郊持续承压;土地端同样热度分化,主要靠核心地块拉动。开发商投资更加审慎,拿地策略分化、补仓意愿偏弱。产品需求则向 “两极 + 改善” 倾斜,5+2区“刚改”和“深改”两极分化、近郊主打改善,远郊刚需为主。对于客户来说,安全成为了第一诉求,风险规避是购房的决策核心。步入2026年,市场将彻底进入 “结构性增长” 时代。当下,比黄金更珍贵的,是清晰的方向。
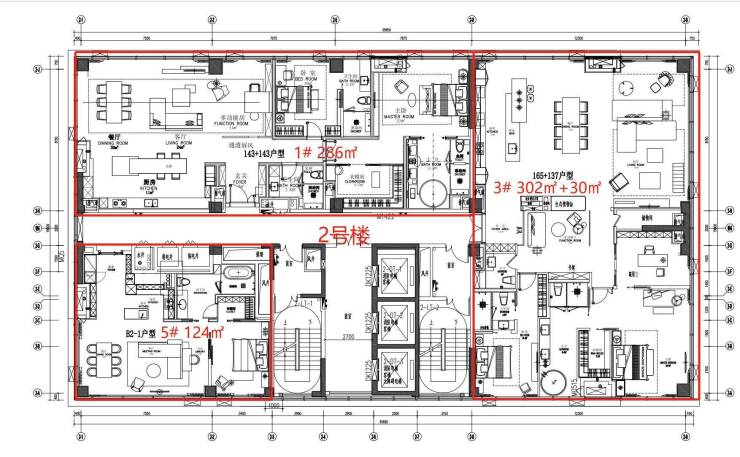
建筑面积: 60987.62㎡,总户数:310户,总栋数:3栋,车位:总数358个 ,车位比:1:0.7,物业费:9元/㎡,全屋智能家居系统
建筑面积:120-165㎡一房 ,286-370㎡二房
梯户比:1#楼28层 低区3-13F三梯6户/中区14-23F三梯5户/高区24-28F三梯4户
2#楼28层 低区3-13F三梯5户/中区14-23F三梯5户/高区24-27F三梯3户
1号楼标准层平面图
2号楼标准层平面图
【营销中心】:028-62585717「销售热线」
【置业顾问】:13518186441「微信同步」
【置业顾问】:13668208612「微信同步」
温馨提示:专业一对一热情服务,为了节约您的等待时间,看房请提前致电预约
免责声明:
以上内容仅作为邀约邀请,涉及的图片为部分区域实拍图和美学畅想图,具体内容请以现场公示和合同约定为准;本文部分资料、部分图片来源于网络,如有侵权请联系我们删除。
声明:本文由入驻焦点开放平台的作者撰写,除焦点官方账号外,观点仅代表作者本人,不代表焦点立场。
