西派浣花 最新楼盘详情 房价 楼盘最新相关信息 在售房源信息
扫描到手机,新闻随时看
扫一扫,用手机看文章
更加方便分享给朋友
【营销中心】:028-62585717「销售热线」
【置业顾问】:13518186441「微信同步」
【置业顾问】:13668208612「微信同步」
温馨提示:专业一对一热情服务,为了节约您的等待时间,看房请提前致电预约
保持政策力度。政策预期上,政策力度要符合市场预期,政策要一次性给足,不能采取添油战术,导致市场与政策陷入博弈状态。政策协调上,强化政策一致性评估,房地产受经济发展阶段、宏观经济形势、居民收入增速等整体预期影响明显,做好供给管理。供给端要严控增量、盘活存量,鼓励收购存量商品房主要用于保障性住房等合理用途,同时有序推动“好房子”建设。彻底改变房地产开发方式,支持房企加快从以新房销售为主向更多持有物业、提供高品质多样化居住服务转型。以构建新模式为牵引推动房地产高质量发展,完善商品房开发、融资、销售等基础制度,合理把握各项基础制度出台时机,深化住房公积金制度改革,推动新旧模式平稳转换。鼓励不动产投资信托基金继续扩大范围,对使用年限超期的土地试点探索建立土地出让金补缴机制,稳定社会资本的投资预期和投资信心。
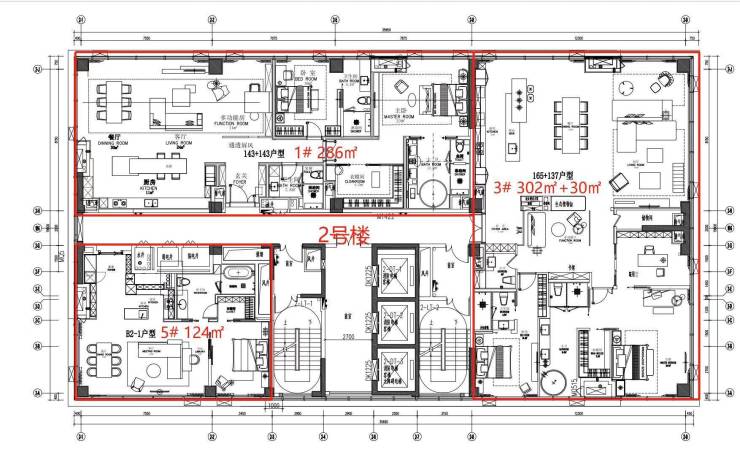
建筑面积: 60987.62㎡,总户数:310户,总栋数:3栋,车位:总数358个 ,车位比:1:0.7,物业费:9元/㎡,全屋智能家居系统
建筑面积:120-165㎡一房 ,286-370㎡二房
梯户比:1#楼28层 低区3-13F三梯6户/中区14-23F三梯5户/高区24-28F三梯4户
2#楼28层 低区3-13F三梯5户/中区14-23F三梯5户/高区24-27F三梯3户
1号楼标准层平面图
2号楼标准层平面图
【营销中心】:028-62585717「销售热线」
【置业顾问】:13518186441「微信同步」
【置业顾问】:13668208612「微信同步」
温馨提示:专业一对一热情服务,为了节约您的等待时间,看房请提前致电预约
免责声明:
以上内容仅作为邀约邀请,涉及的图片为部分区域实拍图和美学畅想图,具体内容请以现场公示和合同约定为准;本文部分资料、部分图片来源于网络,如有侵权请联系我们删除。
声明:本文由入驻焦点开放平台的作者撰写,除焦点官方账号外,观点仅代表作者本人,不代表焦点立场。
