明信四季东安成都楼市必看楼盘-看房热线-户型图-项目介绍-配套

搜狐焦点内江站 2025-10-20 09:10:00
用手机看
扫描到手机,新闻随时看

扫一扫,用手机看文章
更加方便分享给朋友

明信四季东安 【营销中心】:028-62585717「销售热线」 【置业顾问】:13518186441「微信同步」 【置业顾问】:13668208612「微信同步」

明信四季东安

【营销中心】:028-62585717「销售热线」

【置业顾问】:13518186441「微信同步」

【置业顾问】:13668208612「微信同步」

这几年来,房地产已经倒向买方市场,客户的选择越来越多,个性化的、地缘化的需求也越来越丰富多样。这一趋势其实对房企的市场嗅觉与研发专业性,提出了很高的要求。随着好房子理念的普及、新设计规范的实施,以及改善时代的到来,这两年市场上出现了不少产品创新的标杆,引发了许多房企的复制潮。另外一些政策,在稳定市场预期方面,政策有效期从一年延长至五年,为市民朋友吃下“定心丸”,未缴存住房公积金的人员也可以从现在开始缴存,合理安排房贷转换计划,充分享受政策红利。

——基础信息——

【项目位置】成都市·东安新城·驿马河公园里(红岭路)

【开发商】成都庆泽房地产开发有限公司

【总占地面积】22786.65㎡(34亩)

【地块建面】50800.51㎡

【容积率】1.5

【总户数】276户

【产品类型】 洋房

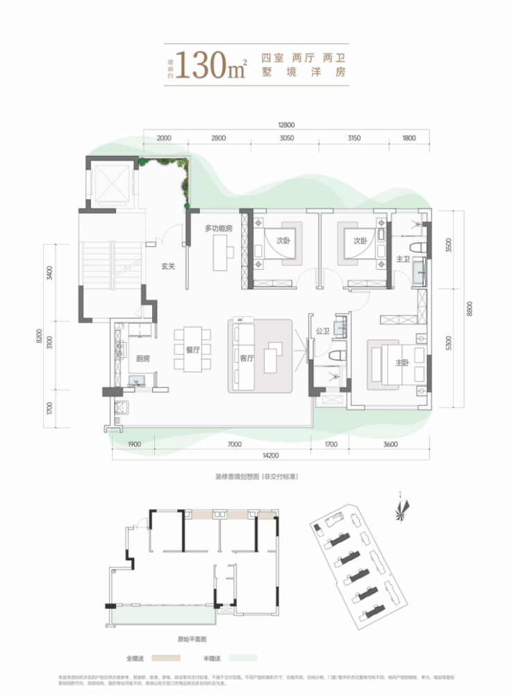
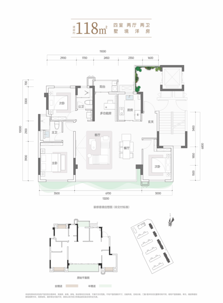
【产品面积】118㎡(1#)、130㎡(9.10#)、143㎡(9.10#)

【装修情况】首批次清水

【层高】7-11层

【梯户比】1T2

——户型鉴赏——

——生态价值——

坐拥一湖一山一园

一湖:成都·东安湖【5887亩】

世界级国家体育公园,围绕“一湖三岸”建设

一山:成都·龙泉山【海拔1051米】

国家城市森林公园,城市自然分界线

一园:成都·驿马河公园【1910亩】

城市中央公园,城市生态连廊,“天然氧吧”

【路线交通】多维路网交织

5纵4横2轨多维立体交通

2轨:地铁2号线龙平路站、地铁13号线(规划中);

5纵:蜀都大道、桃都大道中段、董朗路、桃源街、双龙路等;

4横:湖岸南路、桃都大道、红岭路、龙都路(5环路)。

【商圈配套】多元商圈环伺

4大商圈集群:万达广场、永辉超市;东方华大广场;龙湖东安天街、吾悦广场等。

【教育配套】多龄学府林立

3大名校体系:东安湖学校(成都七中领办)、成都实验小学(和雅校区)、成都实验小学(乐雅校区)。5大优质学府:龙泉第七中学、驿马河第一幼儿园、常春藤龙都国际幼儿园、龙泉驿区第二小学、龙泉二中等,享一站式全龄优教。

(本资料对项目周边规划学校等教育资源旨在提供相关信息,并不意味着本公司对就学安排作出承诺,教育资源的名称、办学性质、办学规模、学位设置、开学(班)时间、招生条件、收费标准及招生区域等存在调整的可能,就学招生政策应以教育主管部门及学校颁布的政策规定为准。)

【医疗配套】国际化医疗护航

四川大学华西医院龙泉医院、龙泉妇幼保健院,以优质医疗配置,呵护您和家人的健康生活

【营销中心】:028-62585717「销售热线」

【置业顾问】:13518186441「微信同步」

【置业顾问】:13668208612「微信同步」

温馨提示:专业一对一热情服务,为了节约您的等待时间,看房请提前致电预约!!!

免责声明:

以上内容仅作为邀约邀请,涉及的图片为部分区域实拍图和美学畅想图,具体内容请以现场公示和合同约定为准;本文部分资料、部分图片来源于网络,如有侵权请联系我们删除

声明:本文由入驻焦点开放平台的作者撰写,除焦点官方账号外,观点仅代表作者本人,不代表焦点立场。