黄龙溪谷塔希提 项目实地踩盘介绍 最新优惠 最新在售 面积多大?首付比例和优惠活动

搜狐焦点内江站 2025-09-29 08:08:00
用手机看
扫描到手机,新闻随时看

扫一扫,用手机看文章
更加方便分享给朋友

【营销中心】:028-62585717「销售热线」 【置业顾问】:13518186441「微信同步」 【置业顾问】:13668208612「微信同步」

黄龙溪谷塔希提

【营销中心】:028-62585717「销售热线」

【置业顾问】:13518186441「微信同步」

【置业顾问】:13668208612「微信同步」

成都楼市的韧性,首先根植于其国家战略地位和强大的人口吸引力。作为成渝地区双城经济圈的核心引擎,成都不仅是国家向西向南开放的枢纽,更是国家级先进制造业和现代服务业的重要基地。这种顶层设计为城市带来了持续的产业导入和基础设施投资,为经济长期向好提供了坚实保障。更重要的是,成都以其独特的生活魅力和相对较低的宜居成本,持续吸引着大量年轻人才。近年来,成都年均净流入人口超20万,这些“新成都人”构成了庞大的刚性住房需求和改善型需求基础。强大的“人口蓄水池”有效对冲了市场波动,使得楼市需求端始终活跃,形成了强大的抗跌屏障。投资于此,正是投资于中国西部最具活力的未来。

⭐区域介绍⭐

项目位于天府新区、黄龙溪古镇旁,是早期在黄龙溪板块开发的项目之一,携手知名建筑、景观、生态治理团队,打造中国西南生态大盘典范。

提及成都的未来一定在国际城南,而提及城南几块为少数人精心准备的土地,本项目则在此名单之列,它独具创意地完美融合自然与生活,演绎着何为成都高端墅居,刷新着对终极置业的想象。

🌲东方的塔希提 世界的桃花源🌲

塔希提岛:世界上最浪漫的岛屿,被称为“最接近天堂的地方”。

12载谨献一座塔希提,为天府创造一座岛,在溪谷,像塔希提一样生活。

四期地块介绍

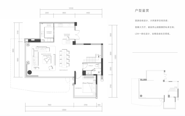
中国天府·隐奢谧境·岛屿墅作

首开楼栋: 二叠 31#、32#、33# 三叠 34#、35# 平墅 59#、60#、61#

价值点:

三面湖山景观环绕:坡地高处俯瞰视野

浅丘坡地地势,平原上非常少有,建筑层层退台,楼层退台,拥有绝佳山湖景观视野

低容低密:232亩容积率1.17(市场同类举例:2.0容积率且高低配、楼间距近没有景观,私密性差)限墅令下最具别墅感的低密度墅区!

外立面:选用比普通材质贵3-4倍的HPC➕木纹铝板➕干挂石材➕系统玻璃门窗配合简洁明快色彩🟰野奢气息自然的松弛感,市场少有高端质感!

三条景观峡谷:引入溪谷湖山景色,更多自然感受

酒店式入户大堂:超具仪式感归家动线,双首层入户大堂,五星级物业服务,市面唯一!

首推产品,平墅、三叠拼、二叠拼

产品亮点:

1、270度景观面

2、叠拼使用面积430-870平

3、近370平首层空间

4、面宽12米,巨幕LDK

5、超40平双主卧套房

产品户型

叠墅【二叠墅】总高:4F(地上2f、地下2f)

(户型图皆为先一层,后二层)

下叠·364㎡·四室两厅四卫

非花园赠送:190平

花园赠送:190平

层高:1-2F: 3.6米;多功能厅:3.3米

物业费:6.87元/平/月

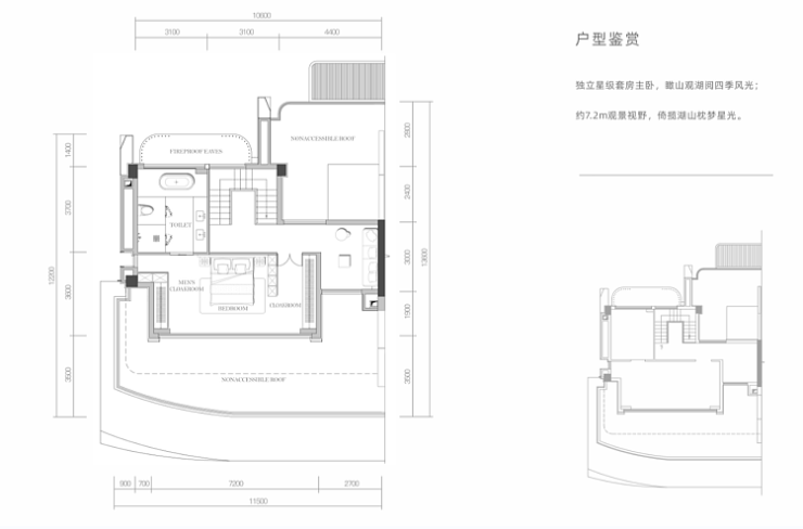
亮点:270度双面景观、首层使用面积约370平、客厅挑高空间感足、预留私家电梯井、一线景观视野

上叠·365㎡·五室两厅五卫

非花园赠送:210平

露台赠送:190平

层高:3F: 3.6米;4F: 3.3米;多功能厅:3.3米

亮点:四层墅居,带花园和露台、客厅挑高空间感足、270度双面景观、预留私家电梯井、单个露台面积120平、一线景观视野

叠墅【三叠墅】总高:7F

下叠、中叠

非花园赠送面积:100-170平

花园面积:50-150平

层高:1F-3F:3.5米;4F3.3米

梯户比:2梯2户(1梯1户)

物业费:6.87元/平/月

亮点:层层退台视野俱佳、客厅270度景观、户户有院子、面宽12.5米、首层使用面积180-370平、赠送地下多功能厅、预留私家电梯井

下叠·246㎡·四室两厅四卫

中叠·279㎡·四室两厅五卫

上叠·267㎡·四室两厅四卫

非花园赠送:130平

层高:3.3米

梯户比:2梯2户(1梯1户)

亮点:三层墅居、层层退台视野俱佳、客厅挑高空间感足、露台赠送大、预留私家电梯井

【洋房】总高:9F

面积:175平/190平

阳台面积:3.25米宽尺阳台:15平/21平

层高:1F:3.6米;2-9F:3.15米

花园:无

物业费:4.12元/平/月

亮点:一梯两户、四房三卫、双主卧套房、270度景观面

端户·190㎡·四室两厅三卫

中户·175㎡·三室两厅三卫

🌲藏品级观湖独栋🌲

【湖畔观湖墅邸 全国争藏】

建面约199-292㎡藏品级观湖墅邸,是城市最后少数的、难得的别墅产品,具有极高居住与收藏价值;在这可拥一方自然世界,享自在原野生活,臻稀观湖独栋。

【营销中心】:028-62585717「销售热线」

【置业顾问】:13518186441「微信同步」

【置业顾问】:13668208612「微信同步」

温馨提示:专业一对一热情服务,为了节约您的等待时间,看房请提前致电预约

免责声明:

以上内容仅作为邀约邀请,涉及的图片为部分区域实拍图和美学畅想图,具体内容请以现场公示和合同约定为准;本文部分资料、部分图片来源于网络,如有侵权请联系我们删除

声明:本文由入驻焦点开放平台的作者撰写,除焦点官方账号外,观点仅代表作者本人,不代表焦点立场。