保利湖光里院 项目线上售楼部咨询-户型分析-装修标准-样板间视频
扫描到手机,新闻随时看
扫一扫,用手机看文章
更加方便分享给朋友
【营销中心】:028-62585717「销售热线」
【置业顾问】:13518186441「微信同步」
【置业顾问】:13668208612「微信同步」
温馨提示:专业一对一热情服务,为了节约您的等待时间,看房请提前致电预约
【项目基础信息】
开发商:成都悦湖利鑫置业有限公司
占地面积:64522
建筑面积:77425
物业类别:纯叠拼(2+1叠、两叠、三叠)
产权年限:70年
总户数:433户
面积:170-225㎡
容积率:1.2
绿化率:30%
公摊:7%
车位比:1:1.4(616个)
装修状况:清水
物业费:4.6元/平
物业公司:保利物业服务有限公司
户型朝向:南北通透、双面采光
交房时间:2022年12月30日
东3.5环龙潭寺旁、清水现房、叠拼别墅
面积:两叠:上叠203㎡、下叠225㎡
三叠:上中叠170㎡、下叠184㎡
2+1叠:下叠213㎡、平墅224㎡
单价:13000元-18000元
总价:2+1叠:下叠340万-355万
平墅(上)380万起
两叠:上叠265万起、下叠390万起
三叠:上叠250万起、中叠198万起
下叠325万起
【户型图】
湖影平院(2+1平院)
平墅下叠四室两厅三卫213㎡:独门独院自带花园
平墅大平层四室两厅三卫224㎡:带地下室、超大屋顶花园
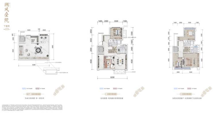
湖风叠院(两叠)
两叠上叠四室两厅三卫203㎡:超大露台赠送
两叠下叠四室两厅三卫225㎡:前后花园
湖鸣叠院(三叠)
三叠上叠四室两厅三卫170㎡:超大屋顶花园
三叠中叠四室两厅三卫170㎡:超高性价比
三叠下叠四室两厅三卫184㎡:超大地下赠送
【营销中心】:028-62585717「销售热线」
【置业顾问】:13518186441「微信同步」
【置业顾问】:13668208612「微信同步」
温馨提示:专业一对一热情服务,为了节约您的等待时间,看房请提前致电预约
免责声明:
以上内容仅作为邀约邀请,涉及的图片为部分区域实拍图和美学畅想图,具体内容请以现场公示和合同约定为准;本文部分资料、部分图片来源于网络,如有侵权请联系我们删除。
声明:本文由入驻焦点开放平台的作者撰写,除焦点官方账号外,观点仅代表作者本人,不代表焦点立场。
