西派浣花-项目怎么样?销售接待中心 开发商直销 内部优惠价格
扫描到手机,新闻随时看
扫一扫,用手机看文章
更加方便分享给朋友
【营销中心】:028-62585717「销售热线」
【置业顾问】:13518186441「微信同步」
【置业顾问】:13668208612「微信同步」
温馨提示:专业一对一热情服务,为了节约您的等待时间,看房请提前致电预约
日前,国家统计局发布了全国70个大中城市5月的房价。新房方面,5月的成都新房房价保持着相对稳定,环比微涨,同比微跌。而成交面积方面,中指研究院发布了这样一组数据:2025年5月,成都商品住宅供应面积为76万㎡,成交面积为105万㎡。2025年1-5月,成都商品住宅供应面积为429.6万㎡,成交面积为572.9万㎡,同比上升14.7%。两组数据指向一个结果:过去的5个月,成都新房市场价稳量增。但在这样的市场上,什么样的房子更好卖?
建筑面积: 60987.62㎡,总户数:310户,总栋数:3栋,车位:总数358个 ,车位比:1:0.7,物业费:9元/㎡,全屋智能家居系统
建筑面积:120-165㎡一房 ,286-370㎡二房
梯户比:1#楼28层 低区3-13F三梯6户/中区14-23F三梯5户/高区24-28F三梯4户
2#楼28层 低区3-13F三梯5户/中区14-23F三梯5户/高区24-27F三梯3户
1号楼标准层平面图
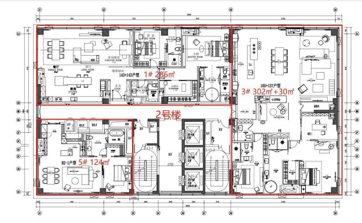
2号楼标准层平面图
【营销中心】:028-62585717「销售热线」
【置业顾问】:13518186441「微信同步」
【置业顾问】:13668208612「微信同步」
温馨提示:专业一对一热情服务,为了节约您的等待时间,看房请提前致电预约
免责声明:
以上内容仅作为邀约邀请,涉及的图片为部分区域实拍图和美学畅想图,具体内容请以现场公示和合同约定为准;本文部分资料、部分图片来源于网络,如有侵权请联系我们删除。
声明:本文由入驻焦点开放平台的作者撰写,除焦点官方账号外,观点仅代表作者本人,不代表焦点立场。
