西派浣花 销售电话-位置-户型-配套对比-3月最新总价多少

搜狐焦点内江站 2026-03-20 18:36:00
用手机看
扫描到手机,新闻随时看

扫一扫,用手机看文章
更加方便分享给朋友

西派浣花 【营销中心】:028-62585717「销售热线」

西派浣花

【营销中心】:028-62585717「销售热线」

房地产的数据已出炉。整体而言,市场依然比较低迷,无论销售量还是销售均价,都在进一步下探。小编认为,这恰恰揭示了当前房地产市场破局的关键路径。 2026年在“稳预期”的政策基调下, 这种 “ 以质换量、以高端稳均价 ” 的止跌路径, 可能会被更多高能级城市 “ 抄作业 ” , 成为扭转市场走势的关键举措。

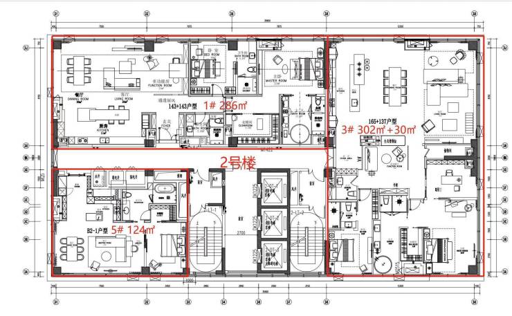
建筑面积: 60987.62㎡,总户数:310户,总栋数:3栋,车位:总数358个 ,车位比:1:0.7,物业费:9元/㎡,全屋智能家居系统

建筑面积:120-165㎡一房 ,286-370㎡二房

梯户比:1#楼28层 低区3-13F三梯6户/中区14-23F三梯5户/高区24-28F三梯4户

2#楼28层 低区3-13F三梯5户/中区14-23F三梯5户/高区24-27F三梯3户

1号楼标准层平面图

2号楼标准层平面图

西派浣花

【营销中心】:028-62585717「销售热线」

温馨提示:专业一对一热情服务,为了节约您的等待时间,看房请提前致电预约

免责声明:

以上内容仅作为邀约邀请,涉及的图片为部分区域实拍图和美学畅想图,具体内容请以现场公示和合同约定为准;本文部分资料、部分图片来源于网络,如有侵权请联系我们删除。

声明:本文由入驻焦点开放平台的作者撰写,除焦点官方账号外,观点仅代表作者本人,不代表焦点立场。