海德one99限时特价房-得房率多少-交房时间-海德one99地段如何
扫描到手机,新闻随时看
扫一扫,用手机看文章
更加方便分享给朋友
【营销中心】:028-62585717「销售热线」
【置业顾问】:13518186441「微信同步」
【置业顾问】:13668208612「微信同步」
温馨提示:专业一对一热情服务,为了节约您的等待时间,看房请提前致电预约
楼市运行有自己的规律,经历激烈下行调整之后,市场也会逐渐趋于理性、恢复平稳。回顾过去几年的房地产市场运行情况,市场也已经下行调整接近5年了,一些城市的房价从最高点算起下跌超过了40%,甚至超过50%的城市也不在少数。在如此短短几年时间里,这样的下跌幅度算是很大的了。房价下跌的过程中,实际上也是在释放房地产是市场的风险。在房地产市场在下跌的过程中,会存在一定程度上非理性的下跌。而随着风险的释放,市场也会逐渐恢复理性,房地产市场的走势也会逐渐趋稳平稳。
占地:56.7亩
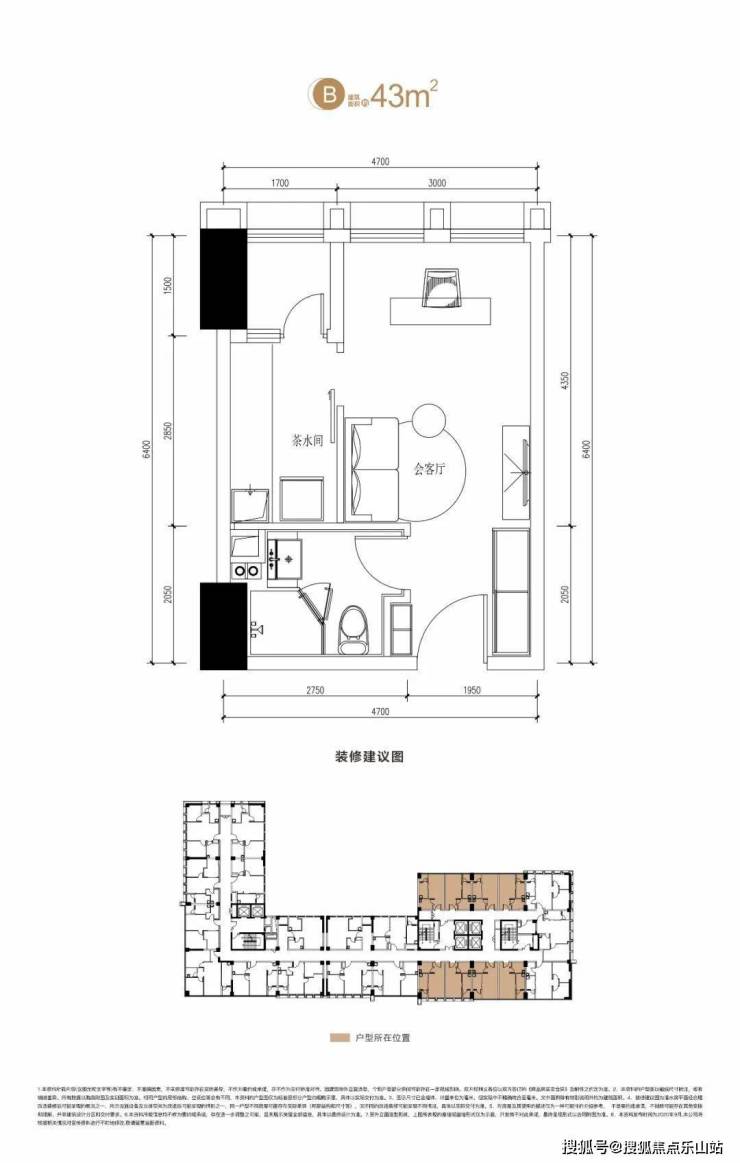
户型:标间(43—52㎡)/套一(62—67㎡)/套二(67—87㎡)/套三(84—120㎡)
公摊:25—30%
交付:精装
总户数:2457户
单价:8400—9000元/㎡
总层高:23F—32F
层高:3米
绿化率:20%
梯户比:6T24/4T12
开发商:碧桂园
物业费:2.4元/㎡
物业公司:碧桂园物业
交房时间:2023年11月
付款方式:按揭、全款、支持首付分期、全款分期

六大购买理由:
1、零门槛买入新一线城市——双流区主中心
2、近享千亿产业园发展红利——成都芯谷
3、便捷的城市级轨交站点——彭镇TOD
4、城市级商业地标,第四大商业街——海德广场
5、标间/套一/套二/套三全面积段产品,满足所有需求
6、总价38万起,清水价买超高性价比类住宅
温馨提示:专业一对一热情服务,为了节约您的等待时间,看房请提前致电预约
免责声明:
以上内容仅作为邀约邀请,涉及的图片为部分区域实拍图和美学畅想图,具体内容请以现场公示和合同约定为准;本文部分资料、部分图片来源于网络,如有侵权请联系我们删除
声明:本文由入驻焦点开放平台的作者撰写,除焦点官方账号外,观点仅代表作者本人,不代表焦点立场。
