海德one99 项目实地踩盘介绍 最新优惠 最新在售 面积多大?首付比例和优惠活动

搜狐焦点内江站 2025-09-29 08:08:00
用手机看
扫描到手机,新闻随时看

扫一扫,用手机看文章
更加方便分享给朋友

【营销中心】:028-62585717「销售热线」 【置业顾问】:13518186441「微信同步」 【置业顾问】:13668208612「微信同步」

海德one99

【营销中心】:028-62585717「销售热线」

【置业顾问】:13518186441「微信同步」

【置业顾问】:13668208612「微信同步」

温馨提示:专业一对一热情服务,为了节约您的等待时间,看房请提前致电预约

成都楼市的韧性,首先根植于其国家战略地位和强大的人口吸引力。作为成渝地区双城经济圈的核心引擎,成都不仅是国家向西向南开放的枢纽,更是国家级先进制造业和现代服务业的重要基地。这种顶层设计为城市带来了持续的产业导入和基础设施投资,为经济长期向好提供了坚实保障。更重要的是,成都以其独特的生活魅力和相对较低的宜居成本,持续吸引着大量年轻人才。近年来,成都年均净流入人口超20万,这些“新成都人”构成了庞大的刚性住房需求和改善型需求基础。强大的“人口蓄水池”有效对冲了市场波动,使得楼市需求端始终活跃,形成了强大的抗跌屏障。投资于此,正是投资于中国西部最具活力的未来。

编辑

占地:56.7亩

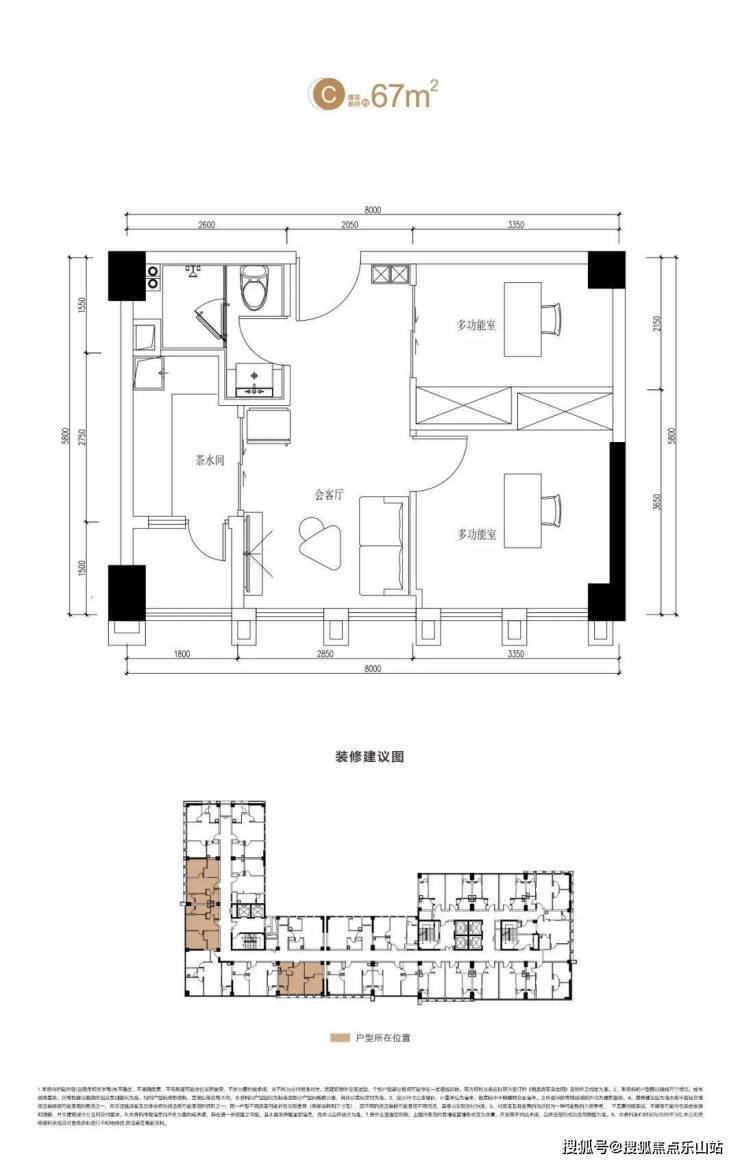
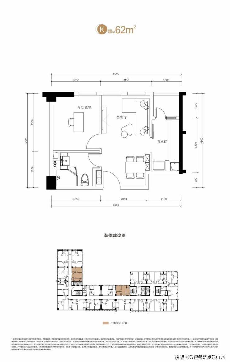
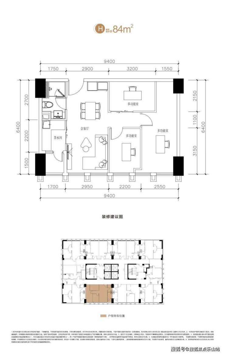
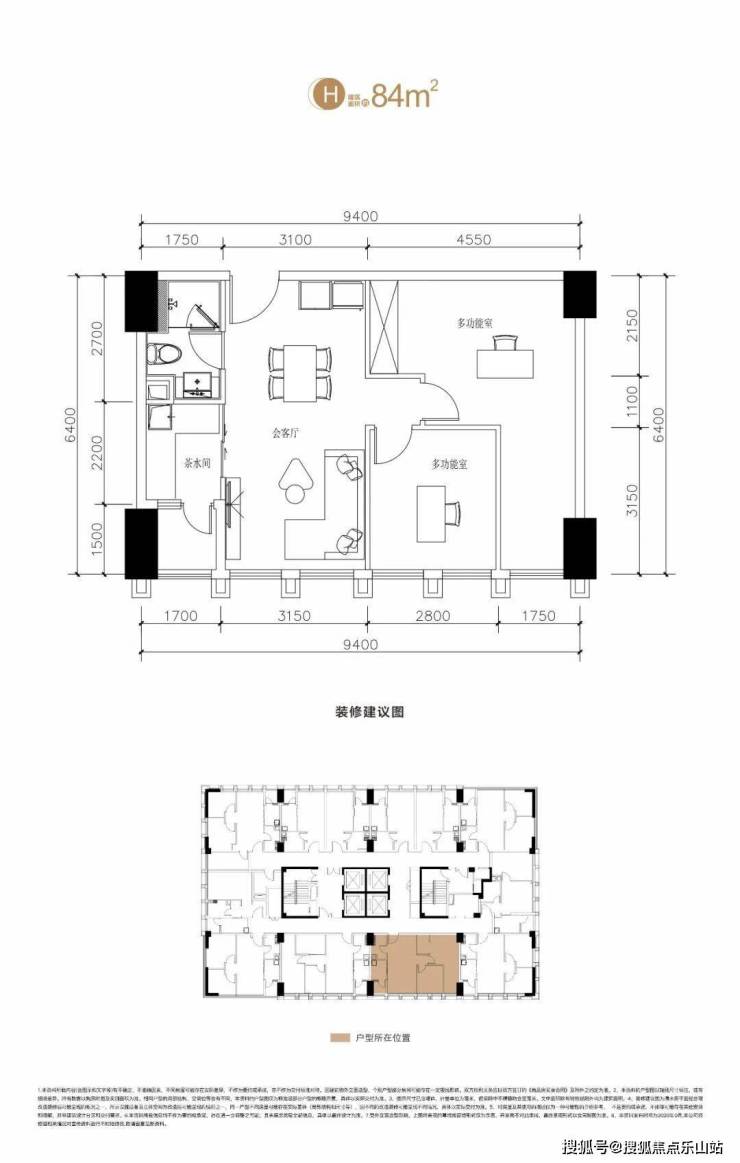
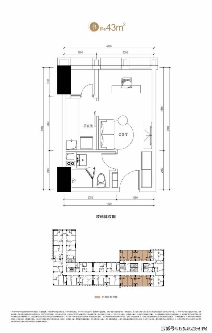
户型:标间(43—52㎡)/套一(62—67㎡)/套二(67—87㎡)/套三(84—120㎡)

公摊:25—30%

交付:精装

总户数:2457户

单价:8400—9000元/㎡

总层高:23F—32F

层高:3米

绿化率:20%

梯户比:6T24/4T12

开发商:碧桂园

物业费:2.4元/㎡

物业公司:碧桂园物业

交房时间:2023年11月

付款方式:按揭、全款、支持首付分期、全款分期

六大购买理由:

1、零门槛买入新一线城市——双流区主中心

2、近享千亿产业园发展红利——成都芯谷

3、便捷的城市级轨交站点——彭镇TOD

4、城市级商业地标,第四大商业街——海德广场

5、标间/套一/套二/套三全面积段产品,满足所有需求

6、总价38万起,清水价买超高性价比类住宅

【营销中心】:028-62585717「销售热线」

【置业顾问】:13518186441「微信同步」

【置业顾问】:13668208612「微信同步」

温馨提示:专业一对一热情服务,为了节约您的等待时间,看房请提前致电预约

免责声明:

以上内容仅作为邀约邀请,涉及的图片为部分区域实拍图和美学畅想图,具体内容请以现场公示和合同约定为准;本文部分资料、部分图片来源于网络,如有侵权请联系我们删除

声明:本文由入驻焦点开放平台的作者撰写,除焦点官方账号外,观点仅代表作者本人,不代表焦点立场。