恒基旭辉中心·TOD 在售新楼盘 最新在售信息 最新优惠详情 最新价格
扫描到手机,新闻随时看
扫一扫,用手机看文章
更加方便分享给朋友
【营销中心】:028-62585717「销售热线」
【置业顾问】:13518186441「微信同步」
【置业顾问】:13668208612「微信同步」
5月初,双流嘉禾兴城和颂,172套房源开盘去化约69%;温江中交柳岸澜语开盘,总价约193w-322万,开盘劲销约1.3亿。时间来到4月,郫都区鹭岛臻宸壹品狂卖约2.84亿,高居4月成都商品房销售榜NO.4土拍的激烈程度,同样让人意外。3月18日,龙泉、双流、郫都三宗地入市(各一宗),全部成交,双流、郫都两宗地溢价,最高5%;3月28日,温江、龙泉、新都三宗地入市(各一宗),全部成交,温江地块溢价3.68%;4月22日,郫都21亩住宅用地入市,溢价率33%;5月23日,郫都1宗、新都2宗住宅用地摆上货架,13家房企参拍,其中,郫都35亩地块溢价率59%;新都49亩地块溢价率19.6%!
连续三年一二手房产交易量全国第一,今年3月住宅楼面地价连破3万+、4万+,二手房价实现六连涨……

在成都TOD开发浪潮中,作为成都市重点工程项目、首批16个官宣TOD项目之一的万盛TOD恒基旭辉中心奋勇争先,践行区域唯一官宣TOD的使命与担当,以前瞻视野与百亿级投资,从城市更新的角度,探索土地的全新开发模式。

万盛TOD恒基旭辉中心基于营城理念,以TOD交通枢纽为核心,精准导入酒店、办公、商业等多元业态,合理布局住宅、教育、医疗、公园等基础设施,构建人产城共生共融的城市综合大盘。

历经3年时光沉淀,万盛TOD恒基旭辉中心高颜值金街已开街,全龄名校教育集群已成型,约15000方城市中央公园全貌呈现,一期高端住区品质交付,约10万方购物中心MALL今年5月即将开业,一座集商圈、教育、公园、居住、交通于一体的约73万方全配套TOD大城强势兑现,成为成都「TOD模式」的成功开发样板。
TOD plus+模式、多元王牌价值赋能
旭辉中心成都首批TOD真“王炸”
王牌一·大手笔规划,成都TOD范本诞生
作为首批16个官宣TOD中,具有大盘运营和商业开发及运营能力的航母级综合体,以开发商、地铁方多方协作,先行设计,将住宅、商业、地铁、公园等群落重构为一个超级浓缩城市,前期地块问题一次性解决,空间布局更加合理,时间效率更高。
一个TOD大商圈、两百万人口支撑、五种黄金业态、六大实景呈现,七大商业布局、九大生活场景。旭辉造城,成都骄傲,百万方城市体,25万方旭辉商圈,全国第六座旭辉Cmall,落地万盛TOD。
成都特色137-TOD模式
旭辉中心是成都唯一一个严格按照成都市政府137开发理念的TOD项目,真正实现在100米、300米、700米,步行2-5分钟即可享受世界超一线生活方式!
2023年7月城西高颜值金街开街,焕新精致生活品位
旭辉秉承以招商先行的方针,招商建设同步进行,加速旭辉商圈的繁华进程;
随着商业街区的实景呈现,各大品牌商家也看到了旭辉的实力。麦当劳、肯德基、必胜客、奈雪的茶、、优衣库、幸福南海影院、周大福、海乐健身、KKV等200+国际知名品牌携手恒基旭辉中心。
现象级热销红盘,劲销霸榜全城
正是这样的王牌价值,让旭辉中心备受青睐。仅开盘前后线上关注度就超100万+,超10万人到访,三年来作为TOD销冠项目,累计热销30亿。

TOD全能大城 瑰丽式高奢酒店生活范本-CIFI7全新高定系列-揽境 震撼登场
十六大精装配置全面升级
精装提升亮点:整体工艺工法、用材用料、颜色搭配,提配为高奢酒店风,更大气,高级审美,高品质感
全新高奢酒店式奢居鉴赏
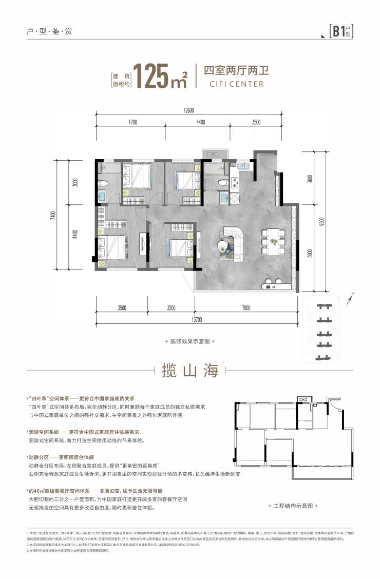
大成西唯此TOD大横厅125㎡高奢酒店式洋房
双实力品牌丨中国地产百强TOP10丨极致套四横厅丨国际一线大牌奢装 | 全屋智能系统
大成西唯此TOD极致横厅113㎡高奢酒店式高层
双实力品牌丨中国地产百强TOP10丨极致套四横厅丨国际一线大牌奢装 | 全屋智能系统
大成西唯此TOD绝版稀缺100㎡高奢酒店式高层
双实力品牌丨中国地产百强TOP10丨极致套四横厅丨国际一线大牌奢装 | 全屋智能系统
大成西唯此TOD臻藏稀缺114㎡高奢酒店式洋房
双实力品牌丨中国地产百强TOP10丨极致套三洋房丨国际一线大牌奢装 | 全屋智能系统
旭辉中心全新高端【心墅】,三大空间系统升级赋能生活升维
下叠——240㎡

城芯度假式花园庭院|约160㎡前后花园院落|约60㎡LDKG宽厅|主卧奢阔星级套房|L型厨房布局
上叠——169㎡

自定义多元空间进阶上叠|约43㎡X空间|约7.25㎡独立入户玄关|约32㎡星级尊崇主卧套房
3F大平层——187㎡

游艇级巨幕墅居大平层|约9.5米巨幕阳台,IMAX视野近赏大城繁华|LDKG宽境横厅|三套房居室系统,构筑每一位家人的尊崇舒适
【营销中心】:028-62585717「销售热线」
【置业顾问】:13518186441「微信同步」
【置业顾问】:13668208612「微信同步」
温馨提示:专业一对一热情服务,为了节约您的等待时间,看房请提前致电预约
免责声明:
以上内容仅作为邀约邀请,涉及的图片为部分区域实拍图和美学畅想图,具体内容请以现场公示和合同约定为准;本文部分资料、部分图片来源于网络,如有侵权请联系我们删除
声明:本文由入驻焦点开放平台的作者撰写,除焦点官方账号外,观点仅代表作者本人,不代表焦点立场。
