空港•锦楠府踩盘笔记-空港•锦楠府样板间视频-空港•锦楠府项目电话号码
扫描到手机,新闻随时看
扫一扫,用手机看文章
更加方便分享给朋友
【营销中心】:028-62585717「销售热线」
【置业顾问】:13518186441「微信同步」
【置业顾问】:13668208612「微信同步」
近两年房企纷纷提高对实景示范区的重视度。有的将实景示范区列为城市总的考核指标之一;有的在建立评选机制,对做得好的实景示范区进行奖励,在内部形成你你追我赶的氛围;更多的房企,通过建立实景示范区的标准化体系,从展示的场景、要素等方面提升实景示范区的呈现效果。地产项目的实景示范区整体水平明显提升,此外,追求“全维实景”,展示范围更全面、深入。展示的模块包括但不限于入口大门、主题景观、建筑立面、归家动线、架空层、地库、会所、样板间等等。

【项目基础信息】
▪开发商:成都江盛兴宸房地产开发有限公司
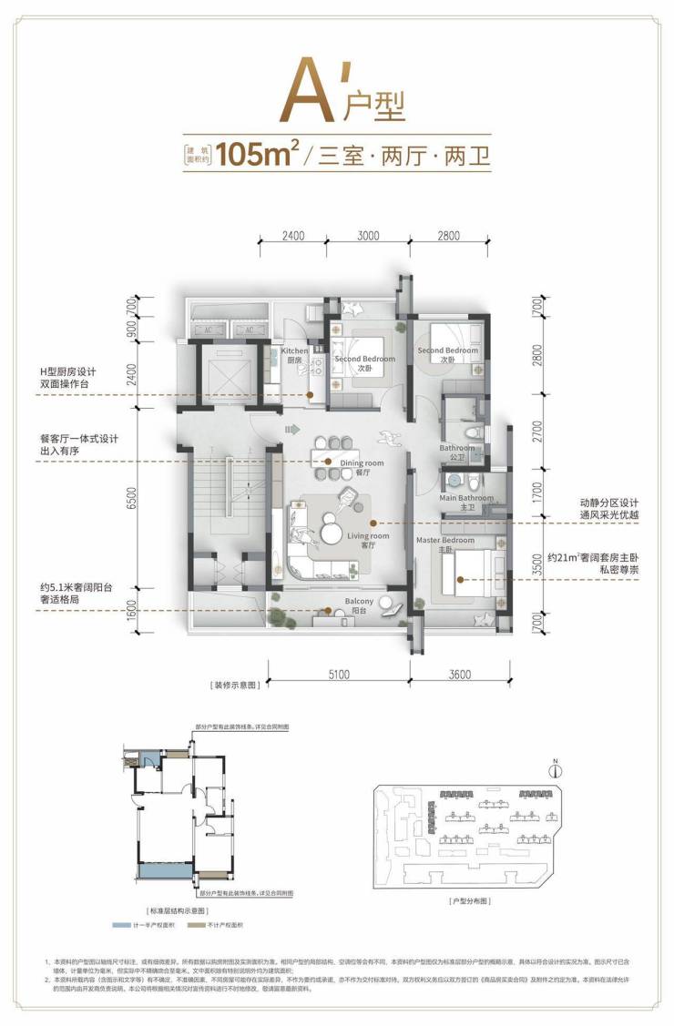
▪在售户型:105(套三方厅).106(竖厅套三)130(套四横厅)
▪在售楼栋:4栋105平,5、6栋106平,7栋130平(首开只77套)▪总楼栋:10栋(外围除1号楼全架空)▪单价:暂定▪总价:暂定
▪总楼层:10F▪层高:3米▪梯户比:1t2户▪交房时间:2026年▪公摊:16%▪得房率:94% 朝向:朝南,南北通透,纯板楼
▪占地:99亩(包含商业)(住宅42亩)▪绿化率:60%▪容积率:2.0%▪占地面积:66123.36▪建筑面积:185618.86
▪拿地时间:2021年▪产权年限:70年▪总户数:492户
▪物业公司:空港兴城集团旗下成都晟城城市管理服务有限公司▪物业费:2.95元;车位比:1:1.37▪
双楠大道与文港路交汇处
📍地铁:3号线/19号线龙桥路站F出口(约800米)
黄金生活圈,配套先行区
教育:成都唯一K15教育试点
名校环伺:双流实验幼儿园、双流实验小学、双流中学、棠湖中学、棠湖外国语学校等。
商业:约2公里生活圈 4大繁华商业
万达广场、海滨城、时代·奥特莱斯、优品道广场
锦楠府自带8万方活力商业街区,填补区域内生活性配套空白!
交通:区域内离地铁最近的项目
距3/19号线龙桥路地铁站约800米
医疗:三甲权威医院 健康保障
华西空港医院、双流中医医院(新院区)、双流妇幼保健院、双流柏林医院。
生态:12大公园万亩生态群
板块绿化覆盖率高达47.3%,成都十二区幸福指数最高!
【营销中心】:028-62585717「销售热线」
【置业顾问】:13518186441「微信同步」
【置业顾问】:13668208612「微信同步」
温馨提示:专业一对一热情服务,为了节约您的等待时间,看房请提前致电预约
免责声明:
以上内容仅作为邀约邀请,涉及的图片为部分区域实拍图和美学畅想图,具体内容请以现场公示和合同约定为准;本文部分资料、部分图片来源于网络,如有侵权请联系我们删除

【项目基础信息】
▪开发商:成都江盛兴宸房地产开发有限公司
▪在售户型:105(套三方厅).106(竖厅套三)130(套四横厅)
▪在售楼栋:4栋105平,5、6栋106平,7栋130平(首开只77套)▪总楼栋:10栋(外围除1号楼全架空)▪单价:暂定▪总价:暂定
▪总楼层:10F▪层高:3米▪梯户比:1t2户▪交房时间:2026年▪公摊:16%▪得房率:94% 朝向:朝南,南北通透,纯板楼
▪占地:99亩(包含商业)(住宅42亩)▪绿化率:60%▪容积率:2.0%▪占地面积:66123.36▪建筑面积:185618.86
▪拿地时间:2021年▪产权年限:70年▪总户数:492户
▪物业公司:空港兴城集团旗下成都晟城城市管理服务有限公司▪物业费:2.95元;车位比:1:1.37▪
双楠大道与文港路交汇处
📍地铁:3号线/19号线龙桥路站F出口(约800米)
黄金生活圈,配套先行区
教育:成都唯一K15教育试点
名校环伺:双流实验幼儿园、双流实验小学、双流中学、棠湖中学、棠湖外国语学校等。
商业:约2公里生活圈 4大繁华商业
万达广场、海滨城、时代·奥特莱斯、优品道广场
锦楠府自带8万方活力商业街区,填补区域内生活性配套空白!
交通:区域内离地铁最近的项目
距3/19号线龙桥路地铁站约800米
医疗:三甲权威医院 健康保障
华西空港医院、双流中医医院(新院区)、双流妇幼保健院、双流柏林医院。
生态:12大公园万亩生态群
板块绿化覆盖率高达47.3%,成都十二区幸福指数最高!
【营销中心】:028-62585717「销售热线」
【置业顾问】:13518186441「微信同步」
【置业顾问】:13668208612「微信同步」
温馨提示:专业一对一热情服务,为了节约您的等待时间,看房请提前致电预约
免责声明:
以上内容仅作为邀约邀请,涉及的图片为部分区域实拍图和美学畅想图,具体内容请以现场公示和合同约定为准;本文部分资料、部分图片来源于网络,如有侵权请联系我们删除
声明:本文由入驻焦点开放平台的作者撰写,除焦点官方账号外,观点仅代表作者本人,不代表焦点立场。
