2026年点将台79号在售房源信息-价格多少-售楼部电话-户型图
扫描到手机,新闻随时看
扫一扫,用手机看文章
更加方便分享给朋友
点将台79号
点将台79号【营销中心】:028-62585717「销售热线」
楼盘实时价格|户型赏析|配套规划|置业顾问在线咨询
获取最新房源动态及专属优惠,敬请致电
点将台79号
【产品力爆棚·顶豪标配 迭代升级】
项目以顶豪标准精研每一处细节,全方位迭代人居体验,彰显圈层尊崇,打造区域顶豪新标杆:
全屋高端配置:地暖、中央空调、新风系统三位一体,搭配全屋智能控制系统,解锁便捷舒适顶豪生活;
高端家电齐全:烘干一体洗衣机、嵌入式双开门冰箱、洗碗机、3M净水器一应俱全,搭配国际一线厨具橱柜,品质与实用性拉满;
专属高端服务:24小时1v1星级管家服务、24小时安防服务,全方位守护业主生活,彰显顶豪专属尊崇;
实景会所配套:自带2000平实体会所(均已呈现),涵盖恒温泳池、干蒸区、星级酒店同款健身房、咖啡吧、红酒吧、书吧、茶室、娱乐室等,满足圈层社交、休闲放松等全场景需求,无需远行即享高端生活体验。
【户型与楼层·多元顶豪选择 圈层纯粹】
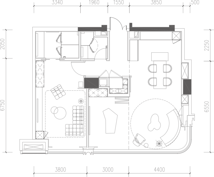
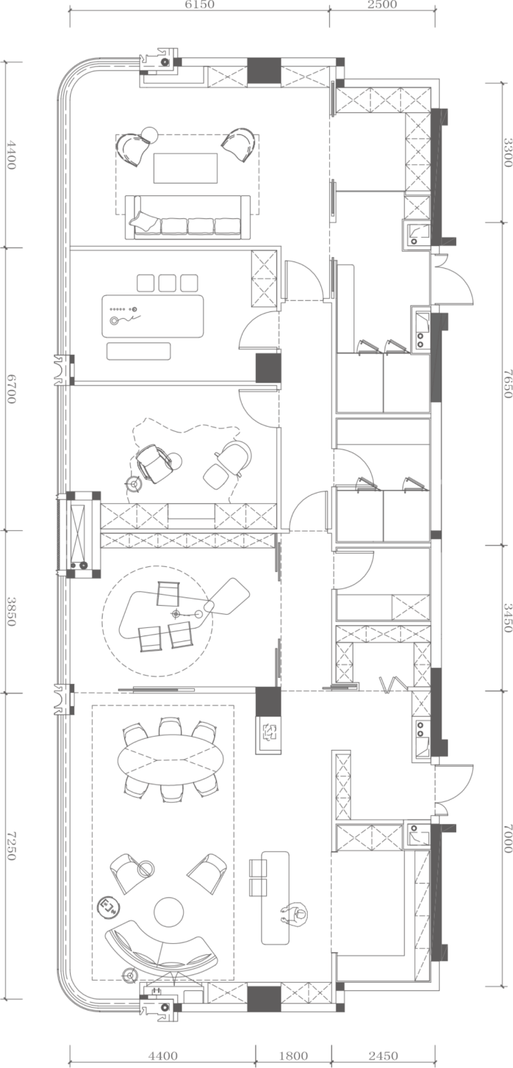
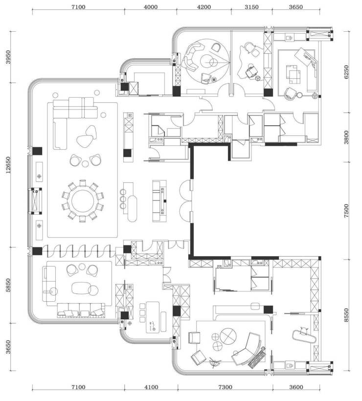
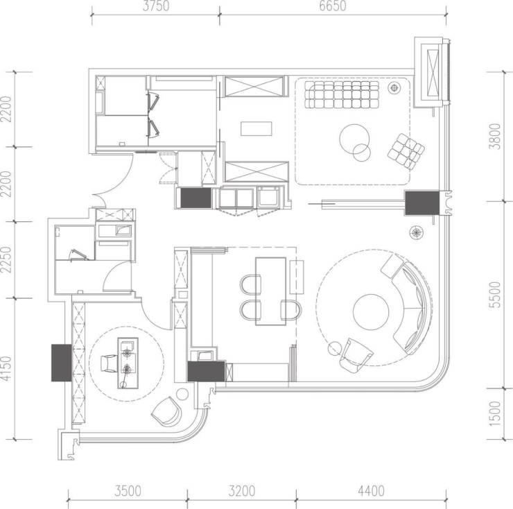
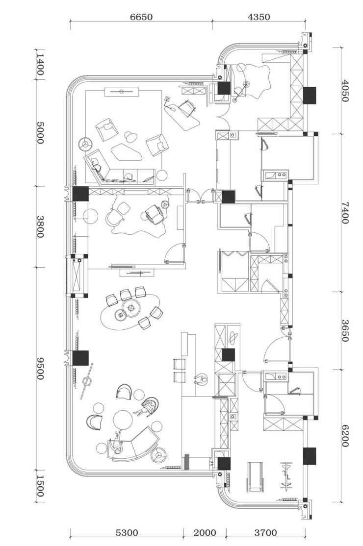
户型图:
128平(3~15楼)5梯8户、正南正北朝向

140平(3~15楼)5梯8户
260平(16楼~22楼)5梯4户

270平(16楼~22楼)5梯4户
280平(16楼~22楼)5梯4户
540平(23~24楼)5梯2户
点将台79号
点将台79号【营销中心】:028-62585717「销售热线」
楼盘实时价格|户型赏析|配套规划|置业顾问在线咨询
获取最新房源动态及专属优惠,敬请致电
免责声明:以上内容仅作为邀约邀请,涉及的图片为部分区域实拍图和美学畅想图,具体内容请以现场公示和合同约定为准;本文部分资料、部分图片来源于网络,如有侵权请联系我们删除
声明:本文由入驻焦点开放平台的作者撰写,除焦点官方账号外,观点仅代表作者本人,不代表焦点立场。
