西派浣花 成都 营销中心地址/位置 公交地铁交通 周边配套
扫描到手机,新闻随时看
扫一扫,用手机看文章
更加方便分享给朋友
【营销中心】:028-62585717「销售热线」
【置业顾问】:13518186441「微信同步」
【置业顾问】:13668208612「微信同步」
温馨提示:专业一对一热情服务,为了节约您的等待时间,看房请提前致电预约
继6月份的同比、环比双涨后,成都7月二手房成交量继续保持上涨趋势。据成都住建局数据,整个7月,成都二手房成交20354套,环比上涨5.1%,保持稳定上涨态势,在全国依旧霸榜。7月成都中心城区二手住宅成交1.59万套,环比提升7.7%,同比下降2.5%。从3、4月小阳春后,近几月的成交量都维持在约1.5-1.6万套左右的中位水平,略低于近一年月均成交。今年房地产市场出现明显变化,新房供应和销售数据规模缩减,但“缩量”并不是今年市场唯一注脚,由新规产品带来的产品“提质”,才是更值得深挖的市场亮点。以高得房率、迭代户型设计、优质公共区域及配套设施为核心优势的新规项目,在上半年成功吸引大量购房者“跑步进场”。克而瑞四川的统计数据清晰呈现,即便在房地产行情整体规模收缩的大背景下,新规产品销售的增长曲线依然十分显著。
建筑面积: 60987.62㎡,总户数:310户,总栋数:3栋,车位:总数358个 ,车位比:1:0.7,物业费:9元/㎡,全屋智能家居系统
建筑面积:120-165㎡一房 ,286-370㎡二房
梯户比:1#楼28层 低区3-13F三梯6户/中区14-23F三梯5户/高区24-28F三梯4户
2#楼28层 低区3-13F三梯5户/中区14-23F三梯5户/高区24-27F三梯3户
1号楼标准层平面图
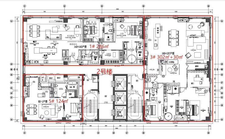
2号楼标准层平面图
【营销中心】:028-62585717「销售热线」
【置业顾问】:13518186441「微信同步」
【置业顾问】:13668208612「微信同步」
温馨提示:专业一对一热情服务,为了节约您的等待时间,看房请提前致电预约
免责声明:
以上内容仅作为邀约邀请,涉及的图片为部分区域实拍图和美学畅想图,具体内容请以现场公示和合同约定为准;本文部分资料、部分图片来源于网络,如有侵权请联系我们删除。
声明:本文由入驻焦点开放平台的作者撰写,除焦点官方账号外,观点仅代表作者本人,不代表焦点立场。
