海德one99 最新项目在售相关信息 楼盘详情 最新价格趋势走向 价格多少钱一平米?
扫描到手机,新闻随时看
扫一扫,用手机看文章
更加方便分享给朋友
【营销中心】:028-62585717「销售热线」
【置业顾问】:13518186441「微信同步」
【置业顾问】:13668208612「微信同步」
温馨提示:专业一对一热情服务,为了节约您的等待时间,看房请提前致电预约
促进房地产市场健康稳定发展,关系我国经济大盘稳定。2024年9月26日中央政治局会议明确提出“促进房地产市场止跌回稳”、“推动构建房地产发展新模式”,坚定推动房地产市场高质量发展。有关部门打出“四个取消、四个降低、两个增加”政策组合拳,统筹防风险和促转型,坚持市场化、法治化原则,加强销售资金监管,推动地级及以上城市全部建立房地产融资协调机制,“白名单”项目扩围增效,推动房地产市场止跌回稳,保交楼、保交房任务全面完成。同时,统筹惠民生和稳增长,2025年以来,38个城市开展老旧住房自主更新、原拆原建,266个地级及以上城市建立住房保障轮候库,以需定建、以需定购增加保障性住房供给,稳步实施城中村和危旧房改造,推动无障碍适老化设施建设,城市更新取得重要进展。适应人民群众高品质居住需要,完善标准规范,推动建设安全、舒适、绿色、智慧的“好房子”,42个城市实施房屋全生命周期安全管理制度试点,房地产产业链升级不断加快。
占地:56.7亩
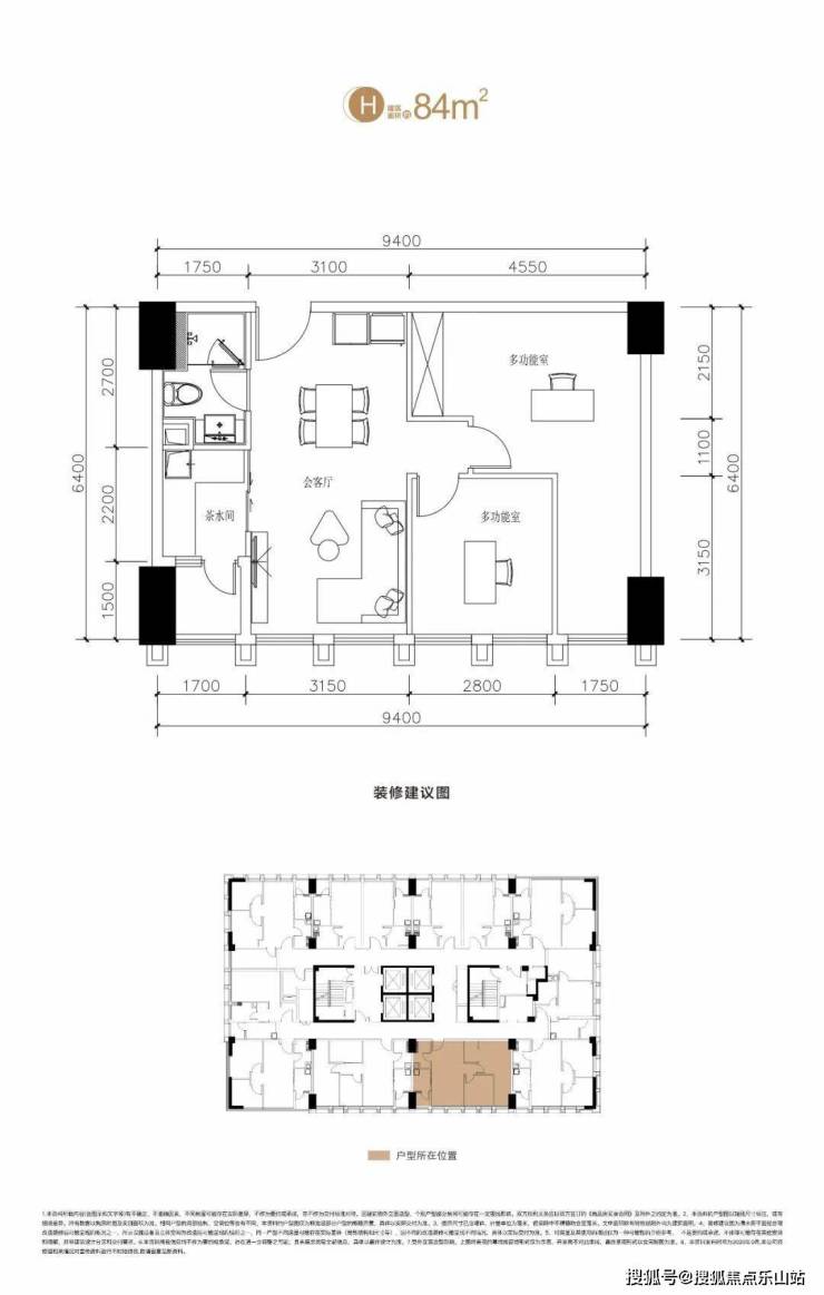
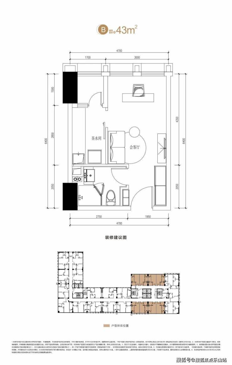
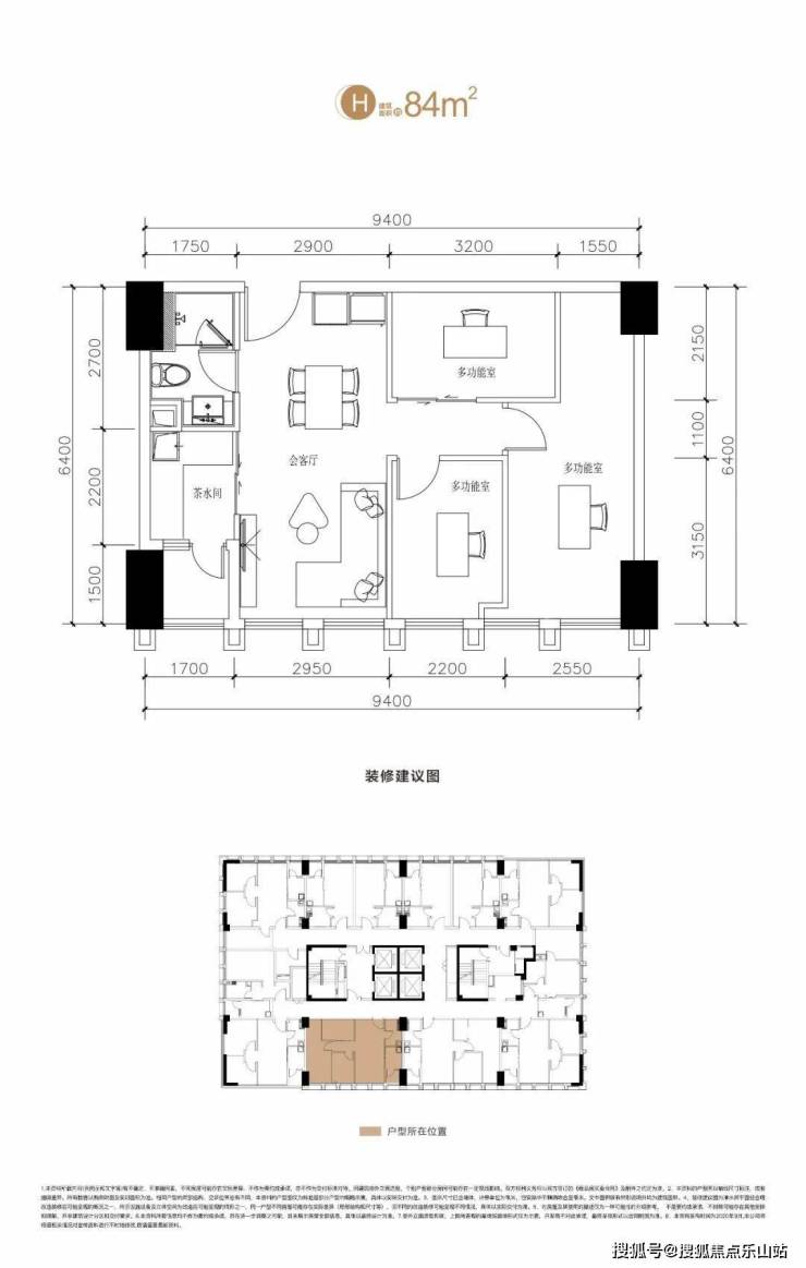
户型:标间(43—52㎡)/套一(62—67㎡)/套二(67—87㎡)/套三(84—120㎡)
公摊:25—30%
交付:精装
总户数:2457户
单价:8400—9000元/㎡
总层高:23F—32F
层高:3米
绿化率:20%
梯户比:6T24/4T12
开发商:碧桂园
物业费:2.4元/㎡
物业公司:碧桂园物业
交房时间:2023年11月
付款方式:按揭、全款、支持首付分期、全款分期

六大购买理由:
1、零门槛买入新一线城市——双流区主中心
2、近享千亿产业园发展红利——成都芯谷
3、便捷的城市级轨交站点——彭镇TOD
4、城市级商业地标,第四大商业街——海德广场
5、标间/套一/套二/套三全面积段产品,满足所有需求
6、总价38万起,清水价买超高性价比类住宅
温馨提示:专业一对一热情服务,为了节约您的等待时间,看房请提前致电预约
免责声明:
以上内容仅作为邀约邀请,涉及的图片为部分区域实拍图和美学畅想图,具体内容请以现场公示和合同约定为准;本文部分资料、部分图片来源于网络,如有侵权请联系我们删除
声明:本文由入驻焦点开放平台的作者撰写,除焦点官方账号外,观点仅代表作者本人,不代表焦点立场。
