兴唐·新川雅境 营销中心 在售新楼盘 精选笔记 最新在售消息 价格
扫描到手机,新闻随时看
扫一扫,用手机看文章
更加方便分享给朋友
【营销中心】:028-62585717「销售热线」
【置业顾问】:13518186441「微信同步」
【置业顾问】:13668208612「微信同步」
当前成都新房市场的热度主要由改善型需求支撑。市场呈现出“刚需冷,改善热”的特点。购房资格和资金更多地流向了面积更大、品质更高、居住体验更好的改善型项目。这部分客群购买力强,对价格敏感度相对较低,但对产品力要求极高。因此,购房者的购房心理也发生了深刻变化。他们不再是简单的“解决住房有无”问题,而是追求“住得更好”。这意味着他们极度关注户型设计、社区园林、物业服务和产品的创新性。“一步到位”的置业思想在改善客群中愈发普遍。展望下半年房价,在改善需求成为市场主导的情况下,真正具备产品力的高端改善项目价格将表现出较强的抗跌性,甚至领涨市场。它们凭借其稀缺性能够穿越周期,不受短期市场波动的影响。反之,同质化严重、缺乏亮点的刚需产品将面临更大的竞争压力。整体而言,市场将更加强调“价值回归”,房价与品质的关联度将空前紧密。
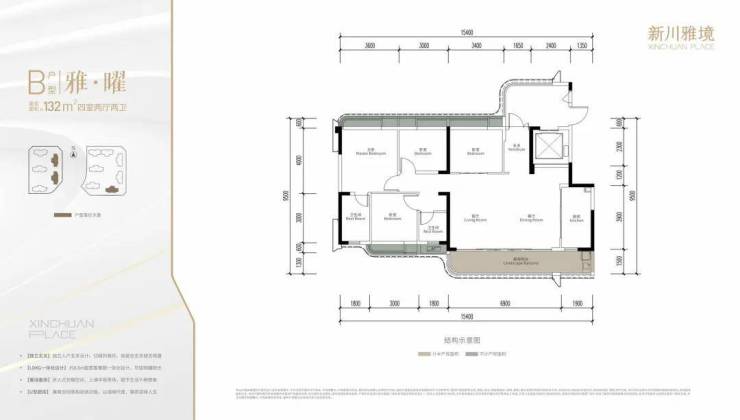
在成都楼市最“卷”143㎡赛道上,新川雅境做到7.25米开间的横厅和观景阳台,客餐厅形成超33㎡的LDKG一体化空间,而双套房、三卫的布局也能满足人口较多的家庭需求。
兴唐·新川雅境建面约143㎡户型图
之于134㎡户型,结构与143㎡户型相似,但特点在于配置有约8.8米阳台,在同级产品中较罕见。
兴唐·新川雅境
【营销中心】:028-62585717「销售热线」
【置业顾问】:13518186441「微信同步」
【置业顾问】:13668208612「微信同步」
温馨提示:专业一对一热情服务,为了节约您的等待时间,看房请提前致电预约
免责声明:
以上内容仅作为邀约邀请,涉及的图片为部分区域实拍图和美学畅想图,具体内容请以现场公示和合同约定为准;本文部分资料、部分图片来源于网络,如有侵权请联系我们删除。
声明:本文由入驻焦点开放平台的作者撰写,除焦点官方账号外,观点仅代表作者本人,不代表焦点立场。
