国宾璟园 成都·丨2024年最新房价丨楼盘信息丨售楼处电话丨面积

搜狐焦点内江站 2024-08-30 08:32:00
用手机看
扫描到手机,新闻随时看

扫一扫,用手机看文章
更加方便分享给朋友

【营销中心】:028-62585717「销售热线」 【置业顾问】:13518186441「微信同步」 【置业顾问】:13668208612「微信同步」

国宾璟园

【营销中心】:028-62585717「销售热线」

【置业顾问】:13518186441「微信同步」

【置业顾问】:13668208612「微信同步」

温馨提示:专业一对一热情服务,为了节约您的等待时间,看房请提前致电预约!!!

楼市新政来得太快,就像龙卷风。

就在不久,成都发布了《优化住房交易相关政策》总结来看,就是对首套房的认定做了优化,比如在名下没有房子的行政区购房就算首套、在该行政区没有正在偿还的房贷也算首套。新政对改善家庭置业的影响巨大,短期来看可以刺激新房的热销,长期来看,大概率还是会继续加剧楼市格局的分化,首先要明白的就是,现在还有较高意愿去购房的群体,就是本次新政利好的改善家庭。

降低了改善家庭的购房门槛和利息成本,之前被压抑的需求也就得到了释放,短期内对新房或许会有较为明显的刺激作用。再就是楼市的分化,刚需们看到楼市新政已经见底,许多观望情绪将有所收敛,作为刚需“主阵地”的二手房市场,未来将会有持续性的增长。

项目位于“城西贵地”——国宾板块天府艺术公园片区。

坐拥约6270亩的天府艺术公园,一街之隔就是成都市示范幼儿园——第十六幼成蹊分园和金牛区“三驾马车”之一的石笋街小学盛达校区,叠加地铁2/6号线、天府111商业……区域宜居价值不可限量。

项目开发商是著名的实力国企——成都城投置地。上面我们提到的天府艺术公园就是由它修建,其强大的基建实力,给项目注入了一颗“定心丸”。

更别说项目目前已呈准现房状态(合同交付时间:2024年10月30日)!所见即所得,实景园林、住宅户型等都能看得到。

所以,在看了项目的实景呈现,我认为:它拥有300万级同质产品中较强的“均好性”。

其一,超百亩大盘+全2T2纯板式布局,居住纯粹。

城投置地·国宾璟园,总占地约109亩,容积率2.5。2023年至今,成都主城五区超100亩的地块仅有2宗,可想而知项目这种超百亩体量的稀贵。

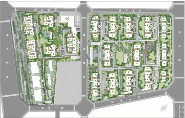
◎项目总平图

而具体看内部,项目分为南北两个地块来进行打造。其中,北地块璟园组团,占地约70亩,由13栋13-17层小高层阵列而成,所有住宅全部坐北朝南、2T2配置。

双面采光、开阔的间距让所有户型都享受双面观景的视野宽度,保证通风和阳光的最大化,居住氛围甚为改善。

基础参数

占 地:约109亩

面 积:131-169平(璟园)

88-109平(璟怡园)

均 价:26000/平

总 价:220-430万

物业费:3.83元/平/月(中海物业)

梯户比:2T2户(璟园70亩817户)

2T4户(璟怡园504户)

总层高:13-17F

车位比:1:1.66

容积率:2.5

绿化率:44.37%(璟园)

36.09%(璟怡园)

交房标准:精装带三大件(大部分楼栋)

交房时间:2024年10月

清水交付:璟园12/13号楼(168/169平)

璟怡园2号楼

项目货源梳理

成都城投

a.成都城投集团于2004年6月经成都市委、市政府批准设立国有独资公司

b.专注于政府类重大市政工程和市场类城市综合开发项目投资建设运营,已发展成千亿级国有大型骨干企业。

交通配套:

两横三纵立体交通网络体系

两横:金牛大道、西华大道。

三纵:金粮路、金芙蓉大道、三环路。

坐享双地铁三TOD+10余条公交路线

主要的2条地铁线路:

2号线金科北路站:约1公里

6号线兴盛站:约1公里

9号线2期和12号线规划中

3TOD:兴盛TOD、梓潼宫TOD、金周路TOD

🛍商业配套:

社区综合体(门口无缝街接)

天府公园内8万方商业

爱情海购物公园 (往西约2公里)

沃尔玛山姆会员店及大悦城(兴盛站往东2公里)

15万方龙湖西宸天街(约4公里)等商业

医疗配套:

项目附近有363医院、成都市西区医院、四川省人民医院金牛医院、还有规划建设的三级甲等公立医院-第五人民医院金牛院区。

教育资源

幼儿教育:

成都市第十六幼成蹊分园、美乐思幼儿园

小学教育:

石笋街小学(即将竣工)、成都市兴盛小学、金泉小学、全兴小学

中学教育:

七中万达学校(项目北面约800米)

成都外国语学校(项目西侧约3公里)

犀浦外国语学校

生态配套:

所在的区域位于成都市重点打造三大“天府级”之一的天府艺术公园片区之内,而天府艺术公园由我们成都城投打造建设而成。

天府艺术公园片区总占地约 6270 亩,位于东至三环路,南至金牛大道,西至西环线,北至西华大道的国合区域内。

【主力户型鉴赏】

1、89平三室两厅两卫

2、104平三室两厅两卫

3、109平三室两厅两卫

4、131平四室两厅两卫

5、144平四室两厅三卫

6、169平四室两厅三卫

【营销中心】:028-62585717「销售热线」

【置业顾问】:13518186441「微信同步」

【置业顾问】:13668208612「微信同步」

温馨提示:专业一对一热情服务,为了节约您的等待时间,看房请提前致电预约!!!

免责声明:

以上内容仅作为邀约邀请,涉及的图片为部分区域实拍图和美学畅想图,具体内容请以现场公示和合同约定为准;本文部分资料、部分图片来源于网络,如有侵权请联系我们删除。

声明:本文由入驻焦点开放平台的作者撰写,除焦点官方账号外,观点仅代表作者本人,不代表焦点立场。